

作品包括:
Word版说明书1份,共32页,约11000字
CAD版本图纸,共10张
UG三维图一份
Proe三维图一份

摘要
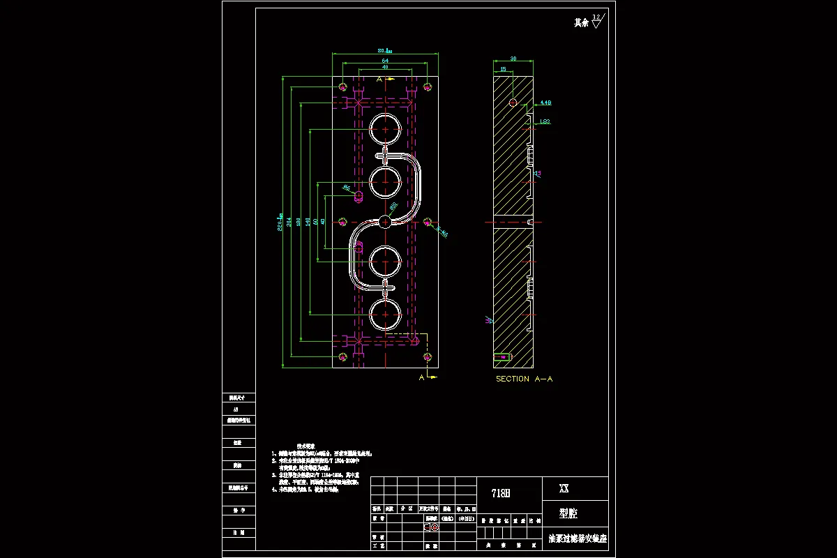
按照油泵过滤器安装座加工产品的需要,对于产品有什么用,对塑料产品的加工工艺进行分析等等,将塑料产品的大小定下来。这个模具的结构是一个模具四个腔室,选择使用滑块抽芯机构,进料口用的是侧浇口,注射机的型号是海天80XB型号,对冷却系统进行安排,画图纸的时候用绘图软件来画,生产模具的办法必须要合理。将说明书附在后面,将图纸也放在上面,将数据算出来,这样注塑模也就设计好了。
关键词:油泵过滤器安装座;侧浇口;注射机,冷却系统,注塑模
目录
摘要I
Abstract I
第1章塑件的工艺分析- 1-
1.1塑件材料的选择- 2-
1.2塑件尺寸及精度- 2-
1.3塑件表面粗糙度- 2-
3.4塑件的体积和质量- 2-
第2章注射成型工艺方案及模具结构的分析和确定- 4-
2.1浇口种类的确定- 4-
2.2型腔数目的确定- 4-
2.3注射机的选择和校核- 4-
2.3.1注射量的校核- 6-
2.3.2塑件在分型面上的投影面积与锁模力的校核- 6-
2.2.3模具与注射机安装模具部分相关尺寸校核- 7-
第3章注射模具结构设计- 9-
3.1分型面的设计- 9-
3.2型腔的布局- 10-
3.3浇注系统的设计- 10-
3.3.1主流道的设计- 11-
3.3.2分流道的设计- 13-
3.3.3浇口的设计- 13-
3.3.4冷料穴的设计- 14-
3.4注射模成型零部件的设计- 14-
3.4.1成型零部件结构设计- 15-
3.4.2成型零部件工作尺寸的计算- 16-
3.5排气结构设计- 17-
3.5.1凹模宽度尺寸的计算- 17-
3.5.2凹模长度尺寸的计算- 18-
3.5.3凹模高度尺寸的计算- 18-
3.5.4凸模宽度尺寸的计算- 18-
3.5.5凸模长度的计算- 19-
5.5.6凸模高度尺寸的计算- 19-
3.6脱模机构的设计- 19-
3.6.1脱模机构的选用原则- 19-
3.6.2脱模机构类型的选择- 19-
3.6.3推管机构具体设计- 20-
3.7注射模温度调节系统- 20-
3.7.1温度调节对塑件质量的影响- 21-
3.7.2冷却系统之设计规则- 21-
3.8模架的选用- 22-
第4章模具材料的选用- 24-
4.1成型零件材料选用- 24-
4.2注射模用钢种- 24-
总结- 25-
参考文献- 27-
致谢- 28-
温馨提示:
1、题目前面的备注【字母数字编号】为本站整理分类的编号,与课题内容无关,请选题时忽视;
2、若题目上备注三维,则表示文件里包含三维源文件,由于三维组成零件数量较多,为保证预览截图的简洁性,本站将三维文件夹进行了打包。三维及CAD预览截图,均为本站电脑打开软件进行截图的,保证能够打开,下载原件超高清,下载后解压即可;
3、本站所有资源如无特殊说明,都需要本地电脑安装Office2007。图纸软件为AutoCAD,PROE,UG,SolidWorks,CATIA等;
4、本站所有图文资料仅供用户学习参考,不作为任何商用或其他用途;
5、本站不保证下载资源的准确性、安全性和完整性, 不包修改,不支持退换,同时也不承担用户因使用这些下载资源对自己和他人造成任何形式的伤害或损失;
6、 下载文件中如有侵权或不适当内容,请与我们联系,我们立即纠正。