

作品包括:
Word版说明书1份,共47页,约15000字
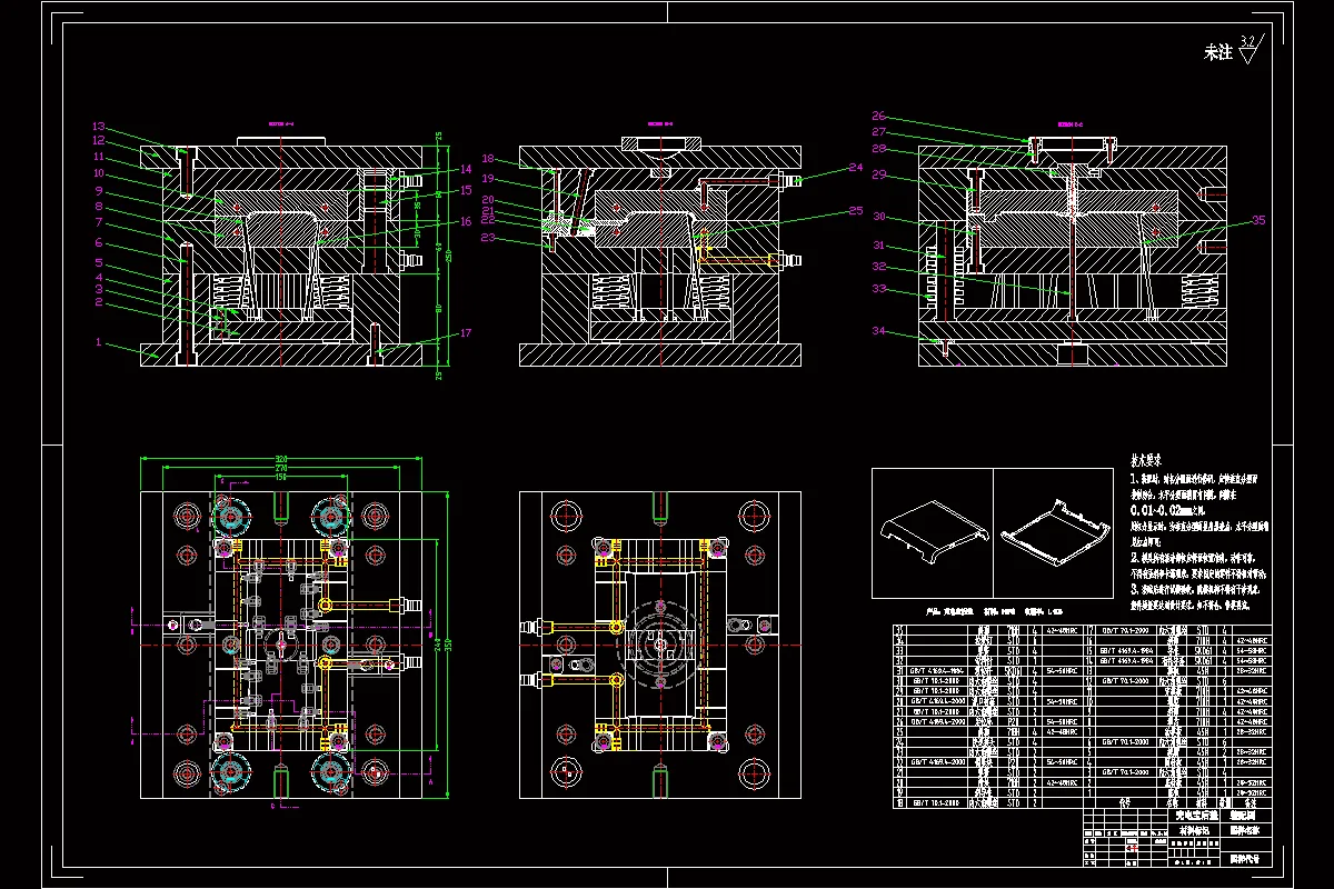
CAD版本图纸,共15张
UG三维图一份


摘要
《充电宝后盖注射模具设计》是编写者两个月以来所编写的设计说明书。主要介绍:注射模的整个过程,包括成型零部件、推出机构、流道等一些设计。在书写过程中,通过一个月的时间对原始资料进行搜集,充分考虑模具的各种结构并和指导老师及同学之间进行讨论,最终选择了所写的模具结构。
本的资料大多是编写者结合三年所学的各方面的理论知识完成的,包括机械制图、公差与配合、工程力学、机械设计、注射模具成型、工程材料等;一部分是通过查手册所得;还有少部分是同学之间的交流和自己三年的实习总结。
关键词:充电宝后盖;注射模具;推出机构;流道
目录
摘要I
Abstract II
第一章绪论1
1.1模具在加工工业中的地位1
1.2模具的发展趋势1
1.2.1加深理论研究2
1.2.2高效率、自动化2
1.2.3大型、超小型及高精度2
1.2.4革新模具制造工艺2
1.2.5标准化2
1.3设计在学习模具制造中的作用3
1.4来源背景3
1.4.1目的3
1.4.2要求3
1.4.3实际意义3
1.4.4主要设计内容4
第二章原始资料5
2.1塑料制品产量和生产要求5
2.2塑料品种牌号5
2.2.1特点6
2.2.2生产方法6
2.2.3成型特性6
2.2.4用途7
2.3制品图样12
2.3.1尺寸及要求12
2.3.2根据制品尺寸几何形状进行分析13
第三章基本参数15
3.1注射机选择15
3.2模具型腔数目的计算15
3.2.1计算原理15
3.2.2制品体积16
3.2.3型腔数目确定16
3.3模架选择16
第四章成型零件尺寸及结构18
4.1聚苯乙烯的收缩率(S) 18
4.2型芯尺寸及结构设计18
4.2.1型芯径向尺寸计算利用公式18
4.2.2型芯高度尺寸19
4.3型腔尺寸及结构设计19
4.3.1型腔径向尺寸19
4.3.2型腔深度尺寸20
4.3.3型腔结构21
4.3.4型腔计算21
第五章模具结构23
5.1模具结构图23
5.2模具与成型机械关系的校核23
5.2.1制品及流道体积23
5.2.2注射机的校核24
第六章浇注系统26
6.1概述26
6.2浇注系统的设计26
6.2.1主流道的设计26
6.2.2浇口的设计26
6.2.3排气糟的设计28
6.3合模导向机构的设计28
第七章推出机构30
7.1概述30
7.2推出机构30
7.3滑块机构的设计31
第八章支承零件33
8.1上模部分33
8.2下模部分33
第九章冷却系统35
第十章模具的装配37
结论40
参考文献41
致谢42
温馨提示:
1、题目前面的备注【字母数字编号】为本站整理分类的编号,与课题内容无关,请选题时忽视;
2、若题目上备注三维,则表示文件里包含三维源文件,由于三维组成零件数量较多,为保证预览截图的简洁性,本站将三维文件夹进行了打包。三维及CAD预览截图,均为本站电脑打开软件进行截图的,保证能够打开,下载原件超高清,下载后解压即可;
3、本站所有资源如无特殊说明,都需要本地电脑安装Office2007。图纸软件为AutoCAD,PROE,UG,SolidWorks,CATIA等;
4、本站所有图文资料仅供用户学习参考,不作为任何商用或其他用途;
5、本站不保证下载资源的准确性、安全性和完整性, 不包修改,不支持退换,同时也不承担用户因使用这些下载资源对自己和他人造成任何形式的伤害或损失;
6、 下载文件中如有侵权或不适当内容,请与我们联系,我们立即纠正。