

作品包括:
Word版说明书1份,共31页,约10000字
CAD版本图纸,共11张
UG三维图一份

摘要
20世纪塑料材料的制品如雨后春笋一样涌现,当然这样的兴起是因为它本身的特点,包括有价格低廉、易塑型、强度大等等。就现在来说,塑料制品已经在很多的方面得到了应用,诸如日常的生活、医疗所使用的设备、电子电器制品方面、汽车内部设备等。
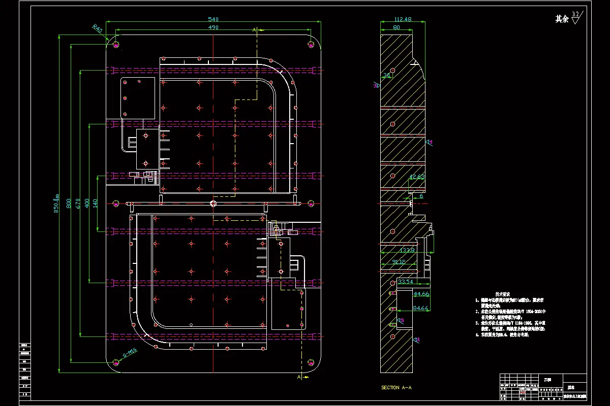
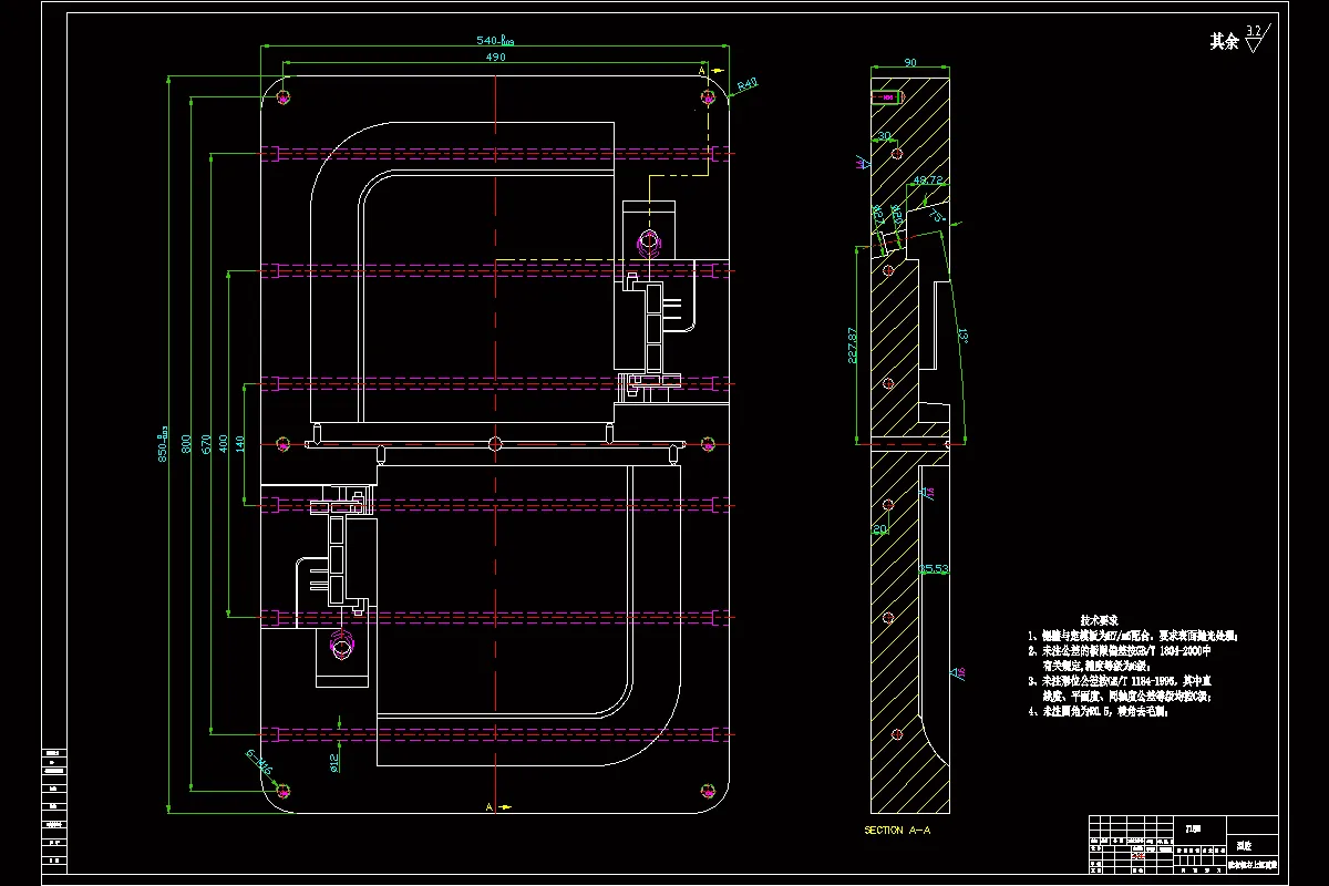
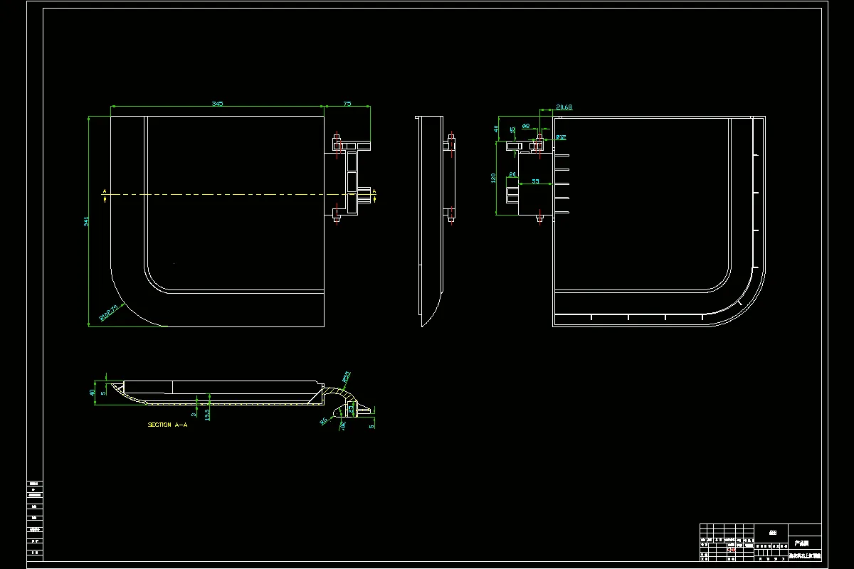
塑料制品有很多种成型的方法,本设计使用的是最常使用的注塑方式——注射成型,根据洗衣机右缸上顶盖塑料制品的要求,了解塑件的用途,分析塑件的工艺性、尺寸精度等技术要求,选择塑件制件尺寸。本模具采用一模两腔,大水口搭底进料,注射机采用海天HTF1250X1B型号,设置冷却系统。前期对于设计对象进行了相关的测量,数据的记录等;中期主要是使用UG三维设计软件根据前期测量的数据建立立体模型,并在塑件模型的基础上利用UG制造内的模具型腔模块对洗衣机右缸上顶盖作出相应的注塑模具设计,包括有塑件元件、滑块分型面、主分型面、浇口等,并且加入相应的模架、浇口、流道等;后期则是以之前作出的成果为基础使用CAD软件绘制出相应的二维图,更加清晰的显示出塑件的结构以及模具的机构。
关键词:洗衣机右缸上顶盖;一模两腔;注射机;海天HTF1250X1B,冷却系统;注塑模具
目录
摘要I
Abstract II
第一章绪论1
第二章注塑工艺分析及成型方法2
2.1洗衣机右缸上顶盖塑件分析2
2.1.1塑件材料的选择3
2.1.2所选材料主要特性3
2.1.3技术指标4
2.1.4精度选择4
2.1.5洗衣机右缸上顶盖的工艺参数4
第三章注塑模具结构设计5
3.1拟定模具结构设计5
3.1.1分型面位置的确定5
3.1.2确定型腔数量及排列方式6
3.1.3模具结构形式的确定7
3.1.4注射机型号的确定7
3.1.5注塑机的参数较核9
3.2浇注系统、关键零部件设计11
3.2.1浇注系统形式和浇口的设计11
3.2.2成型零件设计14
3.2.3排气系统的设计16
3.2.4冷却调节系统设计17
3.2.5脱模机构的设计19
第四章总结24
4.1模具设计过程体会24
4.2设计存在问题及解决设想24
参考文献25
致谢27
温馨提示:
1、题目前面的备注【字母数字编号】为本站整理分类的编号,与课题内容无关,请选题时忽视;
2、若题目上备注三维,则表示文件里包含三维源文件,由于三维组成零件数量较多,为保证预览截图的简洁性,本站将三维文件夹进行了打包。三维及CAD预览截图,均为本站电脑打开软件进行截图的,保证能够打开,下载原件超高清,下载后解压即可;
3、本站所有资源如无特殊说明,都需要本地电脑安装Office2007。图纸软件为AutoCAD,PROE,UG,SolidWorks,CATIA等;
4、本站所有图文资料仅供用户学习参考,不作为任何商用或其他用途;
5、本站不保证下载资源的准确性、安全性和完整性, 不包修改,不支持退换,同时也不承担用户因使用这些下载资源对自己和他人造成任何形式的伤害或损失;
6、 下载文件中如有侵权或不适当内容,请与我们联系,我们立即纠正。