

作品包括:
Word版说明书1份,共34页,约15000字
PPT答辩一份
CAD版本图纸,共12张
UG三维图一份


摘要
根据塑料电源按钮制品的要求,了解塑件的用途,分析塑件的工艺性、尺寸精度等技术要求,考量塑件制件尺寸。本模具采用一模两腔,潜浇口进料,注射机采用HTF80X1A型号,设置冷却系统,CAD和UG绘制二维总装图和零件图,选择模具合理的加工方法。附上说明书,系统地运用简要的文字,简明的示意图和和计算等分析塑件,从而作出合理的注塑模具设计。
关键词:电源按钮;一模两腔;潜浇口;冷却系统;注塑模具
目录
摘要I
Abstract II
第一章绪论1
1.1塑料成型工业的发展1
1.2塑料成型工业在生产中的重要性1
1.3塑料成型技术的发展趋势2
第二章工艺性分析3
2.1产品分析及其技术条件3
2.2塑件材料的确定4
2.3塑件材料的性能分析4
2.3.1基本特性4
2.3.2成型性能5
2.3.3主要用途5
第三章注塑机及选用6
3.1注塑机的分类6
3.1.1注射机按外型结构特征分类6
3.1.2注塑机按塑化方式分类6
3.2注塑机的选用7
3.3注射量的校核8
3.4塑件在分型面上的投影面积与锁模力的校核8
3.5模具与注射机安装模具部分相关尺寸校核9
第四章模具设计10
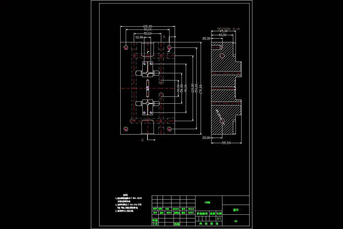
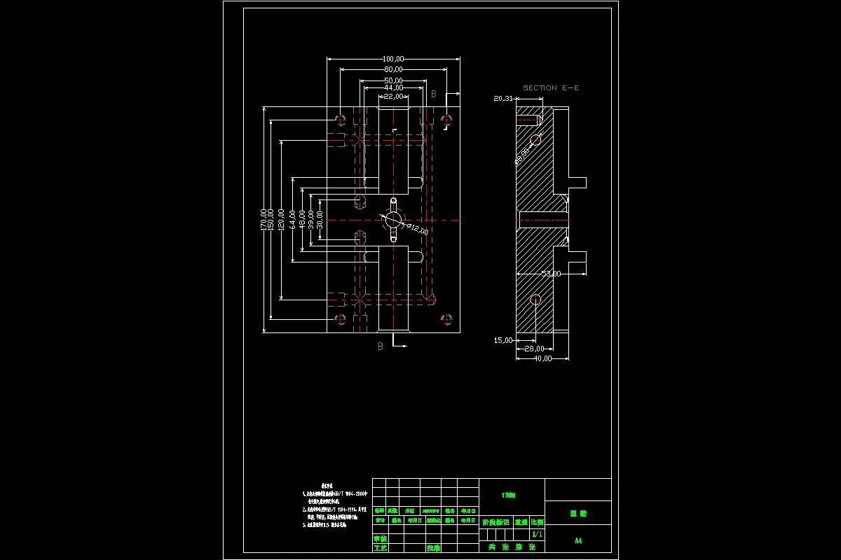
4.1型腔布置10
4.2确定浇注系统11
4.2.1主流道设计11
4.2.2浇口套的设计12
4.2.3分流道设计12
4.2.4浇口的设计13
4.3成形零部件的设计14
4.3.1成型零件的结构设计14
4.3.2成型零件的计算14
4.4成型零件材料的选择16
4.5排气系统的设计16
4.5.1排气不良的危害16
4.5.2排气系统的设计方法16
4.6导向与脱模机构的设计17
4.6.1导向机构的作用和设计原则17
4.6.2导柱、导套的设计17
4.7脱模推出机构的确定18
4.8顶针板导柱导套的结构设计19
4.9垫块的尺寸设计20
4.10冷却系统的设计20
4.10.1冷却系统的设计原则20
4.10.2温度调节对塑件质量的影响21
4.10.3对温度调节系统的要求21
4.10.4冷却装置的设计要点21
4.11侧向抽芯机构类型选择与设计22
4.11.1侧向抽芯机构类型22
4.6.2侧向抽芯机构主要参数的确定24
第五章模具的安装和试模27
总结28
参考文献29
致谢30
温馨提示:
1、题目前面的备注【字母数字编号】为本站整理分类的编号,与课题内容无关,请选题时忽视;
2、若题目上备注三维,则表示文件里包含三维源文件,由于三维组成零件数量较多,为保证预览截图的简洁性,本站将三维文件夹进行了打包。三维及CAD预览截图,均为本站电脑打开软件进行截图的,保证能够打开,下载原件超高清,下载后解压即可;
3、本站所有资源如无特殊说明,都需要本地电脑安装Office2007。图纸软件为AutoCAD,PROE,UG,SolidWorks,CATIA等;
4、本站所有图文资料仅供用户学习参考,不作为任何商用或其他用途;
5、本站不保证下载资源的准确性、安全性和完整性, 不包修改,不支持退换,同时也不承担用户因使用这些下载资源对自己和他人造成任何形式的伤害或损失;
6、 下载文件中如有侵权或不适当内容,请与我们联系,我们立即纠正。