

作品包括:
Word版说明书1份,共52页,约18000字
CAD版本图纸,共11张
UG三维图一份


摘要
20世纪塑料材料的制品如雨后春笋一样涌现,当然这样的兴起是因为它本身的特点,包括有价格低廉、易塑型、强度大等等。就现在来说,塑料制品已经在很多的方面得到了应用,诸如日常的生活、医疗所使用的设备、电子电器制品方面、汽车内部设备等。
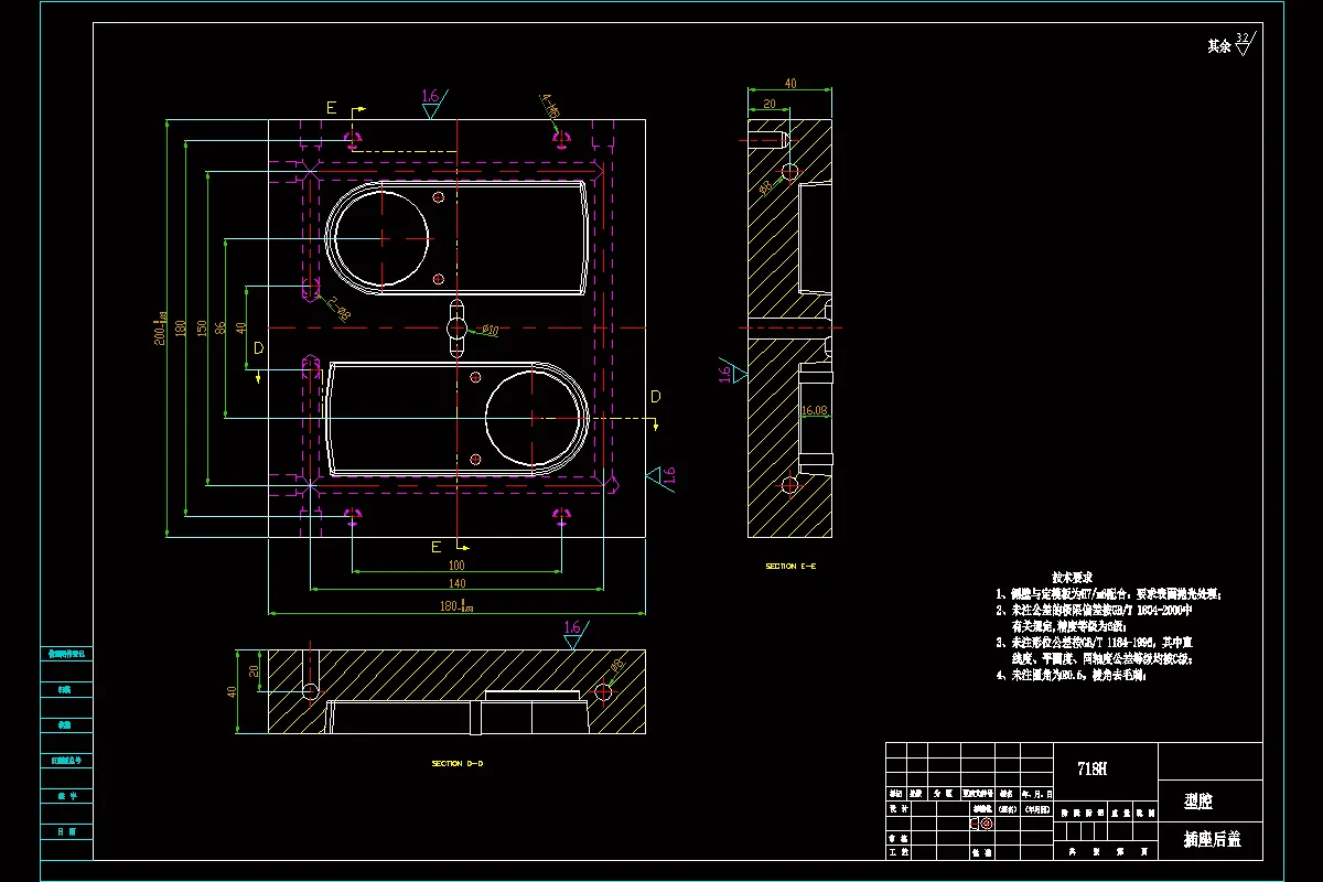
塑料制品有很多种成型的方法,本设计使用的是最常使用的注塑方式——注射成型,进行智能插座后盖注塑模具设计。
本设计的模具设计对象为智能插座后盖,前期对于设计对象进行了相关的测量,数据的记录等;中期主要是使用UG三维设计软件根据前期测量的数据建立立体模型,并在塑件模型的基础上利用UG制造内的模具型腔模块对智能插座后盖作出相应的注塑模模具设计,包括有塑件元件、主分型面、浇口等,并且加入相应的模架、浇口、流道等;后期则是以之前作出的成果为基础使用CAD软件绘制出相应的二维图,也就是工程图,更加清晰的显示出塑件的结构以及注塑模具的机构。
关键词:注塑模具;智能插座后盖;模架;浇口;流道
目录
摘要I
Abstract II
1前言1
1.1注塑成形的概述1
1.1.1我国注塑成形的发展情况1
1.1.2国外注塑成形的发展情况2
1.1.3我国注塑成形中存在的问题以及未来发展分析3
1.2本课题研究内容4
2塑件的工艺分析6
2.1塑件成型方法与分析6
2.2塑件的体积和质量7
2.3塑件的位置公差8
2.4塑件表面质量要求及分析8
2.5脱模斜度分析9
2.6壁厚的分析9
2.7圆角的分析10
2.8孔的分析10
3成型注塑机选用12
3.1注射机的概述12
3.2注射机基本参数12
3.3注塑机选择14
4模具结构设计16
4.1确定模具的基本类型16
4.2型腔数目的确定及型腔的排列16
4.3模架选用17
5成型零部件结构设计19
5.1分型面的选择19
5.2型芯型腔结构的确定20
5.2.1型腔设计20
5.2.2型芯设计22
5.3型芯型腔的尺寸要素23
5.4型芯型腔的尺寸计算23
5.5成形零部件刚度和强度校核24
5.5.1刚度和强度校核要素24
5.5.2型腔侧壁和底板厚度的计算25
6浇注系统设计27
6.1浇口的设计27
6.1.1浇口的形状、位置的确定27
6.1.2浇口位置的选择原则27
6.1.3浇口的尺寸确定28
6.2流道的设计28
6.2.1主流道相关29
6.2.2分流道的设计31
6.2.3分流道的形状与尺寸31
6.2.4分流道的表面粗糙度32
6.3冷料井的设计32
7模具其它结构设计34
7.1脱模装置设计34
7.1.1推出力的计算34
7.1.2推出机构设计35
7.2导向与定位机构设计37
7.3排气及引气系统的设计38
7.4模温调节系统的设计39
8注塑机相关参数的校核41
8.1模具闭合高度的校核41
8.2开模行程的校核41
8.3最大注塑量校核42
8.4锁模力的校核42
8.5顶出装置的校核43
9.注塑模具工作原理44
参考文献46
致谢48
温馨提示:
1、题目前面的备注【字母数字编号】为本站整理分类的编号,与课题内容无关,请选题时忽视;
2、若题目上备注三维,则表示文件里包含三维源文件,由于三维组成零件数量较多,为保证预览截图的简洁性,本站将三维文件夹进行了打包。三维及CAD预览截图,均为本站电脑打开软件进行截图的,保证能够打开,下载原件超高清,下载后解压即可;
3、本站所有资源如无特殊说明,都需要本地电脑安装Office2007。图纸软件为AutoCAD,PROE,UG,SolidWorks,CATIA等;
4、本站所有图文资料仅供用户学习参考,不作为任何商用或其他用途;
5、本站不保证下载资源的准确性、安全性和完整性, 不包修改,不支持退换,同时也不承担用户因使用这些下载资源对自己和他人造成任何形式的伤害或损失;
6、 下载文件中如有侵权或不适当内容,请与我们联系,我们立即纠正。