

作品包括:
Word版说明书1份,共49页,约14000字
任务书一份
开题报告一份
外文翻译一份
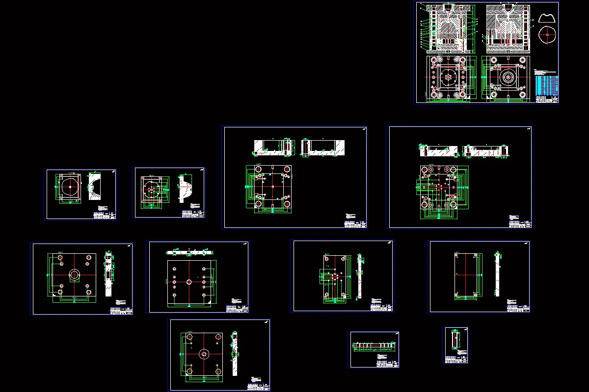
CAD版本图纸,共12张
UG三维图一份


摘要
本次设计我的课题是基于UG桔形塑料包装盒体模具设计,选截面最大处做分型面的设计,模具上设有滑块,成型后通过推板从动模上将塑件推出,回程时用复位杆即可。
在设计时必要要对塑件的各个尺寸进行计算,还要确定精度,然后还要选择本设计最合适的注塑机。在校核注塑机的有关参数,比如模具闭合厚度、安装尺寸、开模行程、锁模力等。每一个参数都满足本设计的要求后才能将注塑机的型号确定下来。
要清楚详细的表达出模具的内部结构,必须还要另附一些模具结构零件图、剖视图,还要用UG设计出整个模具的三维图,最后还要在CAD中按国家的要求导出工程图。
关键词:塑件;滑块;锁模力;三维图
目录
摘要2
ABSTRACT 3
1塑件技术要求及工艺分析7
1.1塑件技术要求7
1.1.1塑件零件图7
图1-1塑件零件图7
1.1.2塑件技术要求7
1.2塑件的工艺性分析8
1.2.1塑件的原材料的分析8
1.2.2塑件的尺寸分析9
1.2.3塑件表面质量分析10
1.2.4结构分析10
1.2.5计算塑件的体积和质量10
1.3桔形塑料包装盒体的三维造型10
2分型面的选择与浇注系统设计15
2.1分型面及型腔的选择15
2.2初步确定注射机的型号16
2.3浇注系统的设计17
2.3.1主流道17
2.3.2分流道设计17
2.3.3浇口设计18
2.4浇注系统的计算19
2.4.1剪切速率的校核19
2.4.2主流道剪切速率校核20
2.4.3浇口剪切速率的校核20
3成型零部件及计算21
3.1型腔和型芯工作尺寸计算21
3.2型腔侧壁厚度计算23
4模架的设计25
5推出机构设计28
5.1概述28
5.2脱模力的计算28
5.3推杆的设计30
6冷却系统设计31
6.1温度调节系统的要求31
6.2冷却回路尺寸的确定31
6.3冷却回路的布置32
7注射机参数的校核35
7.1注射量的校核35
7.2塑件在分型面上的投影面积与锁模力的校核35
7.3模具厚度(闭合高度) 36
7.4开模行程(S)的校核36
8模具工作过程37
9排气系统设计38
9.1排气系统的作用及气体来源39
9.2排气系统的设计要点39
10.在UG8.0中的模具CAD 40
10.1.初始化项目40
10.2.模具坐标系40
10.3设置收缩率40
10.4.创建模具工件40
10.5.创建型腔布局40
10.6.添加模架43
10.7.添加标准件43
10.8.创建浇注系统43
10.9.创建冷却系统44
11.生成和处理工程图45
11.1 UG中生成工程图45
11.2用AutoCAD处理工程图46
总结48
致谢49
参考文献50
温馨提示:
1、题目前面的备注【字母数字编号】为本站整理分类的编号,与课题内容无关,请选题时忽视;
2、若题目上备注三维,则表示文件里包含三维源文件,由于三维组成零件数量较多,为保证预览截图的简洁性,本站将三维文件夹进行了打包。三维及CAD预览截图,均为本站电脑打开软件进行截图的,保证能够打开,下载原件超高清,下载后解压即可;
3、本站所有资源如无特殊说明,都需要本地电脑安装Office2007。图纸软件为AutoCAD,PROE,UG,SolidWorks,CATIA等;
4、本站所有图文资料仅供用户学习参考,不作为任何商用或其他用途;
5、本站不保证下载资源的准确性、安全性和完整性, 不包修改,不支持退换,同时也不承担用户因使用这些下载资源对自己和他人造成任何形式的伤害或损失;
6、 下载文件中如有侵权或不适当内容,请与我们联系,我们立即纠正。