

作品包括:
Word版说明书1份,共37页,约11000字
任务书一份
开题报告一份
CAD版本图纸,共10张
UG三维图一份
模流分析一份


摘要
根据平板电脑中间板塑件的要求,了解塑件的用途,分析塑件的工艺性、尺寸精度等技术要求,考虑塑件制件尺寸。本模具采用一模一腔,点浇口进料,注射机采用HTF160X2A型号,设置冷却系统,UG及CAD绘制二维总装图和零件图,选择模具合理的加工方法。附上说明书,系统地运用简要的文字,简明的示意图和和计算等分析塑件,从而作出合理的注塑模具设计。
关键词:平板电脑中间板;一模一腔;点浇口进料;注射机;冷却系统;注塑模具
目录
摘要I
Abstract II
1绪论1
1.1塑料简介1
1.2注塑成型及注塑模1
2塑件结构分析3
2.1塑件的材料选择4
2.2塑件的结构和尺寸精度表面质量分析4
2.2.1塑件的结构设计4
2.2.2塑件尺寸及精度5
2.2.3塑件表面粗糙度5
2.3计算塑件的体积、质量5
3塑件成型方案设计7
3.1分型面选择7
3.2型腔数的确定7
3.3型腔布局8
3.4浇注系统的类型和位置的选择8
3.5脱模机构的设计9
3.5.1脱模机构的选用原则: 9
3.5.2推杆和斜顶推出机构设计9
3.5.3脱模力的计算10
3.6导向与定位机构设计11
3.7排气及引气系统的设计13
3.8模温调节系统的设计13
3.9模架选用13
3.10注塑模具的工作原理14
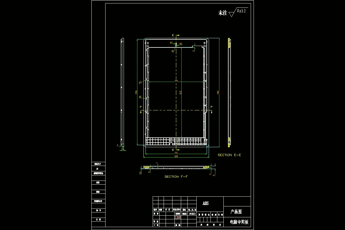
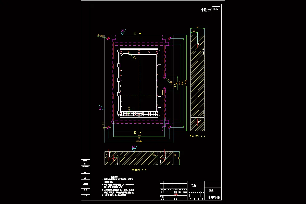
4模具零件设计16
4.1成型零件结构设计16
4.1.1型腔设计16
4.1.2型腔成型零件尺寸计算17
4.1.3型芯设计18
4.1.4型芯成型零件尺寸计算20
4.2模具强度与刚度校核21
4.3浇注系统的设计22
4.3.1主流道的设计22
4.3.2分主流道的设计23
4.3.3浇口的设计23
4.4模具冷却系统的设计24
5注射机的选用及相关参数的校核27
5.1相关参数27
5.2最大注塑量校核28
5.3锁模力校核29
5.4模具与注塑机安装部分相关尺寸校核29
5.5开模行程校核30
总结31
致谢32
参考文献33
温馨提示:
1、题目前面的备注【字母数字编号】为本站整理分类的编号,与课题内容无关,请选题时忽视;
2、若题目上备注三维,则表示文件里包含三维源文件,由于三维组成零件数量较多,为保证预览截图的简洁性,本站将三维文件夹进行了打包。三维及CAD预览截图,均为本站电脑打开软件进行截图的,保证能够打开,下载原件超高清,下载后解压即可;
3、本站所有资源如无特殊说明,都需要本地电脑安装Office2007。图纸软件为AutoCAD,PROE,UG,SolidWorks,CATIA等;
4、本站所有图文资料仅供用户学习参考,不作为任何商用或其他用途;
5、本站不保证下载资源的准确性、安全性和完整性, 不包修改,不支持退换,同时也不承担用户因使用这些下载资源对自己和他人造成任何形式的伤害或损失;
6、 下载文件中如有侵权或不适当内容,请与我们联系,我们立即纠正。