

作品包括:
Word版说明书1份,共41页
任务书一份
开题报告一份
外文翻译一份
CAD版本图纸,共26张
UG三维图一份



摘要
这次设计的题目是笔记本电池盖的注射模具设计。
注射成形的原理是把塑料原料放入料筒中通过加热熔融塑化成为黏流态的流体,用柱塞或螺杆的高压推进下,使熔体通过喷嘴以高压力注入模具的型腔中,通过冷却、凝固阶段,冷却定形后,而后开模分型得成形塑件,从而得到塑料制品。
设计中主要进行的工作首先是对塑料进行工艺性能的分析并画出塑件零件图,然后是主流道的设计、模具型腔的分部以及型腔位置的选择,画出它们的零件图,进而是模架的选择和校核、注塑机的选取和校核等,对其中出现的问题对模具进行修改,直到最后的零件满足设计要求。
关键词:注射模具,注射成型,模具设计
目录
摘要I
Abstract II
第1章绪论1
1.1模具工业的概况1
1.2模具发展的前景2
1.3注射成型原理3
第2章方案讨论4
2.1选择成型设备4
2.2拟定模具结构方案4
2.3方案的讨论与论证4
2.4绘制模具装配图4
2.5绘制零件图5
2.6编写设计说明书5
第3章塑件注塑成型的工艺分析7
3.1塑件分析7
3.1.1外形尺寸分析7
3.1.2精度等级分析8
3.1.3塑件材料的成型工艺参数8
3.2塑件材料的成型工艺参数9
3.2.1 ABS塑料主要的性能指标9
3.2.2 ABS的注射成型工艺参数10
3.2.3塑件的体积和质量10
第4章注射机型号的确定10
4.1注射量的计算10
4.2浇注系统凝料体积的初步估计10
4.3注塑机的选择11
第5章注塑机的相关参数校核12
5.1注射量的校核12
5.2锁模力的校核12
第6章分型面的确定13
6.1分型面的形式13
6.2分型面的选择原则13
6.3本设计分型面的选择13
第7章塑件工作尺寸的计算14
7.1型腔凹模径向尺寸计算15
7.2型腔深度尺寸的计算19
7.3型芯径向尺寸的计算19
7.4型芯高度尺寸的计算20
第8章浇注系统的设计20
8.1主流道设计21
8.2分流道的布置22
8.3浇口的设计22
第9章推出机构和导向机构的设计24
9.1脱模推出结构的设计24
9.2合模导向机构的设计25
第10章温度调节系统和排气系统的设计27
10.1温度调节系统的设计27
10.2排气系统的设计28
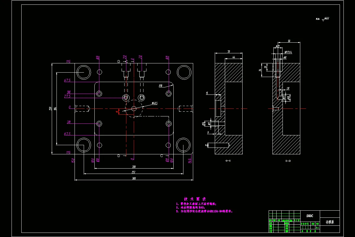
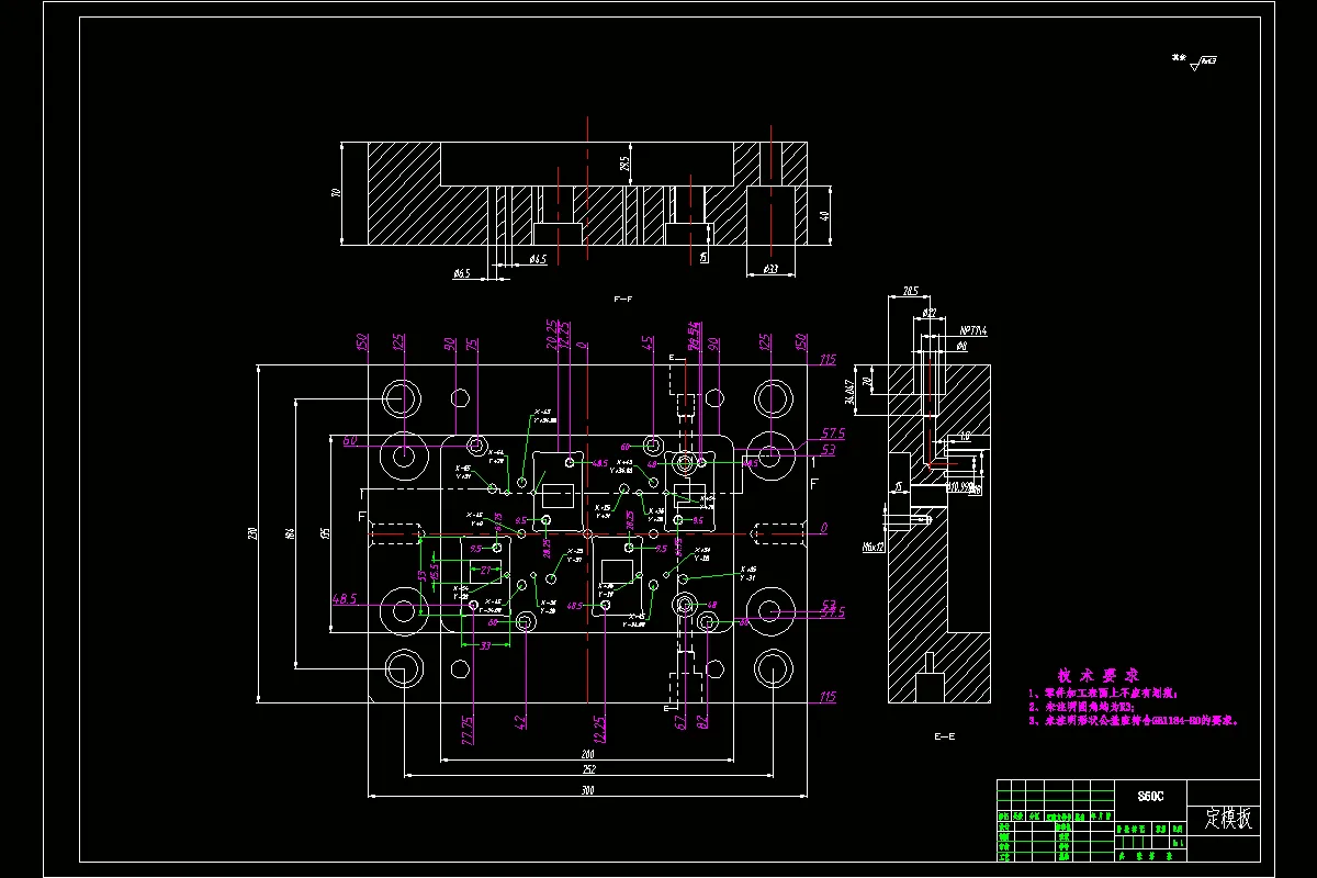
第11章绘制模具装配图及零件图29
总结30
参考文献31
温馨提示:
1、题目前面的备注【字母数字编号】为本站整理分类的编号,与课题内容无关,请选题时忽视;
2、若题目上备注三维,则表示文件里包含三维源文件,由于三维组成零件数量较多,为保证预览截图的简洁性,本站将三维文件夹进行了打包。三维及CAD预览截图,均为本站电脑打开软件进行截图的,保证能够打开,下载原件超高清,下载后解压即可;
3、本站所有资源如无特殊说明,都需要本地电脑安装Office2007。图纸软件为AutoCAD,PROE,UG,SolidWorks,CATIA等;
4、本站所有图文资料仅供用户学习参考,不作为任何商用或其他用途;
5、本站不保证下载资源的准确性、安全性和完整性, 不包修改,不支持退换,同时也不承担用户因使用这些下载资源对自己和他人造成任何形式的伤害或损失;
6、 下载文件中如有侵权或不适当内容,请与我们联系,我们立即纠正。