

作品包括:
Word版说明书1份,共52页
任务书一份
开题报告一份
CAD版本图纸,共13张


摘要
随着塑料工业的飞速发展,塑料模具对人们的生活影响越来越大了,已成为衡量一个国家制造业水平高低的重要标志,并在很大程度上决定着产品质量、效益和新产品的开发能力。我国的模具水平在近几年也得到了很大的发展。
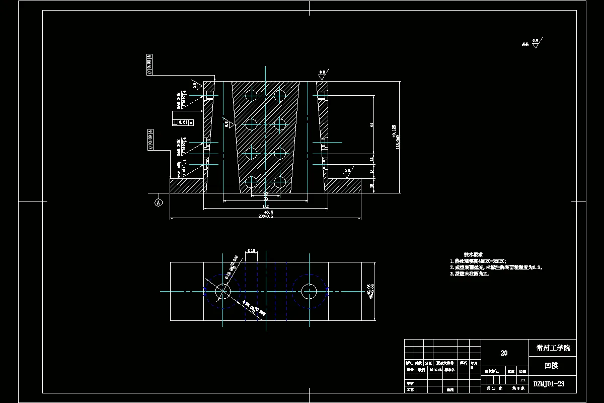
在本次设计过程中,主要设计了麦克风外壳的注射模具。分析了塑件的形状尺寸,拟订了模具的总体结构设计方案,并选定了所需的注射机的型号,设计了模具的成型部分,浇注系统和冷却系统等,并对模具进行了分模。重点设计了模具的成型部分,并绘制了模具的装配图和动模定模图。
目录
第1章绪论3
1.1塑料成型在工业生产中的重要性3
1.1.1塑料及塑料工业的发展3
1.1.2塑料在成型工业生产中的重要性4
1.2塑料的组成及其特性4
1.3设计程序9
1.3.1调研、消化原始资料9
1.3.2选择成型设备10
1.3.3拟定模具结构方案10
1.3.4方案的讨论与论证11
1.3.5绘制模具装配草图11
1.3.6绘制模具装配图12
1.3.7绘制零件图12
1.3.8编写设计说明书12
第2章模具方案设计13
2.1塑料模具的分类13
2.2方案的确定14
第3章麦克风手柄注塑模具设计18
3.1制件塑料的选择以及麦克风塑料制件的市场前景分析18
3.2注塑机的选择20
3.2.1选择注塑机的相关计算: 22
3.3麦克风手柄工艺分析25
3.4模具结构设计30
3.4.1分型面的选择30
3.4.2浇注系统设计31
3.4.3成型零部件的设计与计算33
3.4.3.1尺寸的转换33
3.4.3.2关于凹模工作部分尺寸的计算: 35
3.4.3.3关于凸模工作部分尺寸的计算37
3.4.3.4螺纹型环尺寸的计算38
3.4.3.5模具型腔侧壁的计算39
3.4.3.6模架的选取39
3.4.3.7模具导向机构的设计39
3.4.3.8.侧向分型与抽芯机构的设计40
3.4.3.9温度调节系统的设计与计算42
凹模的造型44
凸模的造型及加工仿真47
结论51
致谢52
温馨提示:
1、题目前面的备注【字母数字编号】为本站整理分类的编号,与课题内容无关,请选题时忽视;
2、若题目上备注三维,则表示文件里包含三维源文件,由于三维组成零件数量较多,为保证预览截图的简洁性,本站将三维文件夹进行了打包。三维及CAD预览截图,均为本站电脑打开软件进行截图的,保证能够打开,下载原件超高清,下载后解压即可;
3、本站所有资源如无特殊说明,都需要本地电脑安装Office2007。图纸软件为AutoCAD,PROE,UG,SolidWorks,CATIA等;
4、本站所有图文资料仅供用户学习参考,不作为任何商用或其他用途;
5、本站不保证下载资源的准确性、安全性和完整性, 不包修改,不支持退换,同时也不承担用户因使用这些下载资源对自己和他人造成任何形式的伤害或损失;
6、 下载文件中如有侵权或不适当内容,请与我们联系,我们立即纠正。