

作品包括:
Word版说明书1份,共38页,约13000字
CAD版本图纸,共11张
UG三维图一份

摘要
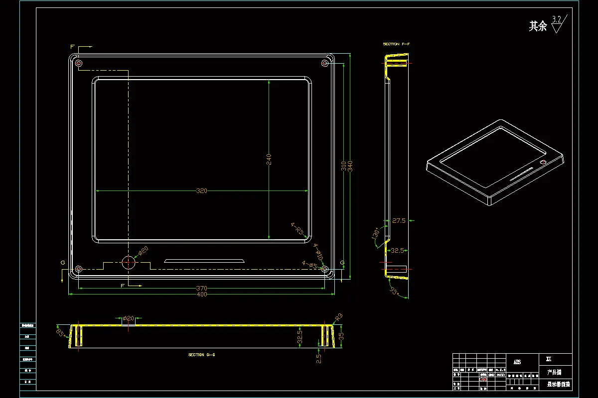
根据塑料显示器前盖制品的要求,了解塑件的用途,分析塑件的工艺性、尺寸精度等技术要求,考量塑件制件尺寸。本模具采用一模一腔,侧浇口进料,注射机采用xzy-2000型号,设置冷却系统,CAD和UG绘制二维总装图和零件图,选择模具合理的加工方法。附上说明书,系统地运用简要的文字,简明的示意图和和计算等分析塑件,从而作出合理的注塑模具设计。
关键词:显示器前盖;侧浇口;注射机;冷却系统;注塑模具
目录
摘要1
ABStract 2
1前言5
1.1课题背景5
1.2课题分析6
2塑件分析8
2.1产品分析及其技术条件8
2.2塑件材料的确定9
2.3塑件材料的性能分析10
2.3.1基本特性10
2.3.2成型性能10
2.3.3主要用途11
3成型布局及注塑机选择12
3.1进胶方式选择12
3.2型腔的布局及成型尺寸12
3.3估算塑件体积质量13
3.4注塑机的选择和校核13
3.4.1注射胶量的计算13
3.4.2锁模力的计算14
3.4.3注塑机选择确定15
4注塑模具设计17
4.1模架的选用17
4.1.1模架基本类型17
4.1.2模架的选择17
4.1.3导向与定位机构设计18
4.2浇注系统的设计19
4.2.1主流道设计19
4.2.2分流道的设计20
4.2.3浇口的设计20
4.2.4冷料穴的设计21
4.3分型面的设计22
4.4成型零部件的设计23
4.4.1成型零部件结构23
4.4.2成型零部件工作尺寸的计算25
4.4.3凹模宽度尺寸的计算25
4.4.4凹模长度尺寸的计算26
4.4.5凹模高度尺寸的计算26
4.4.6凸模宽度尺寸的计算26
4.4.7凸模长度的计算26
4.7.8凸模高度尺寸的计算26
4.4.9模具强度与刚度校核27
4.6脱模及推出机构27
4.6.1脱模力27
4.6.2推出机构28
4.7冷却系统的设计与计算29
4.7.1冷却水道设计的要点30
4.7.2冷却水道在定模和动模中的位置30
4.7.3冷却水道的计算31
4.8排气结构设计32
4.9模具与注射机安装模具部分相关尺寸校核32
5结语34
致谢35
附图(2D3D)装配图36
参考文献38
温馨提示:
1、题目前面的备注【字母数字编号】为本站整理分类的编号,与课题内容无关,请选题时忽视;
2、若题目上备注三维,则表示文件里包含三维源文件,由于三维组成零件数量较多,为保证预览截图的简洁性,本站将三维文件夹进行了打包。三维及CAD预览截图,均为本站电脑打开软件进行截图的,保证能够打开,下载原件超高清,下载后解压即可;
3、本站所有资源如无特殊说明,都需要本地电脑安装Office2007。图纸软件为AutoCAD,PROE,UG,SolidWorks,CATIA等;
4、本站所有图文资料仅供用户学习参考,不作为任何商用或其他用途;
5、本站不保证下载资源的准确性、安全性和完整性, 不包修改,不支持退换,同时也不承担用户因使用这些下载资源对自己和他人造成任何形式的伤害或损失;
6、 下载文件中如有侵权或不适当内容,请与我们联系,我们立即纠正。