

作品包括:
Word版说明书1份,共39页,约14000字
CAD版本图纸,共10张
UG三维图一份

摘要
模具设计是现代机械制造专业与高分子材料专业交叉结合的专业学科,不但具备了热塑性材料方面的材料特性与成型工艺,也具备了机械加工与制造、机械设计原理、工程力学等原理。
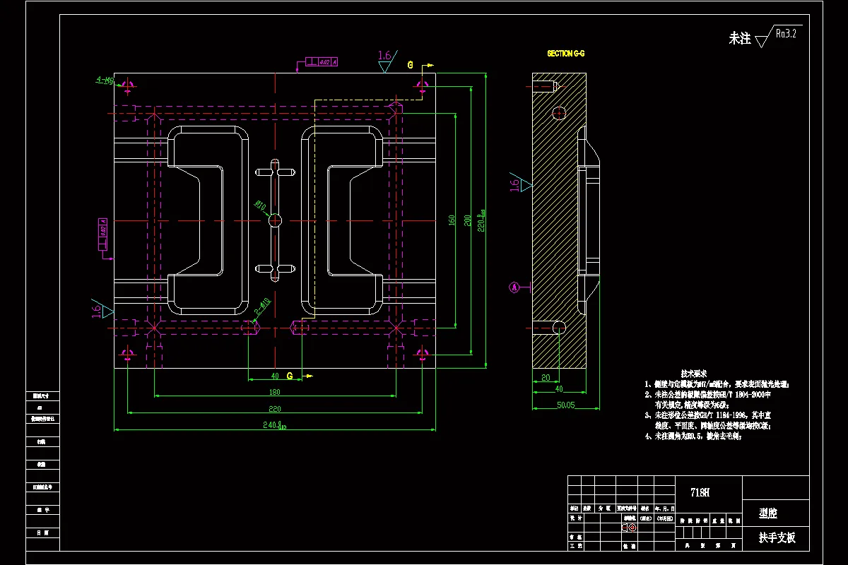
本文选择了的座江淮客车6668G座椅扶手支板塑件作为设计核心,最终完成整套的注射模具设计。首先完成了塑件的测绘与建模,然后分析了该塑件的结构工艺性,结合塑件的使用特性,选择了合适该塑件的热塑性材料来成型。根据经济性与模具设计原则规范要求,采用了一模二腔的结构布局形式,该方案结构简单可靠。对于本文重点的模具设计七大系统,分别采用了侧浇口的浇注系统;采用冷却水道来降低温度,控制注塑成型周期;在成型系统零部件的设计上,采用了镶嵌式的型芯和型腔,这两个核心零部件采用专门的模具钢材制造与加工,寿命更长久;对于顶出脱模系统的设计上,仍然采用最高效的顶杆顶出机构来实现;本套设计重点完成了斜顶、滑块抽芯机构的设计,实现了对塑件特殊结构的成型设计。
在完成前面的结构设计方案之后,进一步的通过机械设计软件来实现建模,通过采用3D NX软件完成三维模具总装图的建模。采用Auto CAD软件来完成二维总装图的绘制,非标零件工程图绘制。并编制说明书来校核整套模具设计。
关键词:座椅扶手支板;注射模具;一模二腔;侧浇口;型芯;型腔;抽芯机构
目录
摘要I
Abstract II
第一章前言1
1.1模具在机械行业的地位1
1.2模具发展趋势2
1.3课题主要解决的问题2
1.4课题设计思路2
第二章塑料材料分析3
2.1原材料分析3
2.1.1材料的成型性能3
2.2.2材料的物理性能4
2.2.3材料的主要用途4
2.2表面质量分析4
第三章塑件的工艺分析5
3.1塑件的结构设计6
3.2塑件尺寸及精度6
3.3塑件表面粗糙度6
3.4塑件的体积和质量6
第四章注射成型工艺方案及模具结构的分析和确定8
4.1注射成型工艺过程分析8
4.2浇口种类的确定8
4.3型腔数目的确定9
4.4注射机的选择和校核9
4.4.1注射量的校核10
4.4.2塑件在分型面上的投影面积与锁模力的校核10
4.4.3模具与注射机安装模具部分相关尺寸校核11
第五章注塑模具结构设计13
5.1分型面的选择13
5.2型腔的布局13
5.3浇注系统的设计14
5.3.1浇注系统组成15
5.3.2主流道的设计15
5.3.3分流道的设计16
5.3.4浇口的设计17
5.3.5冷料穴的设计17
5.4注射模成型零部件的设计18
5.4.1成型零部件结构设计18
5.4.2成型零部件工作尺寸的计算19
5.5排气结构设计21
5.5.1排气的作用21
5.5.2排气方式21
5.6脱模机构的设计21
5.6.1脱模机构的选用原则21
5.6.2脱模机构类型的选择22
5.6.3推杆机构具体设计22
5.7注射模温度调节系统23
5.7.1冷却水道的设计23
5.7.2冷却系统之设计规则23
5.7.3冷却水道的计算24
5.8模架及标准件的选用25
第六章侧向抽芯机构27
6.1斜顶侧向抽芯机构设计27
6.2滑块抽芯机构工作原理28
第7章模具材料的选用29
7.1成型零件材料选用29
7.2注射模用钢种29
7.3模具标准件的选用30
第七章模具的装配31
总结32
致谢33
参考文献34
温馨提示:
1、题目前面的备注【字母数字编号】为本站整理分类的编号,与课题内容无关,请选题时忽视;
2、若题目上备注三维,则表示文件里包含三维源文件,由于三维组成零件数量较多,为保证预览截图的简洁性,本站将三维文件夹进行了打包。三维及CAD预览截图,均为本站电脑打开软件进行截图的,保证能够打开,下载原件超高清,下载后解压即可;
3、本站所有资源如无特殊说明,都需要本地电脑安装Office2007。图纸软件为AutoCAD,PROE,UG,SolidWorks,CATIA等;
4、本站所有图文资料仅供用户学习参考,不作为任何商用或其他用途;
5、本站不保证下载资源的准确性、安全性和完整性, 不包修改,不支持退换,同时也不承担用户因使用这些下载资源对自己和他人造成任何形式的伤害或损失;
6、 下载文件中如有侵权或不适当内容,请与我们联系,我们立即纠正。