

作品包括:
Word版说明书1份,共43页,约14000字
开题报告一份
外文翻译一份
CAD版本图纸,共14张
UG三维图一份
Proe三维图一份

摘要
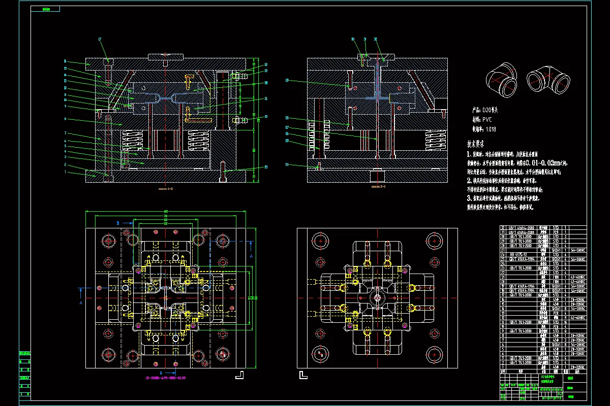
根据塑料制品的要求,了解塑件的用途,分析塑件的工艺性、尺寸精度等技术要求,考量塑件制件尺寸。本模具采用一模四腔,侧浇口进料,注射机采用XS-ZY 500/200型号,设置冷却系统,CAD和PROE绘制二维总装图和零件图,选择模具合理的加工方法。附上说明书,系统地运用简要的文字,简明的示意图和和计算等分析塑件,从而作出合理的模具设计。
关键词:机械设计;模具设计;CAD绘制二维图;PROE绘制3D图。
目录
摘要2
Abstract 3
第一章前言3
1.1课题背景3
1.2课题分析4
第二章塑件分析5
2.1产品分析及其技术条件5
2.2塑件材料的确定6
2.3塑件材料的性能分析6
2.3.1基本特性6
2.3.3主要用途7
第三章成型布局及注塑机选择8
3.1进胶方式选择8
3.2型腔的布局及成型尺寸8
3.3估算塑件体积质量9
3.4注塑机的选择和校核9
3.4.1注射胶量的计算9
3.4.2锁模力的计算10
3.4.3注塑机选择确定11
表<1> HTFXS-ZY 500/200注塑机参数11
第四章注塑模具设计12
4.1模架的选用12
4.1.1模架基本类型12
4.1.2模架的选择12
4.1.3导向与定位机构设计13
4.2成型浇注系统的设计14
4.2.1主流道设计14
4.2.2分流道的设计15
4.2.3浇口的设计16
4.2.4冷料穴的设计16
4.3分型面的设计17
4.4成型零部件的设计18
4.4.1成型零部件结构18
4.4.2成型零部件工作尺寸的计算20
4.4.3凹模宽度尺寸的计算21
4.4.4凹模长度尺寸的计算21
4.4.5凹模高度尺寸的计算21
4.4.6凸模宽度尺寸的计算21
4.4.7凸模长度的计算22
4.7.8凸模高度尺寸的计算22
4.4.9模具强度与刚度校核22
4.6脱模及推出机构23
4.6.1脱模力23
4.6.2推出机构23
4.7冷却系统的设计与计算25
4.7.1冷却水道设计的要点26
4.7.2冷却水道在定模和动模中的位置26
4.7.3冷却水道的计算27
4.8排气结构设计28
4.9模具与注射机安装模具部分相关尺寸校核28
5.10.侧向抽芯机构类型选择29
结语35
致谢36
附图(2D/3D)装配图37
参考文献39
温馨提示:
1、题目前面的备注【字母数字编号】为本站整理分类的编号,与课题内容无关,请选题时忽视;
2、若题目上备注三维,则表示文件里包含三维源文件,由于三维组成零件数量较多,为保证预览截图的简洁性,本站将三维文件夹进行了打包。三维及CAD预览截图,均为本站电脑打开软件进行截图的,保证能够打开,下载原件超高清,下载后解压即可;
3、本站所有资源如无特殊说明,都需要本地电脑安装Office2007。图纸软件为AutoCAD,PROE,UG,SolidWorks,CATIA等;
4、本站所有图文资料仅供用户学习参考,不作为任何商用或其他用途;
5、本站不保证下载资源的准确性、安全性和完整性, 不包修改,不支持退换,同时也不承担用户因使用这些下载资源对自己和他人造成任何形式的伤害或损失;
6、 下载文件中如有侵权或不适当内容,请与我们联系,我们立即纠正。