

作品包括:
Word版说明书1份,共34页,约11000字
CAD版本图纸,共21张

摘要
现代工业发展中,模具占有举足轻重的地位,由模具生产出的产品具有成本低,效率高,质量好等优点,因此模具在许多领域得到广泛应用。
本设计主要对轭铁零件进行级进模的设计,本设计首先阐述了冲压模具的国内外发展以及发展趋势,然后根据轭铁零件的结构特点进行工艺分析和排样方案的确定,通过两种方案对比选择最佳方案,根据冲压模具设计的一般步骤对凸凹模、凸模固定板、垫板等零件进行设计,选择合适的模架和冲压机,对压力机进行了校核计算,还有一些关键零件进行了校核,为了简化模具结构对冲孔和落料采用相同的固定板固定,落料的凹模采用整体式的结构,利用CAD软件完成了二维装配图和零件的绘制。
关键词:冲压模;模架;冲压机;级进模;
目录
摘要I
Abstract II
第一章绪论1
1.1冲压模具的现状1
1. 2冲压模具的优缺点1
1. 3冲压模具的发展1
第二章轭铁零件的冲压工艺分析2
2.1零件的材料分析2
2.2零件工艺分析3
2.3尺寸精度3
2.4计算毛坯尺寸3
2.5排样设计5
2.5.1排样原则5
2.5.2搭边及其作用6
2.5.3搭边值的确定6
2.5.4载体设计7
2.5本章小结8
第三章轭铁零件连续模的工艺计算9
3.1压力的计算9
3.1.1冲裁力的计算9
3.1.2弯曲力的计算10
3.2压力中心计算12
3.3各主要零件尺寸的计算12
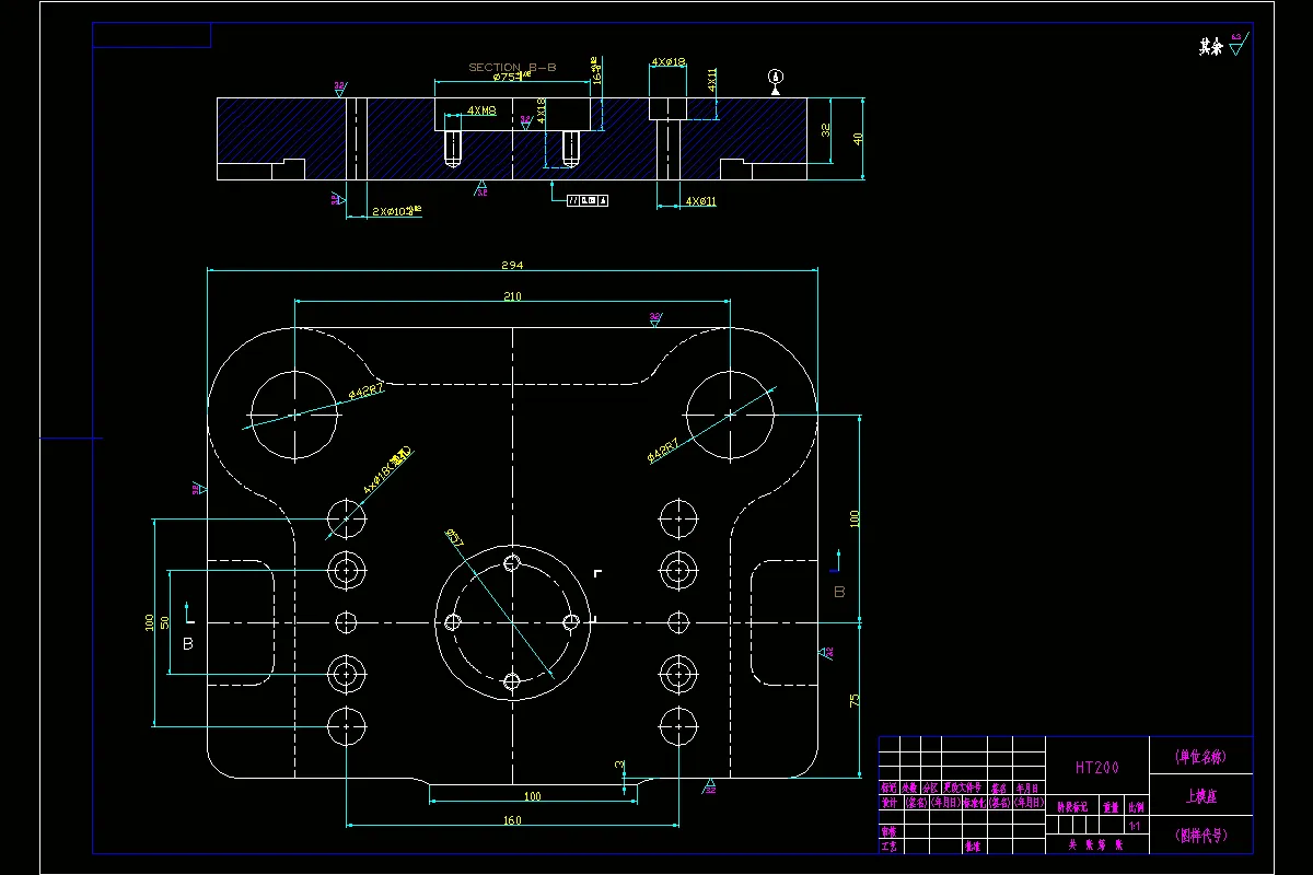
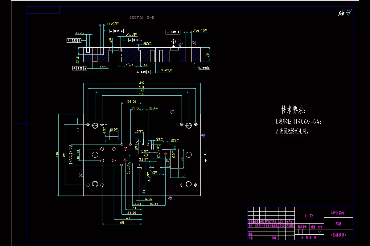
3.3.1凹模的设计12
3.3.2凸模固定板的设计15
3.3.3垫板的选用与厚度16
3.3.4卸料机构的设计16
3.4冲裁间隙的确定17
3.5刃口尺寸的计算18
3.5.1刃口尺寸的计算18
3.5.2凸凹模刃口尺寸的确定18
3.6弯曲模具尺寸的计算21
3.7本章小结22
第四章轭铁零件连续模的零部件设计与选用23
4.1模具主要零部件的设计23
4.1.1冲裁凸、凹模的设计23
4.1.2卸料板的设计23
4.2模架的设计24
4.3冲床选用24
4.3.1冲压设备的选择依据24
4.3.2压力机的选择24
4.4模具的总体结构设计25
4.5本章小结26
第五章压力机的校核27
5.1公称压力27
5.2滑块行程27
5.3行程次数27
5.4滑块模柄孔尺寸27
5.5闭合高度27
参考文献28
总结29
致谢30
温馨提示:
1、题目前面的备注【字母数字编号】为本站整理分类的编号,与课题内容无关,请选题时忽视;
2、若题目上备注三维,则表示文件里包含三维源文件,由于三维组成零件数量较多,为保证预览截图的简洁性,本站将三维文件夹进行了打包。三维及CAD预览截图,均为本站电脑打开软件进行截图的,保证能够打开,下载原件超高清,下载后解压即可;
3、本站所有资源如无特殊说明,都需要本地电脑安装Office2007。图纸软件为AutoCAD,PROE,UG,SolidWorks,CATIA等;
4、本站所有图文资料仅供用户学习参考,不作为任何商用或其他用途;
5、本站不保证下载资源的准确性、安全性和完整性, 不包修改,不支持退换,同时也不承担用户因使用这些下载资源对自己和他人造成任何形式的伤害或损失;
6、 下载文件中如有侵权或不适当内容,请与我们联系,我们立即纠正。