

作品包括:
Word版说明书1份,共23页,约8700字
外文翻译一份
CAD版本图纸,共26张

摘要
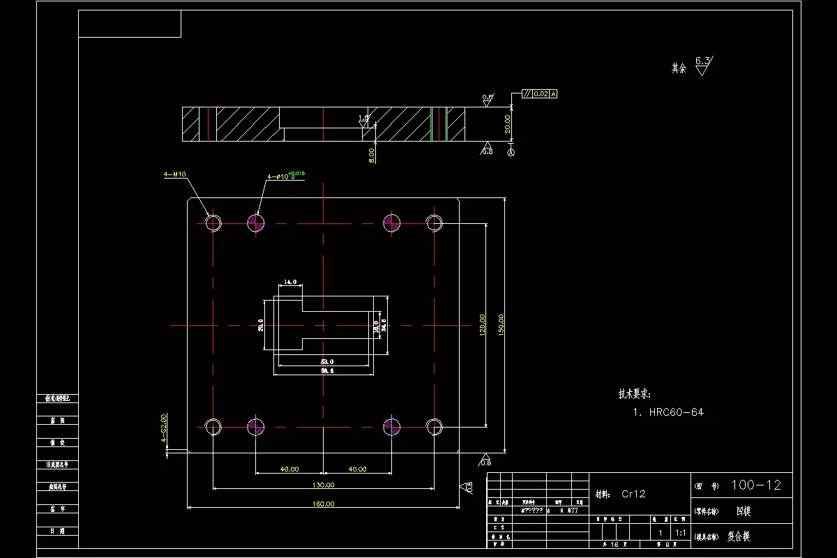
我这次所要设计的模具是一副很简单的需要落料,冲孔,弯曲的模具。我的思路是想设计的模具结构简单,拆卸方便,上面的每一个零件都是可以方便维修,方便替换的,并且在冲床上能过很好的精确定位,冲出来的产品精度高表面质量好。虽然我的制件精度要求不高。设计这副模具的时候我首先要对自己所要设计的产品进行比较细心的分析,计算凸模,凹模的尺寸,分析模具的结构,怎么生产方便,通过材料生产工艺提高效率,减少时间,提高精度。然后画出模具的结构草图。考虑上模座板,垫板,凸模固定板,凸模,卸料板,凹模,凹模固定板,下模座的装配,位置精度的控制。
关键词:复合模,落料,冲孔,弯曲
目录
前言2
摘要3
Abstract4
一、冲压件的工艺分析5
二、工艺参数的计算6
2.1毛坯的尺寸计算6
2.2排样及材料利用率的计算7
2.3、各部分工艺力的计算8
2.4计算压力中心9
2.5主要工作部分尺寸计算9
三、冲压设备的选择12
四、模具总体结构的设计13
4.1绘制模具总体结构草图13
4.2模具结构的设计,确定结构件的形式13
4.3模架的选择16
五、模具的动作过程(如图2-6)16
六、模具主要零件结构设计的分析17
6.1、冲孔凸模设计:17
6.2、落料凹模的设计17
6.3凸、凹模的设计18
七、模具图样设计19
八、模具装配与调试21
参考文献23
温馨提示:
1、题目前面的备注【字母数字编号】为本站整理分类的编号,与课题内容无关,请选题时忽视;
2、若题目上备注三维,则表示文件里包含三维源文件,由于三维组成零件数量较多,为保证预览截图的简洁性,本站将三维文件夹进行了打包。三维及CAD预览截图,均为本站电脑打开软件进行截图的,保证能够打开,下载原件超高清,下载后解压即可;
3、本站所有资源如无特殊说明,都需要本地电脑安装Office2007。图纸软件为AutoCAD,PROE,UG,SolidWorks,CATIA等;
4、本站所有图文资料仅供用户学习参考,不作为任何商用或其他用途;
5、本站不保证下载资源的准确性、安全性和完整性, 不包修改,不支持退换,同时也不承担用户因使用这些下载资源对自己和他人造成任何形式的伤害或损失;
6、 下载文件中如有侵权或不适当内容,请与我们联系,我们立即纠正。