

作品包括:
Word版说明书1份,共29页,约15000字
CAD版本图纸,共13张

摘 要:随着经济全球化的不断深化,模具工业在一部分国民经济中起着越来越明显的作用。产品的质量的好坏以及生产效率的高低与模具水平的高低息息相关。
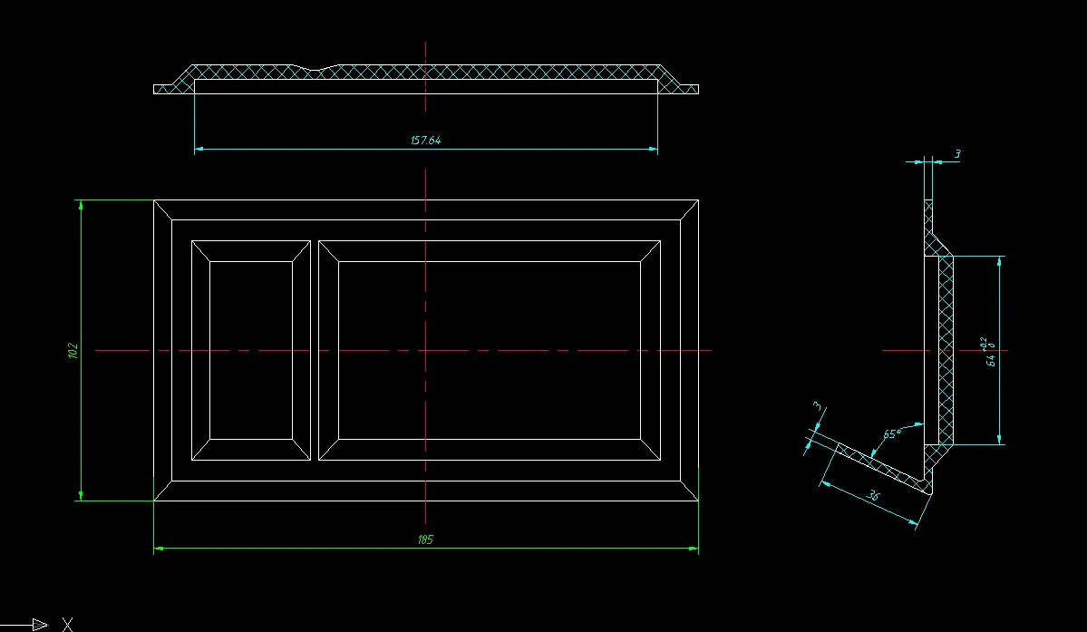
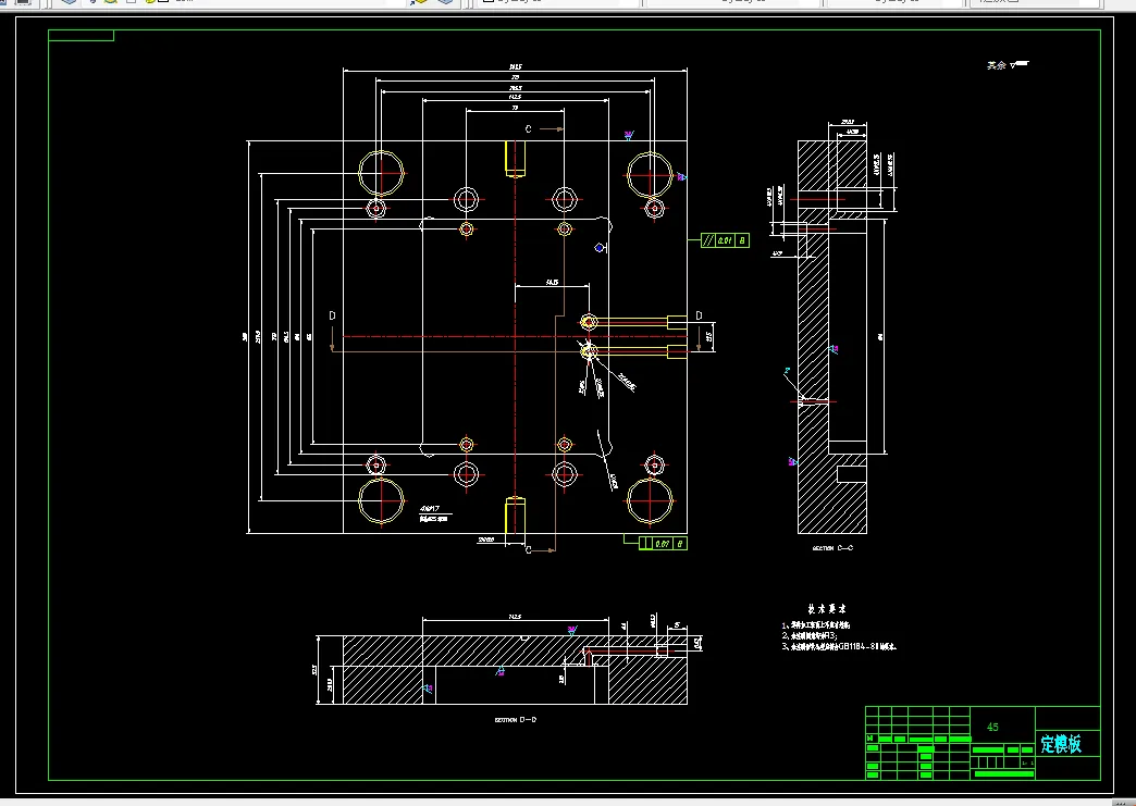
首先此次毕业设计主要完成台历架注射模具的设计,设计中分析了台历架零件的结构及工艺性,确定该塑件的注塑成型方案并进行了注射模设计方面的相关计算。其次利用UG软件的CAD模块对台历架注射模进行三维曲面造型。本模具主要难点是采用了侧抽芯。模具结构紧凑、工作可靠、操作方便、运转平稳、冷却效果好、劳动强度低、生产效率高、生产的塑件精度高、生产成本低。本文从型腔数量和布局的确定、注射机选择、流道的设计、模板及其标准件的选用、冷却系统、成型部件的设计等给出了详细的设计过程。
注射模具设计是一个需要很多的经验的模具设计,所以我们可以利用各种设计经验与理论相结合的方式使得该设计更加完美。UG软件是一个极好的工具,可用于现代的成型加工与模具设计。
关键词:注塑模;三维曲面造型;UG;CAD
目 录
1 绪论 1
1.1 本课题研究的内容和意义 1
1.2 模具工业国内外发展的概况 1
1.3 本课题应达到的要求 2
2 台历架的设计及其成型工艺的分析 3
2.1 产品功能分析 3
2.2 塑件背面外壳分析 3
2.2.1 结构分析 3
2.2.2 成型工艺分析 3
2.3 塑料的选材及性能分析 3
2.3.1 使用特点 3
2.3.2 成型特性 4
2.3.3 PS的主要性能指标 4
2.4 PS塑料的注射过程及工艺 4
2.4.1 注射成型过程 4
2.4.2 PS的注射工艺参数 4
2.5 PS的主要缺陷及消除措施 5
3 模具设计方案的确定 6
3.1 分型面方案的确定 6
3.1.1 分型面的选择原则 6
3.1.2 分型面确定 6
3.2 型腔数量确定及排列形式 7
4 模具设计 8
4.1 注塑机选型 8
4.1.1 注射量计算 8
4.1.2 注射机型号的选定 8
注射机的选择: 8
4.1.3 型腔数量的校核及注射机有关工艺参数的校核 9
4.2 模具浇注系统设计和浇口的设计 10
4.2.1 主流道的设计 10
4.2.2 分流道与浇口的设计 12
4.3 成型零件工作尺寸的设计和计算 12
4.3.1 型芯 13
4.3.2 型腔 13
4.3.3 型腔零件刚度和强度校核 14
4.3.4 成型零件钢材的选用 14
4.4 模架的确定和标准件的选用 14
4.5 合模导向机构和定位机构 15
4.5.1 导向机构的总体设计 15
4.5.2 导柱设计 16
4.5.3 导套设计 16
4.6 脱模推出机构的设计 16
4.6.1 推出机构的组成 16
4.6.2 推出机构的分类 16
4.6.3 脱模推出机构的设计原则 17
4.6.4 塑件的推出机构 17
4.6.5 脱模力的计算 17
4.7 斜顶与抽芯机构设计 18
4.8 排气系统设计 18
4.9 冷却系统的优化设计 18
5 模具装配 21
结论 23
致 谢 24
参考文献 25
温馨提示:
1、题目前面的备注【字母数字编号】为本站整理分类的编号,与课题内容无关,请选题时忽视;
2、若题目上备注三维,则表示文件里包含三维源文件,由于三维组成零件数量较多,为保证预览截图的简洁性,本站将三维文件夹进行了打包。三维及CAD预览截图,均为本站电脑打开软件进行截图的,保证能够打开,下载原件超高清,下载后解压即可;
3、本站所有资源如无特殊说明,都需要本地电脑安装Office2007。图纸软件为AutoCAD,PROE,UG,SolidWorks,CATIA等;
4、本站所有图文资料仅供用户学习参考,不作为任何商用或其他用途;
5、本站不保证下载资源的准确性、安全性和完整性, 不包修改,不支持退换,同时也不承担用户因使用这些下载资源对自己和他人造成任何形式的伤害或损失;
6、 下载文件中如有侵权或不适当内容,请与我们联系,我们立即纠正。