

作品包括:
Word版说明书1份,共42页,约16000字
CAD版本图纸,共8张
UG三维图一套

摘 要
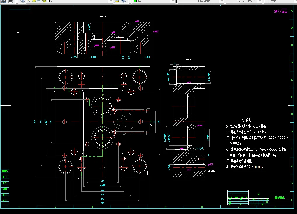
这次设计的课题是针对一个塑料制成的洗衣液瓶盖零件,是个自主选择的研究产品是洗衣液瓶盖零件是种瓶子类的零件通过三维软件UG,对洗衣液瓶盖零件进行3D软件建模,另外在此基础上,设计人员还对模具的成型结构进行了设计,因为零件内部有螺丝所以使用到了齿条抽芯的自动脱螺丝机构,零件外侧面也有螺纹这个侧面的螺纹使用了定模侧抽芯的机构,并绘制出相关的装配图、零件图。在结构设计过程中,经过方案对比,选定采用了一模二腔的设计。本次设计的模具具有工作稳定、结构紧凑等特点,最后除了模具结构的设计外,还对模具的进行了分型面、型腔数目、浇注系统、脱模机构、冷却系统等进行了详细的设计。
先利用UG、对洗衣液瓶盖零件进行3D建模,并设计动模及定模部份各设计了一组直径8mm的冷却管道。然后根据相应的参数对应选择注射机的型号,并对塑料制品的模架结构进行了设计,对模具参数进行校核,完成了浇注系统和型腔排布的设计,同时还完成了装配图和零件图的设计。在检验过程中需要仔细核对细节,避免发生模具设计不合理、零件干涉等错误的发生。
关键词: 冷却水道;洗衣液瓶盖零件;注射模具设计;注塑成型
目 录
摘 要 2
ABSTRACT 3
目 录 4
第一章 引言 1
1.1 注射成型模具的地位及发展趋势 1
1.2注塑成型模具的发展趋势 2
1.3 设计选题的背景和意义 4
第二章 零件成型及工艺分析 5
2.1 零件分析 5
2.2塑件的工艺性分析 6
2.3材料的基本特性 6
2.3.HDPE材料的性能指标 7
2.3.2 材料的成型性能 7
2.4 零件的体积质量与注射机的选择 7
2.5 注射工艺参数的确定 8
第三章 注塑模具的结构设计 9
3. 分型面的选择 9
3.2型腔的排列方式 9
3.3 浇注系统的设计 10
3.3. 主流道的设计 11
3.3.2 分流道的设计 11
3.3.3 浇口的设计 12
3.4拉料杆设计 13
3.5 脱模顶出机构的设计 14
3.4.1 推杆机构的设计 14
3.4.2 自动脱螺纹机构的设计 14
3.4.1 推出零件尺寸的确定 14
3.6侧向分型抽芯滑块的设计 16
3.5.1滑块定位装置设计 16
3.5.2斜导柱抽芯机构的结构形式 16
3.5.3抽芯距S 17
3.1.2 弯销倾斜角 17
3.1.3 斜导柱直径 17
3.1.4 弯销的总长度 18
3.6 注塑模具冷却系统的设计 19
3.5.1 注塑模具的冷却介质 19
第四章 注塑模具成型尺寸计算和模架选择 20
4.1 成型型腔尺寸计算校核 20
4.2 模具成型零件型芯尺寸的计算 22
4.3 注塑模具排气系统的建立和设计 23
4.3.排气方式 23
4.3.2 排气设计方法 24
4.3.3排气槽设计 24
4.4 注塑模具的模架选择 24
第五章 模具定位和导向系统的设计 26
5.1 注塑模具定位导向机构 26
5.2导向机构的设计 26
5.2.1 导柱的设计 26
5.2.2 注塑模具导套设计 27
第六章 注射机的校核 28
6.1 注塑机最大注射量的校核 28
6.2 注塑成型机注射压力校核 28
6.3 注塑机锁模力校核 28
6.4 模具外形安尺寸校核 29
6.5 注塑机的开模行的校核 29
6.5.1注塑机的开模行程的校核 29
6.5.2 注塑机的移模行程的校核 29
6.6 模具安装校核 29
总 结 31
致 谢 32
参考文献 33
附录 35
温馨提示:
1、题目前面的备注【字母数字编号】为本站整理分类的编号,与课题内容无关,请选题时忽视;
2、若题目上备注三维,则表示文件里包含三维源文件,由于三维组成零件数量较多,为保证预览截图的简洁性,本站将三维文件夹进行了打包。三维及CAD预览截图,均为本站电脑打开软件进行截图的,保证能够打开,下载原件超高清,下载后解压即可;
3、本站所有资源如无特殊说明,都需要本地电脑安装Office2007。图纸软件为AutoCAD,PROE,UG,SolidWorks,CATIA等;
4、本站所有图文资料仅供用户学习参考,不作为任何商用或其他用途;
5、本站不保证下载资源的准确性、安全性和完整性, 不包修改,不支持退换,同时也不承担用户因使用这些下载资源对自己和他人造成任何形式的伤害或损失;
6、 下载文件中如有侵权或不适当内容,请与我们联系,我们立即纠正。