

作品包括:
Word版说明书1份,共36页,约10000字
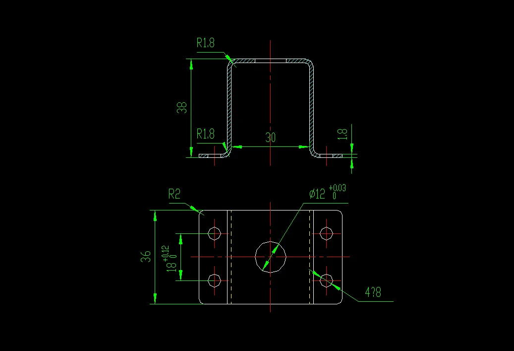
CAD版本图纸,共29张
UG三维图一份

目录
1. 绪论 3
1.1 冲压工艺的应用 3
1.2 冲压工艺的发展历史 3
1.3 冲压工艺的发展趋势 4
2 托架冲压成型工艺分析 6
2.1托架冲压件的冲压成型工艺分析 6
2.2 托架冲压工艺的确定 6
3 主要设计的计算 8
3.1折弯展开毛坯尺寸的计算 8
3.2排样的设计与计算 9
3.2.1搭边值的确定 9
3.2.2排样图的设计 10
3.3冲裁力的计算及压力设备的初定 11
3.4压力中心的计算 14
该零件外形完全对称,则压力中心即为该零件几何中心位置。 14
3.5模具工作零部件凸凹模刃口尺寸的计算 14
4 冲孔落料模具的总体设计 15
4.1模具类型的选择 15
4.2 定位方式的选择 16
4.3 卸料、出件方式的选择 16
4.4 导向方式的选择 16
5 主要零部件的结构设计 16
5.1 落料凸模、凹模、凸凹的设计 16
5.2定位装置的设计与标准化 18
5.3卸料装置的设计及标准化 19
5.4退件装置的设计与标准化 20
5.4.1刚性推件装置的设计与标准化 20
5.4.2退件块的设计 21
5.4.3连接推杆的选用 21
5.4.4推板的设计 21
5.5.5打料杆的设计 21
5.5支撑固定零件的设计与标准化 22
4.5.1模架的选用 22
4.5.2垫板的设计 22
5.6紧固零件的设计与标准化 22
6 压力机的参数与校核 23
7 模具的装配和调试 24
7.1 凸模、凹模预配 24
7.2 凸模装配 24
7.3 装配下模 24
7.4 装配上模 25
7.5 冲压模具具的试冲与调整 25
7.5.1 调整凸凹模进入凹模与凸模进入凸凹模的深度 25
7.5.2 调整冲裁间隙 26
7.5.3 试模 26
7.5.4 模具在试模过程中出现的问题及调整方法 26
8 模具总装图及工作原理 29
9 折弯模的设计 30
9.1弯曲件工艺分析 30
9.2工艺方案确定 30
9.3.弯曲应力的计算 31
9.4压力机公称压力的确定 32
11折弯模总装图及工作原理 34
参考文献 35
温馨提示:
1、题目前面的备注【字母数字编号】为本站整理分类的编号,与课题内容无关,请选题时忽视;
2、若题目上备注三维,则表示文件里包含三维源文件,由于三维组成零件数量较多,为保证预览截图的简洁性,本站将三维文件夹进行了打包。三维及CAD预览截图,均为本站电脑打开软件进行截图的,保证能够打开,下载原件超高清,下载后解压即可;
3、本站所有资源如无特殊说明,都需要本地电脑安装Office2007。图纸软件为AutoCAD,PROE,UG,SolidWorks,CATIA等;
4、本站所有图文资料仅供用户学习参考,不作为任何商用或其他用途;
5、本站不保证下载资源的准确性、安全性和完整性, 不包修改,不支持退换,同时也不承担用户因使用这些下载资源对自己和他人造成任何形式的伤害或损失;
6、 下载文件中如有侵权或不适当内容,请与我们联系,我们立即纠正。