

作品包括:
Word版说明书1份,共29页,约8300字
CAD版本图纸,共7张
696128

摘要
本应用本专业所学课程的理论和生产实际知识进行一次冷冲压模具设计工作的实际训练从而培养和提高了我的独立工作能力。本设计通过对垫片零件的工艺性分析,确定了正确的工艺方案。从而对模具设计方案,以及冲压设备作出了分析与选择。通过分析决定采用落料倒装冲裁模具结构形式,然后参考其他模具结构以及查手册和计算设计。当所有的参数计算完后,对模具的装配方案,对主要零件的设计和装配要求技术要求都进行了分析。在设计过程中除了设计说明书外,还包括模具的装配图,非标准零件的零件图等。
关键词:冲压模具;垫片;冲压设备;落料
目录
摘要I
第一章、绪论1
第二章、零件的工艺分析和工艺方案的确定2
2.1.冲压件的工艺分析2
2.2.确定工艺方案及模具的结构形式3
2.3.排样、计算条料宽度及步距的确定3
2.3.1.搭边值的确定3
2.3.2条料宽度的确定4
2.3.3.定位销间距的确定5
2.3.4.排样5
2.3.5.材料利用率的计算: 6
第三章、冲裁力的计算8
3.1.计算冲裁力的公式8
3.2.总冲裁力、卸料力、推料力和总冲压力8
3.2.1.总冲裁力8
3.2.2.卸料力Fx的计算9
3.2.3.推料力Ft的计算9
3.2.4.总的冲压力的计算9
第四章、模具压力中心与计算11
第五章、冲裁模间隙的确定14
第六章、刃口尺寸的计算15
6.1.刃口尺寸计算的基本原则15
6.2.刃口尺寸的计算15
6.3.计算凸、凹模刃口的尺寸16
6.4.冲裁刃口高度17
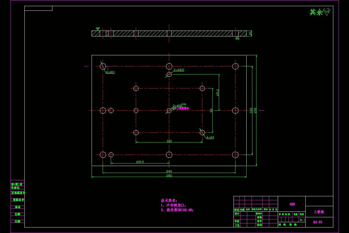
第七章、主要零部件的设计18
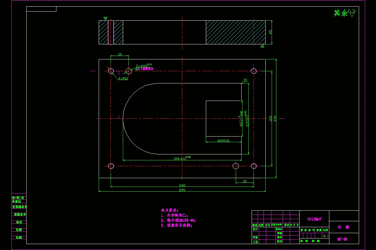
7.1.工作零件的结构设计18
7.1.1.凹模的设计18
7.1.2.外形凸模的设计20
7.1.3.凸模垫板的设计21
7.1.4.卸料板的设计22
7.2.模架及其它零件的设计23
7.2.1.上下模座23
7.2.2.模柄24
7.2.3.模具的闭合高度24
第八章、压力机的选择25
结论26
参考文献27
温馨提示:
1、题目前面的备注【字母数字编号】为本站整理分类的编号,与课题内容无关,请选题时忽视;
2、若题目上备注三维,则表示文件里包含三维源文件,由于三维组成零件数量较多,为保证预览截图的简洁性,本站将三维文件夹进行了打包。三维及CAD预览截图,均为本站电脑打开软件进行截图的,保证能够打开,下载原件超高清,下载后解压即可;
3、本站所有资源如无特殊说明,都需要本地电脑安装Office2007。图纸软件为AutoCAD,PROE,UG,SolidWorks,CATIA等;
4、本站所有图文资料仅供用户学习参考,不作为任何商用或其他用途;
5、本站不保证下载资源的准确性、安全性和完整性, 不包修改,不支持退换,同时也不承担用户因使用这些下载资源对自己和他人造成任何形式的伤害或损失;
6、 下载文件中如有侵权或不适当内容,请与我们联系,我们立即纠正。