

作品包括:
Word版说明书1份,共38页,约8600字
任务书一份
开题报告一份
外文翻译一份
CAD版本图纸,共14张


摘要
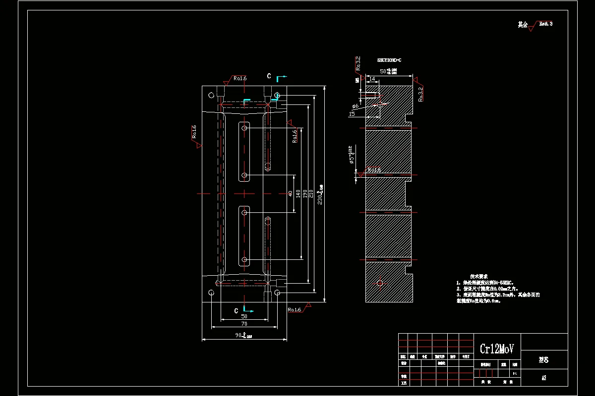
我做的课题是某修饰塑料件注塑模具设计,本设计采用了多种绘图软件协助工作,我根据该塑件表面质量无特殊要求,结构也比较简单,所以选则了平直分型面。另外这个塑件的形状不算太复杂,熔料填充型腔比较容易,根据型腔的放置方式可知分流道的长度不长,为了便于加工起见,选用了圆形分流道。因为在注塑成型工艺过程中,模具温度能影响塑料的充模和塑料件的定形,也影响注塑周期和塑料件质量,所以我设计了一个冷却系统来使其达到理想温度。最后此塑件因为需要抽芯处理,促使我系统的去研究了抽芯技术的工艺技术。
这次设计让我对所学知识有了不同于以往的认识,不仅仅是书本上的知识,还有方方面面不是书上能学到的知识。是我对以后的工作经验的一次深刻认识,也给了我很多帮助,锻炼了我自学能力。
温馨提示:
1、题目前面的备注【字母数字编号】为本站整理分类的编号,与课题内容无关,请选题时忽视;
2、若题目上备注三维,则表示文件里包含三维源文件,由于三维组成零件数量较多,为保证预览截图的简洁性,本站将三维文件夹进行了打包。三维及CAD预览截图,均为本站电脑打开软件进行截图的,保证能够打开,下载原件超高清,下载后解压即可;
3、本站所有资源如无特殊说明,都需要本地电脑安装Office2007。图纸软件为AutoCAD,PROE,UG,SolidWorks,CATIA等;
4、本站所有图文资料仅供用户学习参考,不作为任何商用或其他用途;
5、本站不保证下载资源的准确性、安全性和完整性, 不包修改,不支持退换,同时也不承担用户因使用这些下载资源对自己和他人造成任何形式的伤害或损失;
6、 下载文件中如有侵权或不适当内容,请与我们联系,我们立即纠正。