

作品包括:
Word版说明书1份,共26页,约5300字
CAD版本图纸,共9张

摘要
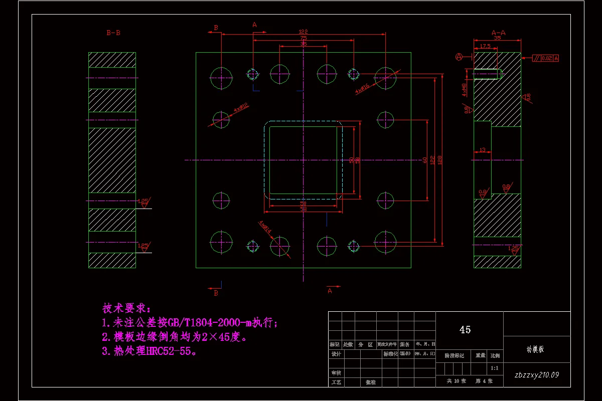
本课题为扣盖内侧抽芯注射模具设计,塑件生产的目的是为了和其他零件的装配,所以在生产时需要保证装配尺寸的精度,因塑件用于外部安装,所以模具制造时必须提高模仁的表面精度才能保证塑件的表面粗糙度
塑件的形状为矩形,转角位圆弧过度,在矩形两侧壁有两个对称的方孔,分析塑件的生产模具,需要进行内侧抽芯,可实现塑件模具的设计和开发。模具的结构为单分型面、三板式模具,模具一个运动周期生产一塑件,采用T形导柱导向模具的开合。
关键词:扣盖;三板模;单分型面;一模一腔
温馨提示:
1、题目前面的备注【字母数字编号】为本站整理分类的编号,与课题内容无关,请选题时忽视;
2、若题目上备注三维,则表示文件里包含三维源文件,由于三维组成零件数量较多,为保证预览截图的简洁性,本站将三维文件夹进行了打包。三维及CAD预览截图,均为本站电脑打开软件进行截图的,保证能够打开,下载原件超高清,下载后解压即可;
3、本站所有资源如无特殊说明,都需要本地电脑安装Office2007。图纸软件为AutoCAD,PROE,UG,SolidWorks,CATIA等;
4、本站所有图文资料仅供用户学习参考,不作为任何商用或其他用途;
5、本站不保证下载资源的准确性、安全性和完整性, 不包修改,不支持退换,同时也不承担用户因使用这些下载资源对自己和他人造成任何形式的伤害或损失;
6、 下载文件中如有侵权或不适当内容,请与我们联系,我们立即纠正。