

作品包括:
Word版说明书1份,共38页,约19000字
任务书一份
开题报告一份
CAD版本图纸,共10张

前言…………………………………………………………………1
第一章塑料模具的简述………………………………………2
1.1模具工业在国民经济中的地位……………………………2
1.2各种模具的分类和占有量…………………………………3
1.3我国模具工业的现状………………………………………4
1.4世界五大塑料生产国的产能状况…………………………5
1.5我国模具技术的现状及发展趋势…………………………6
第二章塑料ABS析……………………………………………7
2.1 ABS料的构成……………………………………………7
2.2 ABS的优点………………………………………………8
2.3 ABS的缺陷………………………………………………8
2.4 ABS的改性………………………………………………8
2.5透明ABS…………………………………………………8
2.6常用表面处理……………………………………………8
2.7密度、连接方式及适用范围……………………………8
2. 8注塑工艺条件…………………………………………9
第三章成型制品结构工艺和分析………… ………………11
3.1塑件尺寸…………………………………………………11
3.2塑件尺寸精度…………………………………………11
3.3表面精度…………………………………………11
3.4塑件材料………………………………………12
3.5塑件分析………………………………………12
3.6塑件壁厚…………………………………………12
3.7脱模斜度…………………………………………13
3.8圆角………………………………………………13
第四章注塑机的选用…………………………………….14
4.1所需注射量的计算.................................14
4.2塑件质量、体积计算…………………………………….14
4.3浇注系统凝料体积的计算………………………………14
4.4该模具一次注射所需塑料PP…………………………….14
4.5初选注射机…………………………………………15
4.6喷嘴尺寸……………………………………………16
4.7定位环尺寸………………………………………………16
4.8模具厚度…………………………………………………17
4.9模具的长度与宽…………………………………………17
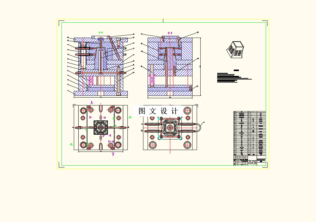
第五章注射模设计步骤…………………………………….18
5.1塑件成型方案的确定…………………………………18
5.2型腔数目的确定……………………………………….18
5.3成型零部件的设计计算………………………………19
5.4型腔壁厚的计算……………………………………22
5.5浇注系统设计…………………………………………23
5.6主流道的设计………………………………………..23
5.7浇口的设计………………………………………….26
5.8分型面的选择…………………………………………28
5.9合模导向和定位机构…………………………………29
5.10侧向抽芯机构的设计…………………………………30
5.11脱模机构…………………………………………………37
5. 12推出脱模机构的选用原则…………………………………37
5. 13推管的设计………………………………………………38
5.14模具温度调节系统……………………………………38
5.15模架的设计……………………………………………38
第六章注射机参数的校核……………………………39
6.1开模行程的校核……………………………………………39
6.2注射量的校核………………………………………………40
6.3锁模力的校核…………………………………….40
温馨提示:
1、题目前面的备注【字母数字编号】为本站整理分类的编号,与课题内容无关,请选题时忽视;
2、若题目上备注三维,则表示文件里包含三维源文件,由于三维组成零件数量较多,为保证预览截图的简洁性,本站将三维文件夹进行了打包。三维及CAD预览截图,均为本站电脑打开软件进行截图的,保证能够打开,下载原件超高清,下载后解压即可;
3、本站所有资源如无特殊说明,都需要本地电脑安装Office2007。图纸软件为AutoCAD,PROE,UG,SolidWorks,CATIA等;
4、本站所有图文资料仅供用户学习参考,不作为任何商用或其他用途;
5、本站不保证下载资源的准确性、安全性和完整性, 不包修改,不支持退换,同时也不承担用户因使用这些下载资源对自己和他人造成任何形式的伤害或损失;
6、 下载文件中如有侵权或不适当内容,请与我们联系,我们立即纠正。