

作品包括:
Word版说明书1份,共32页,约9800字
PPT答辩一份
CAD版本图纸,共14张
UG三维塑件图一张


摘要
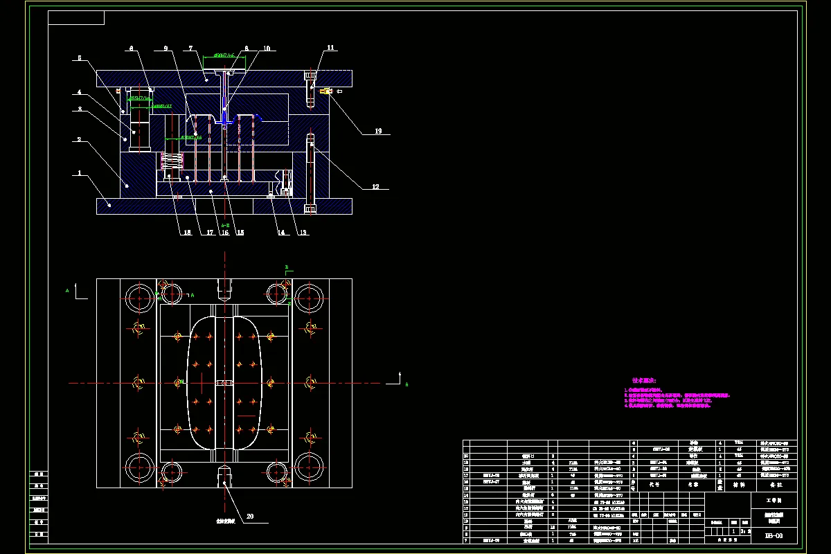
模具的制造有一下几大分类,可以称为塑料模具(又分铸压模具和吹塑模具)、、铸造模具、冲压模具橡胶模具和玻璃模具等。其中,注塑模具和冲压模具用途极为广泛、技术熟练、占比重大。经过对挡板注塑工艺的分析,设计了一副一模两腔的塑料模具。里面详细的叙述了模具成型零件,其中包括型腔、模仁等设计和重要零件的工艺参数的选择与计算,浇注系统、拔模机构和冷却系统以及其它结构的设计过程。并利用emx7.0完成了塑料模具开模模拟等分析1绪论..............................................................1
2塑件成型特性.....................................................2
2.1注塑件实体....................................................2
2.2材料的成型特性................................................3
2.3 ABS材料的成型工艺参数.........................................3
3设计方案及参数的确定.............................................4
3.1注塑机的确定..................................................4
3.2浇注系统设计..................................................5
3.2.1主浇道设计................................................6
3.2.2冷料穴的设计..............................................7
3.2.3分流道的设计..............................................8
3.2.4浇口的设计................................................8
3.3分型面的设计..................................................9
3.4排气系统的设计..............................................11
3.5冷却系统的设计...............................................11
4模具的结构设计...................................................12
4.1成型零件的设计...............................................12
4.2动、定模的工作尺寸计算.......................................12
4.2.1型腔设计.................................................13
4.2.2粗糙度设计...............................................13
4.2.3 X综合修正系数设计....................................14
4.2.3形体尺寸公差设计.........................................14
4.3机构的设计...................................................15
4.3.1推出机构的设计...........................................15
4.3.2推杆(复位杆)的设计.....................................15
4.3.3导向机构的设计...........................................16
4.3.4拉料杆的设计.............................................17
4.4注射模标准模架的设计.........................................18
4.4.1模架设计.................................................18
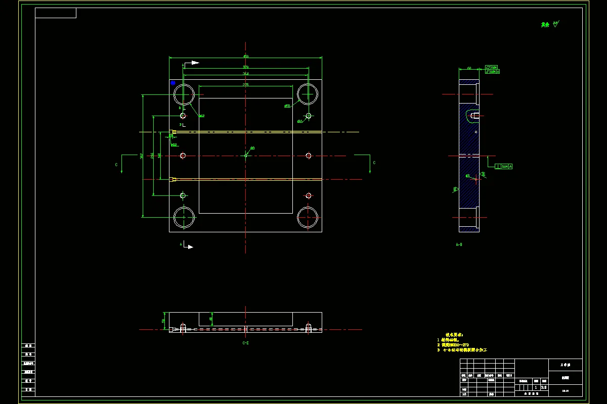
4.4.2动模板的设计.............................................18
4.4.3定模板的设计.............................................19
4.4.4定模座板设计.............................................20
4.4.5动模座板设计.............................................20
4.4.6垫块设计.................................................21
4.4.7推杆固定板设计...........................................21
4.4.8推板的设计...............................................22
4.5模具的整体设计...............................................23
参考文献...........................................................25
致谢...............................................................26
温馨提示:
1、题目前面的备注【字母数字编号】为本站整理分类的编号,与课题内容无关,请选题时忽视;
2、若题目上备注三维,则表示文件里包含三维源文件,由于三维组成零件数量较多,为保证预览截图的简洁性,本站将三维文件夹进行了打包。三维及CAD预览截图,均为本站电脑打开软件进行截图的,保证能够打开,下载原件超高清,下载后解压即可;
3、本站所有资源如无特殊说明,都需要本地电脑安装Office2007。图纸软件为AutoCAD,PROE,UG,SolidWorks,CATIA等;
4、本站所有图文资料仅供用户学习参考,不作为任何商用或其他用途;
5、本站不保证下载资源的准确性、安全性和完整性, 不包修改,不支持退换,同时也不承担用户因使用这些下载资源对自己和他人造成任何形式的伤害或损失;
6、 下载文件中如有侵权或不适当内容,请与我们联系,我们立即纠正。