

作品包括:
Word版说明书1份,共38页
CAD版本图纸,共11张
摘要
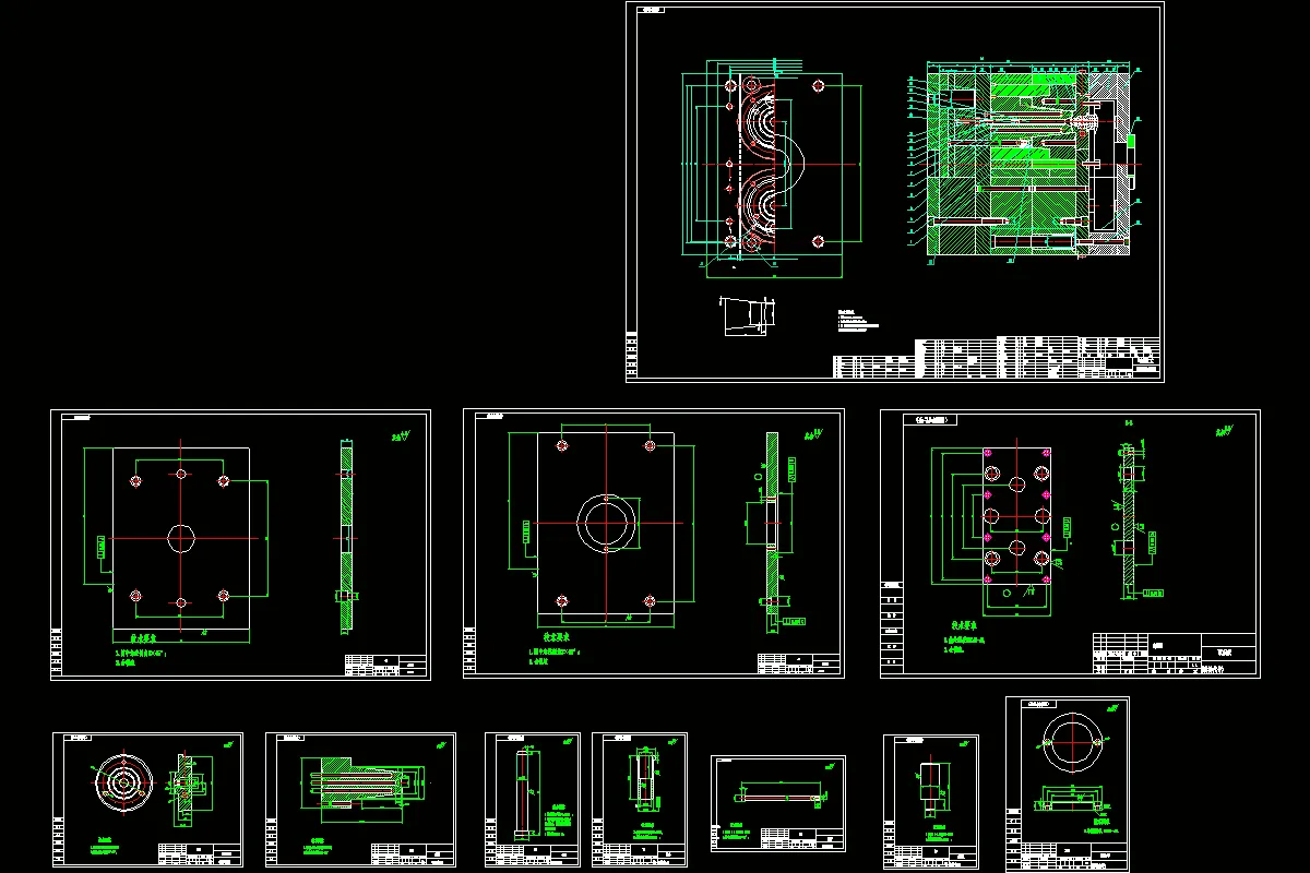
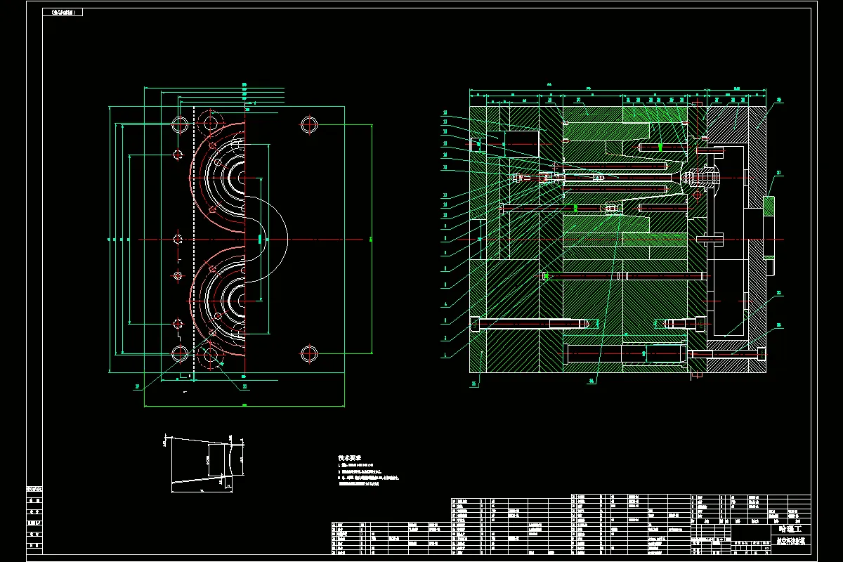
本设计是航空杯塑料零件的注塑模具设计,在结合了传统的机械设计后把CAD/CAM技术应用在注塑模具的设计上,在CAD系统实行了模型和注塑模具的设计。本文介绍了我国当前模具技术的发展状况以及CAD/CAM在模具上的应用,其中包括AUTOCAD。主要的机械部分设计,其内容包括塑料注塑模具的工作原理及应用,设计准则。塑料注塑模的设计计算,包括模具结构设计,注塑机的选用,浇注系统的设计,动、定模,浇注系统,脱模机构,顶出机构,冷却系统等设计等方面。如此设计出的结构可确保模具工作运行可靠。
目录
摘要II
Abstract III
目录IV
第1章绪论1
1.1模具的作用与地位1
1.2本次设计研究目的及意义1
1.3 CAD发展概况1
1.4注塑模CAD内容2
第2章塑件的工艺分析4
2.1塑件的工艺性分析4
2.1.1塑件的原材料分析4
2.1.2 PS的性能分析5
2.1.3 PS的注射成型过程及工艺参数5
2.2塑件的结构和尺寸精度及表面质量分析6
2.2.1结构分析6
2.2.2尺寸精度分析6
2.2.3表面质量分析6
2.3计算塑件的体积和质量6
第3章注射机的选择及校核7
3.1注射机的选择7
3.2型腔数目的确定及校核8
3.3锁模力的校核9
3.4开模行程的校核9
第4章浇注系统的设计11
4.1分型面的选择11
4.2主流道的设计12
4.3分流道设计12
4.4浇口设计13
4.4.1剪切速率的校核14
4.4.2主流道剪切速率校核14
4.4.3浇口剪切速率的校核15
第5章成型零部件设计16
5.1成型零件校核16
5.2型腔零件刚度和强度校核17
5.3型腔侧壁厚度计算17
第6章合模导向机构设计19
第7章顶出系统机构设计21
7.1推杆推出机构21
7.2推件板推出机构22
7.3推出机构的导向与复位机构设计22
第8章温度调节系统设计25
8.1对温度调节系统的要求25
8.2冷却系统设计25
8.2.1设计原则25
8.2.2冷却时间的确定26
8.2.3塑料熔体释放的热量26
8.2.4高温喷嘴向模具的接触传热26
8.2.5注射模通过自然冷却传导走的热量27
8.2.6冷却系统的计算28
8.2.7凹模冷却系统的计算28
第9章模具工作原理说明31
总结32
致谢33
参考文献34
温馨提示:
1、题目前面的备注【字母数字编号】为本站整理分类的编号,与课题内容无关,请选题时忽视;
2、若题目上备注三维,则表示文件里包含三维源文件,由于三维组成零件数量较多,为保证预览截图的简洁性,本站将三维文件夹进行了打包。三维及CAD预览截图,均为本站电脑打开软件进行截图的,保证能够打开,下载原件超高清,下载后解压即可;
3、本站所有资源如无特殊说明,都需要本地电脑安装Office2007。图纸软件为AutoCAD,PROE,UG,SolidWorks,CATIA等;
4、本站所有图文资料仅供用户学习参考,不作为任何商用或其他用途;
5、本站不保证下载资源的准确性、安全性和完整性, 不包修改,不支持退换,同时也不承担用户因使用这些下载资源对自己和他人造成任何形式的伤害或损失;
6、 下载文件中如有侵权或不适当内容,请与我们联系,我们立即纠正。