

作品包括:
Word版说明书1份,共28页,约8500字
任务书一份
开题报告一份
外文翻译一份
CAD版本图纸,共17张
UG三维图一套

摘 要
从塑料模具的发展趋势过程可以看到,在未来的模具行业市场中,注塑模具将占模具市场的绝大部分。人类的生活已经离不开塑料,随着塑料注塑模具行业的新技术不断涌现,研究塑料制品的成型将会变得十分有意义。
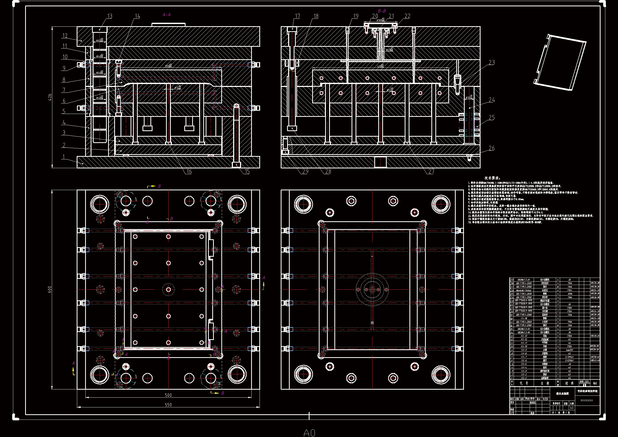
本次注射模设计运用AUTOCAD二维绘图软件对笔记本电脑屏幕后壳进行绘制。从笔记本电脑屏幕后壳产品的成型结构特征开始、到对分型面分析及位置的选择、模具浇注系统设计、型芯凹模结构设计和尺寸计算,脱模推出机构、冷却系统、导向机构的设计等多方面详细叙述了笔记本电脑屏幕后壳注射模大致设计过程。与此同时合理地选用了注塑机型号,而且对注塑机压力,锁模力及顶出力等工艺参数进行详细校核,进而保证了设计的合理性及正规性。如此设计出的注射模结构才能确保模具工作运行可靠。
关键词:笔记本电脑屏幕后壳;浇注系统;冷却系统;工艺参数
目 录
1 引言 1
2 工艺分析 2
2.1 原始设计依据 2
2.2 塑件材料及成型特性分析 2
2.3 塑件的结构与工艺性分析 3
2.3.1 脱模斜度 3
2.3.2 塑件的壁厚 3
2.3.3 塑件的圆角 4
4 模具的结构设计与注射机的选择 9
4.1 分型面的设计原则 9
4.2 型腔数目的确定 9
4.2.1 型腔数目 9
4.2.2 型腔布局 10
4.3 注射机确定 10
4.3.1 注射量与锁模力 10
4.3.2 选择注射机 11
4.3.3 注塑机参数的校核 11
5 浇注系统 12
5.1 主流道 12
5.1.1 定位圈 13
5.2 分流道 13
5.2.1 分流道的设计 14
5.3 浇口设计 14
5.3.1 浇口尺寸 14
5.4 冷料穴的设计及计算 15
6 成型零件 16
6.1 成型零件 16
6.2 钢材的选用 17
6.3 成型尺寸的计算 17
7 推出机构 19
7.1 脱模力 19
7.2 推出方式 19
7.2.1 推出面积 19
8 模架 21
8.1 各模板尺寸 21
8.1.1 定模板 21
8.1.2 动模板 21
8.1.3 动定模座板 21
8.1.4 垫块 21
9 侧向抽芯机构的设计 22
9.1 抽芯距的计算 22
9.2 抽芯力的计算 22
9.3 侧向分型与抽芯机构类型的确定 22
9.4 斜导柱的设计计算 22
9.4.1 斜导柱的形式 22
9.4.2 斜导柱倾斜角 23
9.4.3 斜导柱直径的计算 23
9.4.4 斜导柱长度的计算 23
9.4.5 斜导柱与模具中其他零件的配合关系 24
9.5 滑块的设计 24
9.6 限位装置的设计 25
10 冷却排气系统的设计 26
10.1 排气系统 26
10.2 冷却系统 26
11 总结 28
12 致谢 29
13 参考文献 30
温馨提示:
1、题目前面的备注【字母数字编号】为本站整理分类的编号,与课题内容无关,请选题时忽视;
2、若题目上备注三维,则表示文件里包含三维源文件,由于三维组成零件数量较多,为保证预览截图的简洁性,本站将三维文件夹进行了打包。三维及CAD预览截图,均为本站电脑打开软件进行截图的,保证能够打开,下载原件超高清,下载后解压即可;
3、本站所有资源如无特殊说明,都需要本地电脑安装Office2007。图纸软件为AutoCAD,PROE,UG,SolidWorks,CATIA等;
4、本站所有图文资料仅供用户学习参考,不作为任何商用或其他用途;
5、本站不保证下载资源的准确性、安全性和完整性, 不包修改,不支持退换,同时也不承担用户因使用这些下载资源对自己和他人造成任何形式的伤害或损失;
6、 下载文件中如有侵权或不适当内容,请与我们联系,我们立即纠正。