

作品包括:
Word版说明书1份,共31页,约12000字
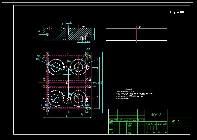
CAD版本图纸,共12张
摘要
本设计是密封圈零件的注塑模具设计,在结合了传统的机械设计后把CAD/CAM技术应用在注塑模具的设计上,在CAD系统实行了模型和注塑模具的设计。本文介绍了我国当前模具技术的发展状况以及CAD/CAM在模具上的应用,其中包括AUTOCAD。主要的机械部分设计,其内容包括塑料注塑模具的工作原理及应用,设计准则。塑料注塑模的设计计算,包括模具结构设计,注塑机的选用,浇注系统的设计,动、定模,浇注系统,脱模机构,顶出机构,冷却系统等设计等方面。如此设计出的结构可确保模具工作运行可靠。
温馨提示:
1、题目前面的备注【字母数字编号】为本站整理分类的编号,与课题内容无关,请选题时忽视;
2、若题目上备注三维,则表示文件里包含三维源文件,由于三维组成零件数量较多,为保证预览截图的简洁性,本站将三维文件夹进行了打包。三维及CAD预览截图,均为本站电脑打开软件进行截图的,保证能够打开,下载原件超高清,下载后解压即可;
3、本站所有资源如无特殊说明,都需要本地电脑安装Office2007。图纸软件为AutoCAD,PROE,UG,SolidWorks,CATIA等;
4、本站所有图文资料仅供用户学习参考,不作为任何商用或其他用途;
5、本站不保证下载资源的准确性、安全性和完整性, 不包修改,不支持退换,同时也不承担用户因使用这些下载资源对自己和他人造成任何形式的伤害或损失;
6、 下载文件中如有侵权或不适当内容,请与我们联系,我们立即纠正。