

作品包括:
Word版说明书1份,共22页
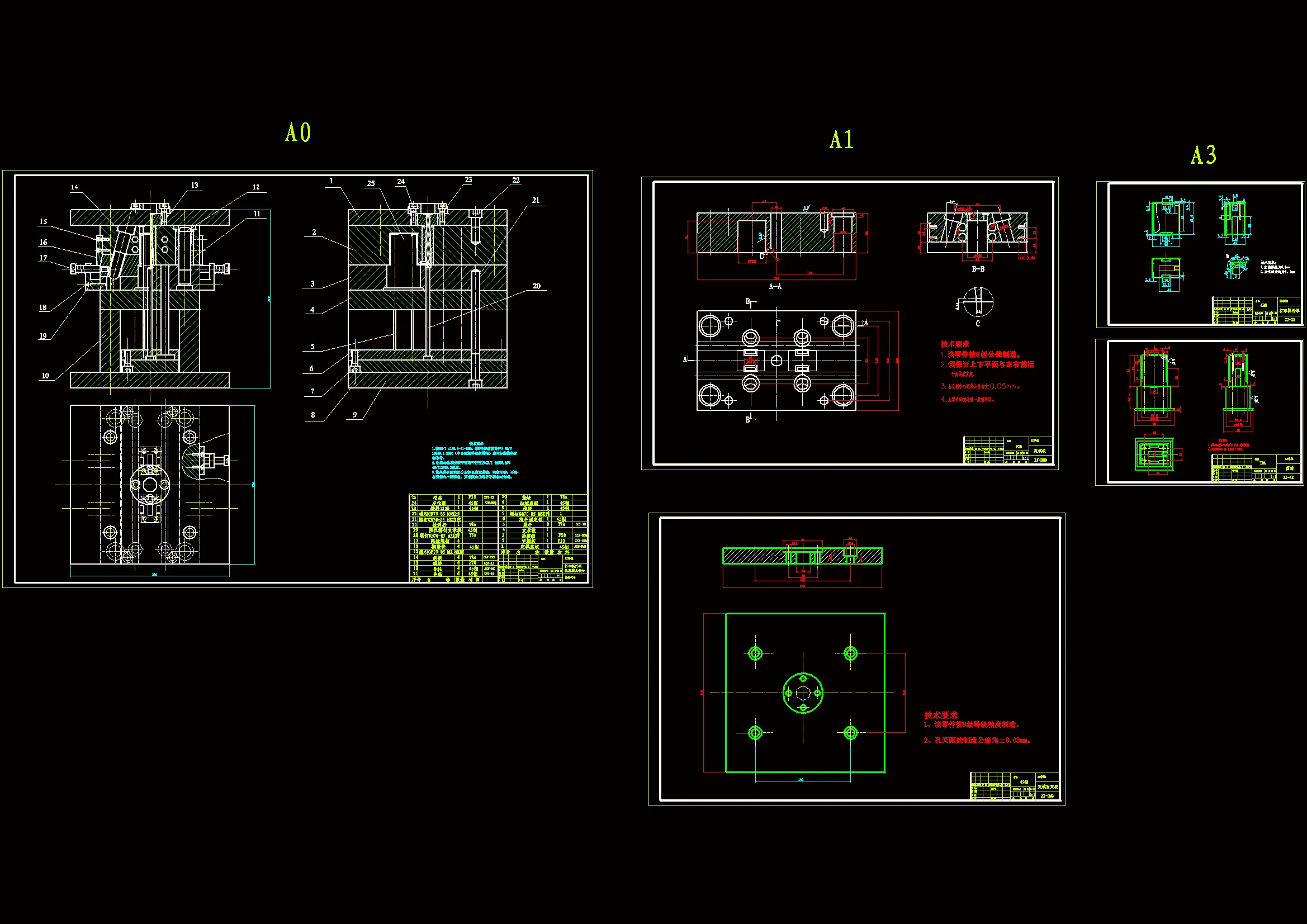
CAD版本图纸,共5张
摘要
本次设计的课题为打印机外罩塑件的注塑工艺及模具设计,主要在对塑件进行注塑成型分析的基础上从原材料分析,成型特征,分型面的选择,浇注系统设计,型芯和型腔结构设计,推出机构设计,侧向抽芯机构设计,导向机构设计等多方面详细阐述了注射模具的设计过程,同时通过合理地选择注塑机并对注塑压力,锁模力,顶出装置等相关方面进行校核,进一步保证设计的合理性。总之,本次设计的模具结构合理,加工方便,工艺性好,能较好地运用于实际生产。
目录
摘要II
目录III
第1章绪论1
1.1模具工业在国民经济中的地位1
1.2各种模具的分类和占有量1
1.3我国模具工业的现状2
1.4世界五大塑料生产国的产能状况3
1.5我国模具技术的现状及发展趋势4
1.6课题任务5
第2章塑件产品工艺分析6
2.1塑件的原材料分析6
2.2成型特性及条件6
2.3塑件的结构和尺寸精度及表面质量分析7
2.3.1结构分析7
2.3.2尺寸精度分析7
2.3.3表面质量分析7
2.3.4机械性能分析7
2.4计算塑件的体积和重量7
第三章注射模的结构设计8
3.1分型面选择8
3.2确定型腔数目及配置8
3.3确定浇注系统8
3.3.1主流道设计8
3.3.2冷料穴设计9
3.3.3分流道设计9
3.3.4浇口设计9
3.3.5冷却系统的设计9
3.4确定型腔、型芯的结构及固定方式9
3.4.1型腔、型芯的结构设计9
3.5型腔和型芯的工作尺寸计算10
3.6型腔壁厚和底板厚度计算10
3.6.1动模垫板厚10
3.6.2计算型腔侧壁和底板厚度10
3.7推出方式的设计11
3.8确定导向机构13
3.9侧向抽芯机构的设计13
第4章注射机校核13
4.1注射压力的校核13
4.2锁模力校核13
4.3模具厚度H与注射机闭合高度的校核13
4.4注射机开模行程的校核14
4.5模具安装部分的校核14
4.6顶出部分的校核14
4.7.模具材料14
第5章模具调试15
5.1试模15
5.2装模15
5.3试模15
5.3.1制件质量方面15
5.3.2模具性能方面15
总结与展望16
参考文献17
致谢18
温馨提示:
1、题目前面的备注【字母数字编号】为本站整理分类的编号,与课题内容无关,请选题时忽视;
2、若题目上备注三维,则表示文件里包含三维源文件,由于三维组成零件数量较多,为保证预览截图的简洁性,本站将三维文件夹进行了打包。三维及CAD预览截图,均为本站电脑打开软件进行截图的,保证能够打开,下载原件超高清,下载后解压即可;
3、本站所有资源如无特殊说明,都需要本地电脑安装Office2007。图纸软件为AutoCAD,PROE,UG,SolidWorks,CATIA等;
4、本站所有图文资料仅供用户学习参考,不作为任何商用或其他用途;
5、本站不保证下载资源的准确性、安全性和完整性, 不包修改,不支持退换,同时也不承担用户因使用这些下载资源对自己和他人造成任何形式的伤害或损失;
6、 下载文件中如有侵权或不适当内容,请与我们联系,我们立即纠正。