

作品包括:
Word版说明书1份,共44页
PPT答辩一份
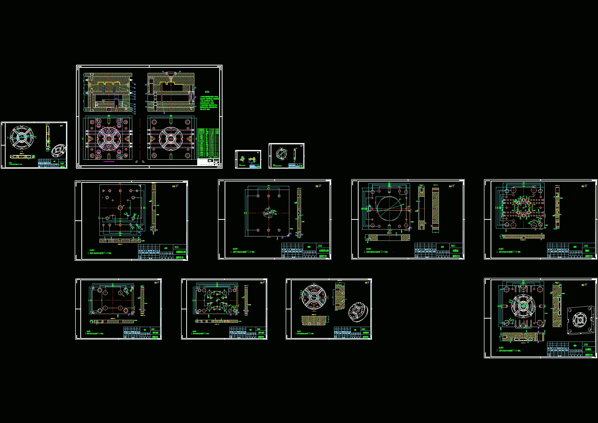
CAD版本图纸,共12张
UG三维图一份
摘要
根据注射模具在国内外的飞速发展以及注射模软件CAD/CAM的提高再结合我校专业特色及本专业的培养计划,我选用果盘外壳单型腔注塑模设计作为本次的设计题目。该设计采用侧抽芯机构和冷却水道布置对称,易于安装,整体受力均匀。本次设计利用计算机辅助设计注射模具,分为注射模具的机械设计部分和CAD两部分。第一部分,机械设计部分包括:注射机的选用、浇注系统、动、定模的结构、脱模和顶出系统、排气系统和冷却系统等设计。第二部分包括使用AUTO CAD完成模具的二维制图。
关键词:注塑模型腔型芯浇注系统
目录
摘要……………………………………………………………………………………… Ⅰ
Abstract ………………………………………………………………………………… Ⅱ
第1章绪论……………………………………………………………………………… 1
1.1模具的发展情况………………………………………………………………… 1
1.2选题的依据和意义……………………………………………………………… 2
1.3本课题在国内外的发展状况…………………………………………………… 3
1.4未来的发展趋势………………………………………………………………… 3
1.5设计内容概述……………………………………………………………… 5
1.6本章小结………………………………………………………………………… 5
第2章方案分析………………………………………………………………………… 6
2.1设计任务………………………………………………………………………… 6
2.2产品分析………………………………………………………………………… 6
2.2.1产品外形分析……………………………………………………………… 6
2.2.2塑件材料选择、其性能及工艺参数……………………………………… 6
2.3注射机的选择…………………………………………………………………… 7
2.3.1注射机类型的选择………………………………………………………… 7
2.3.2注射机型号的确定………………………………………………………… 7
2.3.3部分参数校核……………………………………………………………… 8
2.4产品结构要素确定……………………………………………………………… 9
2.4.1确定脱模斜度……………………………………………………………… 9
2.4.2确定塑件的壁厚…………………………………………………………… 9
2.4.3确定圆角…………………………………………………………………… 9
2.4.4确定塑件的尺寸公差及精度……………………………………………… 9
2.5确定模具结构方案……………………………………………………………… 10
2.5.1确定注塑模基本模架……………………………………………………… 10
2.5.2确定分型面………………………………………………………………… 11
2.5.3确定型腔数计型腔的布置………………………………………………… 11
2.5.4确定拉料杆的结构………………………………………………………… 12
2.6本章小结………………………………………………………………………… 13
第3章成型零部件结构尺寸设计……………………………………………………… 14
3.1成型零部件的结构设计………………………………………………………… 14
3.1.1一般凹模的结构设计……………………………………………………… 14
3.1.2凸模的结构设计…………………………………………………………… 18
3.2浇注系统的设计………………………………………………………………… 20
3.2.1浇注系统的组成…………………………………………………………… 20
3.2.2主流道的设计……………………………………………………………… 21
3.2.3分流道的设计……………………………………………………………… 22
3.2.4浇口的设计………………………………………………………………… 23
3.2.5冷料穴的设计……………………………………………………………… 24
3.3排溢引气系统设计……………………………………………………………… 25
3.3.1排溢、引气系统设计……………………………………………………… 25
3.4脱模机构的设计………………………………………………………………… 26
3.4.1脱模机构系统的设计……………………………………………………… 26
3.4.2侧凹、侧凸塑件脱出机构设计…………………………………………… 29
3.5温度调节系统的设计…………………………………………………………… 33
3.5.1冷却系统…………………………………………………………………… 34
3.6其它零部件设计………………………………………………………………… 37
3.6.1顶杆的导柱设计…………………………………………………………… 37
3.6.2限位钉……………………………………………………………………… 37
3.6.3导向元件的设计…………………………………………………………… 38
3.6.4动模座板及定模座板的设计……………………………………………… 39
3.6.5垫块的设计………………………………………………………………… 39
3.7本章小结………………………………………………………………………… 40
结论……………………………………………………………………………………… 41
参考文献………………………………………………………………………………… 42
致谢……………………………………………………………………………………… 43
温馨提示:
1、题目前面的备注【字母数字编号】为本站整理分类的编号,与课题内容无关,请选题时忽视;
2、若题目上备注三维,则表示文件里包含三维源文件,由于三维组成零件数量较多,为保证预览截图的简洁性,本站将三维文件夹进行了打包。三维及CAD预览截图,均为本站电脑打开软件进行截图的,保证能够打开,下载原件超高清,下载后解压即可;
3、本站所有资源如无特殊说明,都需要本地电脑安装Office2007。图纸软件为AutoCAD,PROE,UG,SolidWorks,CATIA等;
4、本站所有图文资料仅供用户学习参考,不作为任何商用或其他用途;
5、本站不保证下载资源的准确性、安全性和完整性, 不包修改,不支持退换,同时也不承担用户因使用这些下载资源对自己和他人造成任何形式的伤害或损失;
6、 下载文件中如有侵权或不适当内容,请与我们联系,我们立即纠正。