

作品包括:
说明书1份,共29页,约9400字左右
CAD版本本图纸,共12张
限位板冲压成形工艺与模具设计
摘 要:本设计题目为限位板冲裁模,体现了典型冲裁模的设计要求、内容及方向,有一定的设计意义。通过对该模具的设计,加强了设计者对冲裁模设计基础知识的理解和运用,为设计更复杂的冲裁模具做好了铺垫。
本设计运用冲裁工艺及模具设计的基础知识,首先分析了板材的性能要求,为选取模具的类型做好了准备;然后计算了冲裁件的冲裁力,便于选取压力机吨位及确定压力机型号;最后分析了冲裁件的特征,便于确定模具的设计参数、设计要点及卸件装置。
本设计采用了冲孔—落料级进模成形垫片。成形原理可划分为两个阶段:首先冲孔凸模与凹模共同作用先冲出四个 30mm的孔,而后利用第一步冲出的 30mm的孔做精确定位使外形凸模与凹模共同作用使工件落料成形。
关键词:限位板、 压力机、 级进模具、 冲孔、 落料
目录
1绪 论 1
1.1 国内模具的现状和发展趋势 1
1.1.1 国内模具的现状 1
1.1.2 国内模具的发展趋势 2
1.2 国外模具的现状和发展趋势 3
1.3 限位板落料级进模具设计与制造方面 4
1.3.1 限位板冲孔落料级进模具设计的设计思路 4
1.3.2 限位板模具设计的进度 4
2冲压件工艺分析 5
3 工艺方案的确定 7
3.1 方案的拟定 7
3.2 方案比较 7
3.3 方案选定 7
4 必要的工艺计算 8
4.1 排样设计 8
4.1.1 排样方案拟定 8
4.1.2 排样方案比较 8
4.1.3、方案选定 11
4.2 计算凸、凹模工作部分的尺寸 11
4.2.1 冲孔 凸、凹刃口尺寸的计算 11
4.2.2 外形落料凸、凹模刃口尺寸计算 12
4.3 冲压力的计算 13
4.3.1冲孔力、落料力的计算 13
4.3.2冲孔、落料时的推件力、卸料力计算 13
4.3.3 总的冲压力计算: 14
4.4 压力中心的计算 14
5 模具的总体设计 17
6 模具主要零部件的结构设计 19
6.1 凸模、凹模的结构设计 19
6.1.1冲孔凸模的结构设计。 19
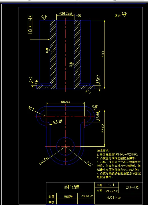
6.1.2 落料凸模的结构设计 19
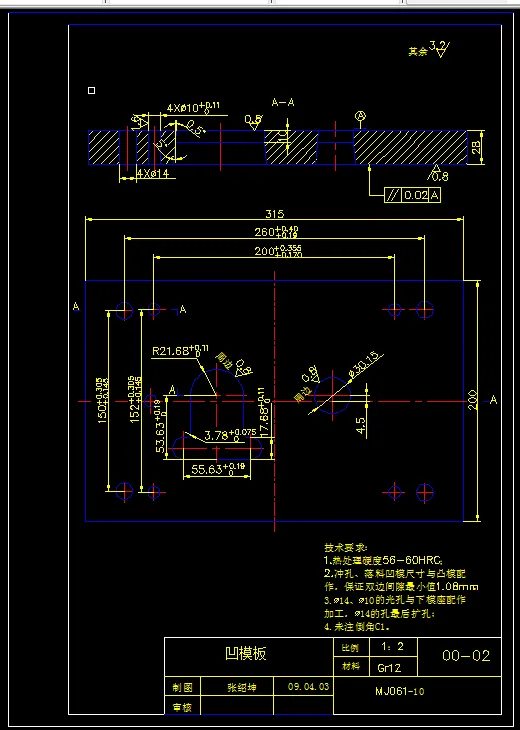
6.1.3 凹模板的设计 21
6.1.4 导正销的设计 21
6.1.5固定挡料销位置的确定 22
6.1.6 导料板的设计 23
6.1.7 卸料板的设计 23
6.1.8始用挡料销位置确定 23
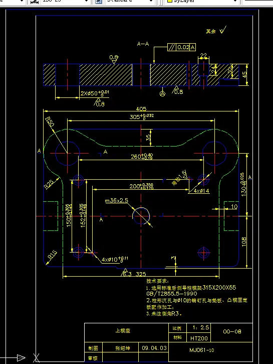
6.2 模架的选择 24
6.3模具的闭合高度 24
7 冲压设备的选择 25
8 模具总装图的绘制 26
9 设计总结 27
致 谢 28
参考文献 29
温馨提示:
1、题目前面的备注【字母数字编号】为本站整理分类的编号,与课题内容无关,请选题时忽视;
2、若题目上备注三维,则表示文件里包含三维源文件,由于三维组成零件数量较多,为保证预览截图的简洁性,本站将三维文件夹进行了打包。三维及CAD预览截图,均为本站电脑打开软件进行截图的,保证能够打开,下载原件超高清,下载后解压即可;
3、本站所有资源如无特殊说明,都需要本地电脑安装Office2007。图纸软件为AutoCAD,PROE,UG,SolidWorks,CATIA等;
4、本站所有图文资料仅供用户学习参考,不作为任何商用或其他用途;
5、本站不保证下载资源的准确性、安全性和完整性, 不包修改,不支持退换,同时也不承担用户因使用这些下载资源对自己和他人造成任何形式的伤害或损失;
6、 下载文件中如有侵权或不适当内容,请与我们联系,我们立即纠正。