

作品包括:
Word版说明书1份,共27页,约10000字
CAD版本图纸,共16张
SW三维图一套
XT三维通用格式一份

摘 要
模具技术是制造业的基础,更是工业发展的核心,对于国家的经济发展来说,更是必不可少的一部分,一个国家的技术进步,都离不开模具的支撑。我国作为模具发展大国,近些年模具技术取得很大的进步,产值更是不断增长,特别是在汽车制造,电子电器,及医疗化工等产业发展中,需要模具设备提供大量的产品。根据资料统计,如今的工业产品中有超过60%的零部件都是模具制造所得,由于模具能够实现高效率,低能耗生产,则使用模具生产是一个重要的途径,未来对于模具的发展也是提出更高的要求,低端模具也会不断被淘汰,高精度长寿命模具会是一个主要趋势。
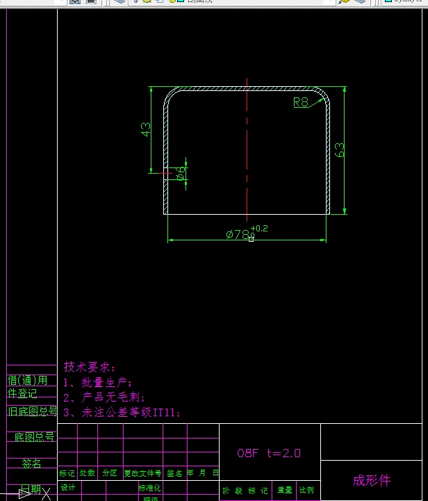
本次设计的为成型件冲压工艺与冲孔模设计,通过分析零件工艺要求着手,选取材料08F,零件的加工工序为冲孔,此种方式的加工方案有多种,经过对方案对比分析,选取冲孔模的方式。设计主要对排样进行对比确定,材料利用率的计算,搭边数值确定,以及凹模凸模的尺寸计算,冲裁力的计算,并且根据计算数值选取符合要求的压力机,以及对压力机做出参数校验,确保选取的压力机满足要求。最终通过使用CAD软件画出零件冲侧孔模具的总装图和零件图,完成设计要求。
关键词:冲孔模;成型件;工艺分析;
目 录
摘 要 4
第一章、绪 论 7
1.1.冷冲压与模具技术现状 7
1.2.本次设计的目的 9
第二章、冲压件工艺性分析及冲裁方案的确定 10
2.1.材料分析 10
2.2.冲裁件的结构工艺性 10
第三章、冲压力及压力中心计算 11
3.1.冲压力的计算 11
3.1.1.冲孔力计算 11
4.1.2.推件料力计算 11
3.2.冲压压力中心计算 13
第四章、冲压设备选择与校核 16
4.1.冲压设备类型的选择 16
4.2.初步选择压力机 16
4.3.压力机的校核 16
4.4.终选压力机参数 17
第五章、冲裁模工作部分设计计算 18
5.1.冲裁间隙 18
5.2.模具刃口尺寸的计算 18
5.2.1.冲孔部分刃口设计计算 19
第六章、模具结构与零件设计 21
6.1.模具类型的选择 21
6.2.定位方式的选择 21
6.3.模具材料的选择 21
6.4.凹模设计 21
6.5.凸模设计 22
6.5.1.模具的结构形式和固定方法 22
6.5.2.凸模结构设计 22
6.6.模具结构设计 23
设计小结 25
致 谢 26
参考文献 27
温馨提示:
1、题目前面的备注【字母数字编号】为本站整理分类的编号,与课题内容无关,请选题时忽视;
2、若题目上备注三维,则表示文件里包含三维源文件,由于三维组成零件数量较多,为保证预览截图的简洁性,本站将三维文件夹进行了打包。三维及CAD预览截图,均为本站电脑打开软件进行截图的,保证能够打开,下载原件超高清,下载后解压即可;
3、本站所有资源如无特殊说明,都需要本地电脑安装Office2007。图纸软件为AutoCAD,PROE,UG,SolidWorks,CATIA等;
4、本站所有图文资料仅供用户学习参考,不作为任何商用或其他用途;
5、本站不保证下载资源的准确性、安全性和完整性, 不包修改,不支持退换,同时也不承担用户因使用这些下载资源对自己和他人造成任何形式的伤害或损失;
6、 下载文件中如有侵权或不适当内容,请与我们联系,我们立即纠正。