

作品包括:
Word版说明书1份,共33页,约9400字
CAD版本图纸,共17张
UG三维图一份
![1712199619358113.webp BYTO}HR(]}QACNCH]@KQ833.webp](/static/upload/image/20240404/1712199619358113.webp)
摘要
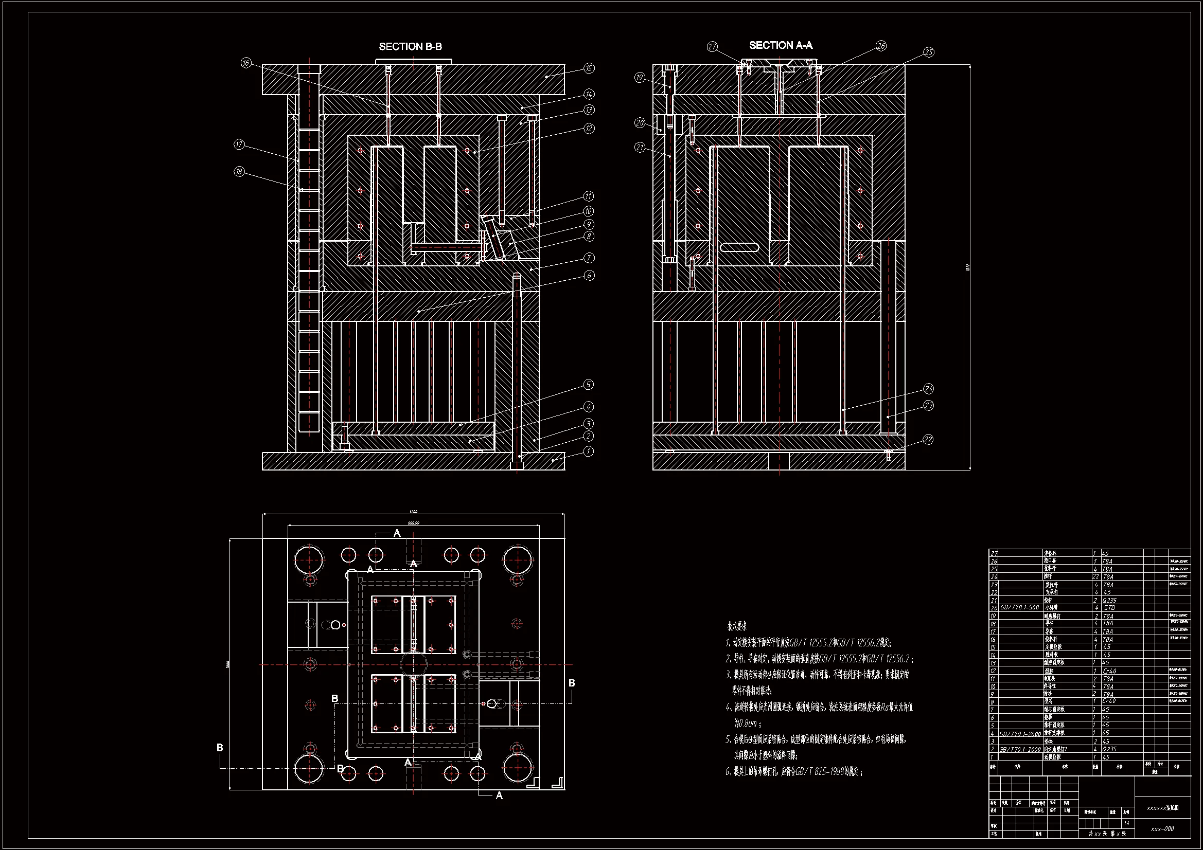
塑料工业是当今世界上增长最快的工业门类之一,而注塑模具是其中发展较快的种类。因此,研究注塑模具对了解塑料产品的生产过程和提高产品质量有很大意义。本设计介绍了拖布清洗工具盒注射成型的基本过程,
对注塑产品提出了基本的设计原则;详细介绍了塑件成型工艺设计,注射机的选择,浇注系统的的设计,成型零件的结构设计,脱模推出机构的设计,冷却系统的设计的过程。并对标准模架的选择也作了相应的介绍。通过本次设计,使我掌握了注塑模具设计的全过程,同时也提高了运用CAD绘制复杂装配图的能力。
关键词:模具;注塑模;拖布清洗工具盒
目 录
摘要 II
第1章 绪论 4
第2章 塑件设计及分析 5
2.1 塑件的原材料分析及选用 5
2.2 塑件分析 5
2.2.1 制品形状 6
2.2.2 尺寸精度 6
2.2.3 表面质量 6
第3章 分型面的设计 7
3.1 制品在分型面的位置 7
3.2 分型面的形式 7
3.3 分型面的选择 7
第4章 成型件设计 9
4.1 成型件的结构设计 9
4.1.1 凹模的结构设计 9
4.1.2 凸模的结构设计 10
4.2 成型件的材料选择 10
4.3 成型件钢材的热处理要求 10
4.4 型腔、型芯工作部位尺寸的确定 11
4.5 壁厚的计算 11
第5章 浇注系统的设计 9
5.1 主流道设计 13
5.2.1 主流道设计要点 13
5.2.2 分流道设计要点 14
5.2.4浇口套的设计 14
5.3 浇口的设计 14
第6章 注塑机与标准模架的选择 16
6.1 注塑机简述 16
6.2 注塑机的类型 16
6.3 注塑机的组成 16
6.4 最大注射量 16
6.5注射压力的确定 17
6.6 所需锁模力的确定 18
6.7 初选注塑机 18
6.8注射机性能参数校核 18
6.8.1 锁模力、注射压力的校核 19
6.8.2模具在注射机上的安装 20
第7章 脱模结构与抽芯机构的设计 21
7.1 合模导向机构的设计 21
7.2 推出机构的组成及各部分作用 21
7.3 推出机构的分类 21
7.4 推出机构的设计原则 22
7.5 确定推出方式及推杆位置 22
7.5 抽芯机构的设计 23
7.5.1抽芯机构的确定 24
7.5..2抽芯距S 24
7.5.3滑块的设计 24
第8章 冷却系统的设计 26
8.1 模温对制品质量和生产效率的影响 26
8.2 模具冷却系统的设计 26
8.2.1 冷却水口的设计 26
8.2.2 冷却回路的设计 26
第9章 排气槽的位置及排气方式 28
第10章 模具装配图的绘制 28
总 结 29
参考文献 31
温馨提示:
1、题目前面的备注【字母数字编号】为本站整理分类的编号,与课题内容无关,请选题时忽视;
2、若题目上备注三维,则表示文件里包含三维源文件,由于三维组成零件数量较多,为保证预览截图的简洁性,本站将三维文件夹进行了打包。三维及CAD预览截图,均为本站电脑打开软件进行截图的,保证能够打开,下载原件超高清,下载后解压即可;
3、本站所有资源如无特殊说明,都需要本地电脑安装Office2007。图纸软件为AutoCAD,PROE,UG,SolidWorks,CATIA等;
4、本站所有图文资料仅供用户学习参考,不作为任何商用或其他用途;
5、本站不保证下载资源的准确性、安全性和完整性, 不包修改,不支持退换,同时也不承担用户因使用这些下载资源对自己和他人造成任何形式的伤害或损失;
6、 下载文件中如有侵权或不适当内容,请与我们联系,我们立即纠正。