

作品包括:
Word版说明书1份,共24页,约9000字
CAD版本图纸,共5张

摘要
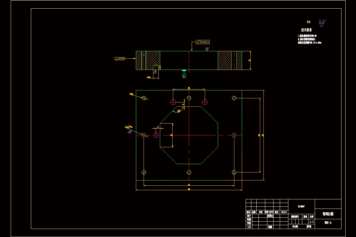
八角形冲压件零件起到固定作用。由于该零件要求大批量生产,而且要求互换性良好。故选用冲压加工,完成该设计任务必须完成零件的工艺分析、工艺计算以及模具设计。
本的主要内容:工件的工艺性分析、冲压工艺方案的确定、计算冲压件的毛坯尺寸、冲裁排样方式的设计及计算、各工序压力的计算、压力机的初步选用、模具压力中心的确定、冲压设备的选用、模具类型及结构形式的选择与计算、各主要零件的尺寸计算、冲裁间隙的确定、凸凹模刃口尺寸的确定等。首先在分析了冲压加工的运用及优、缺点的基础上总结了现代冲压加工的发展方向。针对所设计的零件进行了深入的工艺分析,了解到零件的尺寸要求也较高,因此拟定工艺方案分两道工序。最后,通过工艺计算设计各工序模具,结合模具的结构及模具的尺寸为各工序选择冲压设备。利用AutoCAD绘制模具的装配图以及非标准件零件图,并对产品、模具结构、加工技术及成本进行设计和优化,提高经济效益和降低制造成本。保证八角形冲压件形状及尺寸稳定性好且具有最佳的综合力学性能。
关键词:冲压工艺;冲压;落料
温馨提示:
1、题目前面的备注【字母数字编号】为本站整理分类的编号,与课题内容无关,请选题时忽视;
2、若题目上备注三维,则表示文件里包含三维源文件,由于三维组成零件数量较多,为保证预览截图的简洁性,本站将三维文件夹进行了打包。三维及CAD预览截图,均为本站电脑打开软件进行截图的,保证能够打开,下载原件超高清,下载后解压即可;
3、本站所有资源如无特殊说明,都需要本地电脑安装Office2007。图纸软件为AutoCAD,PROE,UG,SolidWorks,CATIA等;
4、本站所有图文资料仅供用户学习参考,不作为任何商用或其他用途;
5、本站不保证下载资源的准确性、安全性和完整性, 不包修改,不支持退换,同时也不承担用户因使用这些下载资源对自己和他人造成任何形式的伤害或损失;
6、 下载文件中如有侵权或不适当内容,请与我们联系,我们立即纠正。