

作品包括:
Word版说明书1份,共32页,约12000字
CAD版本图纸,共10张
UG三维图一份

摘要
大学三年的专科学习即将结束,毕业设计是其中最后一个环节,是对以前所学的知识及所掌握的技能的综合运用和检验。随着我国经济的迅速发展,采用模具的生产技术得到愈来愈广泛的应用。
在完成大学三年的课程学习和课程、生产实习,我熟练地掌握了模具材料及表面处理、金属工艺学机、机械设计基础、公差配合与技术测量基础、数控编程、ug造模与模具设计、塑料成型工艺与模具设计、模具制造工艺学、数控加工工艺与编程、冲压与塑压设备等专业基础课和专业课方面的知识,对模具制造、加工的工艺有了一个系统、全面的理解,达到了学习的目的。对于模具设计这个实践性非常强的设计课题,我们进行了大量的实习。经过在河源职业技术学院实训中心的生产实习,我对于模具特别是塑料模具的设计步骤有了一个全新的认识,丰富了各种模具的结构和动作过程方面的知识,而对于模具的制造工艺更是实现了零的突破。在指导老师的协助下和在工厂师傅的讲解下,同时在现场查阅了很多相关资料并亲手拆装了一些典型的模具实体,明确了模具的一般工作原理、制造、加工工艺。并在图书馆借阅了许多相关手册和书籍,设计中,将充分利用和查阅各种资料,并与同学进行充分讨论,尽最大努力搞好本次毕业设计。
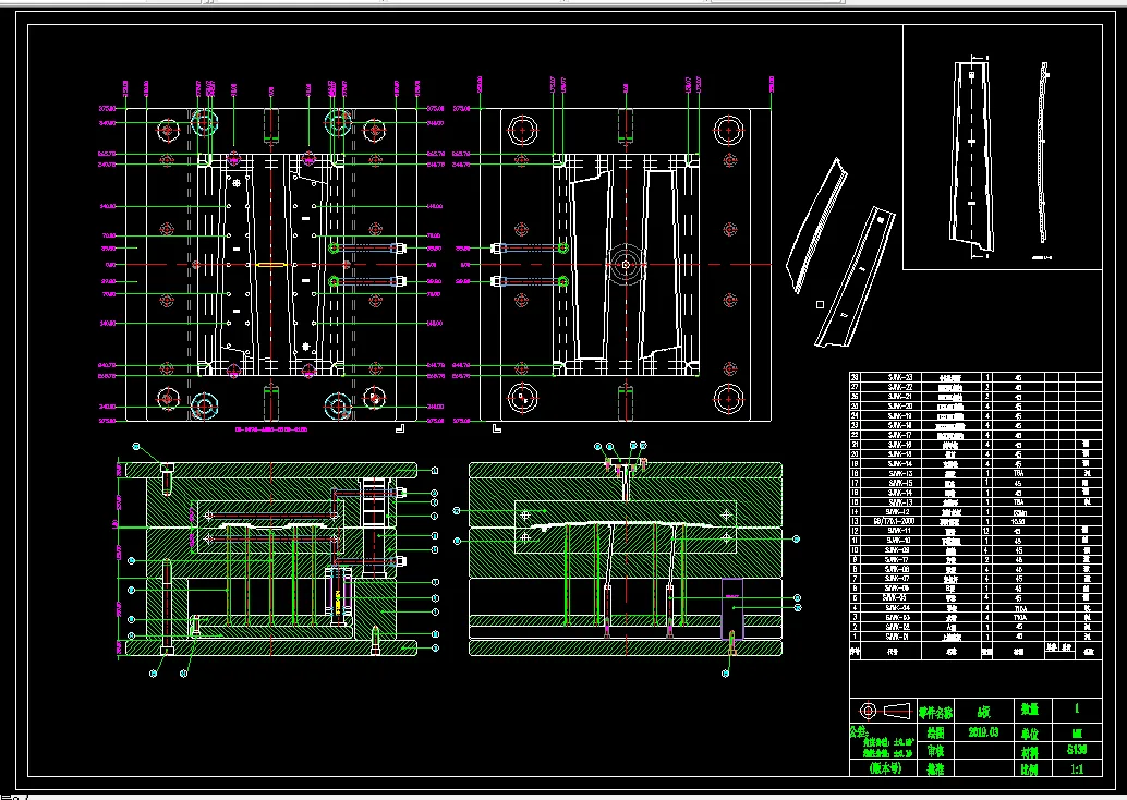
通过对产品的正确分析,设计了一副一模四腔的塑料模具。详细地叙述了模具成型零件包括设计方案、选择最佳的设计方案、型腔、型芯等设计,利用软件进行分模、重要零件的工艺参数的选择与计算,浇注系统、冷却系统以及其它结构的设计过程,并利用UG软件绘制三维实体;CAE模流分析;AutoCAD绘制二维图模具设计,编制设计工艺卡、接着书写说明书、修正。
在设计的过程中,将有一定的困难,但有指导老师的悉心指导和自己的努力,相信会完满的完成毕业设计任务。由于学生水平有限,而且缺乏经验,设计中不妥之处在所难免,肯请各位老师指正。
关键词:模具设计;注塑模具;AutoCAD;UG;。
目录
摘 要 5
Abstract 6
绪论 8
第一章 零件工艺性分析 9
1. 1 产品的原材料分析 9
1. 2材料成型的特点分析 ................................................10
1. 3 塑件的结构和尺寸精度及表面质量分析 10
第二章 塑件在模具中的位置与分型面 11
2. 1 确定型腔的数量及排列方式 11
2. 2 分型面的选择 12
第三章 浇注系统的设计 13
3. 1 主流道设计 13
3. 2 分流道设计 15
3. 3 浇口设计 16
3. 4 模具排气槽设计 17
第四章 成型零件的设计 17
4. 1凸模工作尺寸计算 18
4. 2凹模工作尺寸计算 19
第五章 合模导向机构的设计 20
5. 1 合模导向机构的作用 19
5. 2 合模导向机构类型 19
第六章 脱模推出机构的设计 20
6. 1 何为脱模机构 20
6. 2 脱模机构的设计原则 20
第七章 模具冷却系统 21
7. 1 冷却系统设计 21
7. 2 冷却系统设计原则 21
7. 3 冷却系统的结构形式 22
第八章 注塑标准模架选用 23
第九章 模具与注射机的关系 25
9. 1 塑件的体积计算 25
9. 2 注射机的选择 25
9. 3 注射压力的校核 27
9. 4 锁模力的校核 27
9. 5 模具厚度的校核 29
9. 6 开模行程的校核 29
9. 7 塑料的注射工艺参数的确定 29
第十章 试模及模具维修 30
10. 1 模具的安装 31
10. 2 试模 31
10. 3 模具的维修 32
第十一章 结束语 33
主要参考文献: 33
温馨提示:
1、题目前面的备注【字母数字编号】为本站整理分类的编号,与课题内容无关,请选题时忽视;
2、若题目上备注三维,则表示文件里包含三维源文件,由于三维组成零件数量较多,为保证预览截图的简洁性,本站将三维文件夹进行了打包。三维及CAD预览截图,均为本站电脑打开软件进行截图的,保证能够打开,下载原件超高清,下载后解压即可;
3、本站所有资源如无特殊说明,都需要本地电脑安装Office2007。图纸软件为AutoCAD,PROE,UG,SolidWorks,CATIA等;
4、本站所有图文资料仅供用户学习参考,不作为任何商用或其他用途;
5、本站不保证下载资源的准确性、安全性和完整性, 不包修改,不支持退换,同时也不承担用户因使用这些下载资源对自己和他人造成任何形式的伤害或损失;
6、 下载文件中如有侵权或不适当内容,请与我们联系,我们立即纠正。