

作品包括:
说明书1份,共26页,约10000字左右
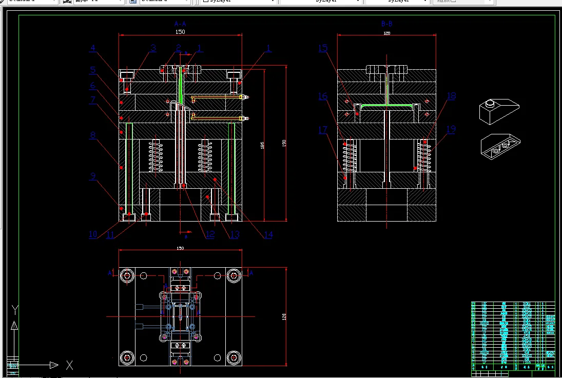
CAD版本本图纸,共9张
SW三维图一份
摘 要
本文介绍了机器人足部零件塑料模具设计过程,在塑料零件的模具设计中确定了分型面的位置,浇注系统和排气系统等等部分的结构,模具导向机构,脱模机构,侧向分型抽芯机构,温度控制系统的设计方案,并对优化后的设计方案进行了合理选择。该毕业设计的内容是机器人足部零件的注塑模具,材料为ABS,根据其结构形状特点以及通过对机器人足部零件成型工艺的正确分析,确定型腔的总体布局,选择分型面,确定脱模方式,设计浇注系统等;同时本文对注塑模具进行简要介绍,对注塑模具中的主要零件进行设计计算,在设计过程中着重考虑其生产实际中的经济性和合理性。
关键词:注塑模具;注射成型;分型面
目 录
诚信申明 I
摘要 II
Abstract III
第一章 前言 1
1.1我国模具行业的发展方向和前景 1
1.2 模具的发展趋势 1
1.3 模具在加工工业中的地位 1
第二章 注塑件的设计 2
2.1 功能设计 5
2.2 材料分析 7
2.3 塑件的尺寸精度及表面质量 9
第三章 塑件3D建模及注射成型工艺分析 10
3.1塑件的3D模型 12
3.2塑件的注射成型工艺性分析 13
3.3注塑机 15
第四章 模具结构设计 16
4.1 成型零部件的结构设计 17
4.2 成型零部件工作尺寸计算 17
4.3 成型零部件的强度与刚度计算 17
4.4 选用标准注射模架 17
4.5 定模板与动模板的设计 18
第五章 注射机的校核 18
5.1最大注塑量的校核 19
5.2锁模力的校核 19
5.3模具外形尺寸校核 19
5.4模具厚度校核 20
5.5模具安装尺寸校核 20
5.6开模行程校核 21
第六章 模具总装设计 22
6.1模具装配及加工要求 22
6.2模具工作原理 22
结论 23
参考文献 24
致 谢 25
温馨提示:
1、题目前面的备注【字母数字编号】为本站整理分类的编号,与课题内容无关,请选题时忽视;
2、若题目上备注三维,则表示文件里包含三维源文件,由于三维组成零件数量较多,为保证预览截图的简洁性,本站将三维文件夹进行了打包。三维及CAD预览截图,均为本站电脑打开软件进行截图的,保证能够打开,下载原件超高清,下载后解压即可;
3、本站所有资源如无特殊说明,都需要本地电脑安装Office2007。图纸软件为AutoCAD,PROE,UG,SolidWorks,CATIA等;
4、本站所有图文资料仅供用户学习参考,不作为任何商用或其他用途;
5、本站不保证下载资源的准确性、安全性和完整性, 不包修改,不支持退换,同时也不承担用户因使用这些下载资源对自己和他人造成任何形式的伤害或损失;
6、 下载文件中如有侵权或不适当内容,请与我们联系,我们立即纠正。