

作品包括:
Word版说明书1份,共37页,约12000字
任务书一份
开题报告一份
外文翻译一份
CAD版本图纸,共14张
UG三维图一套

摘 要
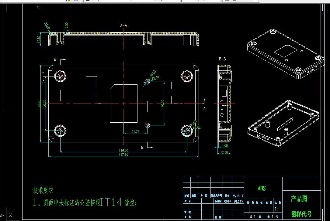
注塑模具是机械工业的基础,本次设计中,对塑件“台灯外形覆盖件”进行了模具结构的设计。对于该塑件,首先结合任务要求,进行了塑件结构的分析,包括塑件尺寸,壁厚,结构性能等,然后对于注塑成型的高分子材料进行物理化学性能以及注塑工艺性能进行分析。
针对注塑模具结构设计环节,进行了浇口和浇注系统的设计,对于塑件的分型,本次设计中选择了平面分型的方式来建立型芯和型腔的三维模型,模具的在注塑充填的时候会非常热,所以设置了冷却水道来实现模具的降温,同时可以缩短注塑周期,对于塑件的脱模环节,均匀的布置了顶出机构,实现塑件的自动脱模。模架则采用了标准化的模架,标准化模架的时候能够快速的制造和生产模具,同时降低模具制造成本。
在完成注塑模具结构设计之后,通过查询注塑机参数表,选择该模具生产用得到注塑机,并且对其中的核心注塑机参数校核,经过验证,能够符合经济性生产要求,满足实际。
关键词:塑料;注塑模具;注塑机;校核;设计;
目录
摘 要 I
目录 II
前言 IV
第一章 绪论 1
1.1 注塑模具概述与课题背景 1
1.2 模具在加工工业中的地位 1
13 模具的发展趋势 2
1.4 注塑模具学习研究的方向 2
1.5 研究内容 3
第二章 塑件的工艺分析 4
2.1 塑件的结构分析 4
2.2 脱模斜度 5
2.3 壁厚 5
2.4 台灯外形覆盖件的圆角 5
2.5 尺寸及精度 5
2.6 表面粗糙度 6
2.7 台灯外形覆盖件的体积和质量 6
2.8 成型工艺过程分析 7
2.9 ABS材料分析 7
第三章 模具结构设计 9
3.1 分型面的选择 9
3.2 型腔的数目以及排布 9
3.3 注射机的选择和校核 9
3.3.1 注射量的校核 11
3.3.2锁模力的校核 11
3.3.3 注塑机安装尺寸与模具大小校核 12
3.4 浇注系统的设计 13
3.4.1 主流道的设计 13
3.4.2 分流道的设计 14
3.4.3 浇口的设计 14
3.4.4 冷料穴的设计 15
3.5 注射模成型零部件的设计 16
3.5.1 型腔的设计与计算 16
3.5.2 型芯的设计 18
3.6 排气结构设计 19
3.7 脱模机构的设计 19
3.7.1 脱模机构的选用 19
3.7.2 推杆机构的设计 19
3.8 注射模冷却系统 20
3.9 模架及标准件的选用 21
第四章 滑块抽芯机构与导向机构设计 23
4.1 滑块抽芯机构的类型 23
4.2 滑块抽芯机构的计算 23
4.2.1 抽芯距S 23
4.2.2 斜导柱倾斜角 24
4.2.3 斜导柱大小的计算 24
4.2.4 斜导柱的长度的计算 24
4.3 合模导向机构的设计 25
4.3.1 导向结构 25
第五章 模具的装配 27
5.1 组装注塑模具的要求 27
总 结 28
致谢 29
参考文献 30
温馨提示:
1、题目前面的备注【字母数字编号】为本站整理分类的编号,与课题内容无关,请选题时忽视;
2、若题目上备注三维,则表示文件里包含三维源文件,由于三维组成零件数量较多,为保证预览截图的简洁性,本站将三维文件夹进行了打包。三维及CAD预览截图,均为本站电脑打开软件进行截图的,保证能够打开,下载原件超高清,下载后解压即可;
3、本站所有资源如无特殊说明,都需要本地电脑安装Office2007。图纸软件为AutoCAD,PROE,UG,SolidWorks,CATIA等;
4、本站所有图文资料仅供用户学习参考,不作为任何商用或其他用途;
5、本站不保证下载资源的准确性、安全性和完整性, 不包修改,不支持退换,同时也不承担用户因使用这些下载资源对自己和他人造成任何形式的伤害或损失;
6、 下载文件中如有侵权或不适当内容,请与我们联系,我们立即纠正。