

作品包括:
Word版设计说明书1份,共29页,约10000字
CAD版本图纸,共10张
UG三维图一份
摘要
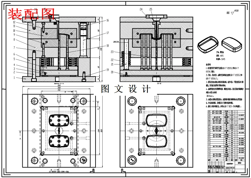
本文主要对日常生活中的接肥皂盒进行注塑模的设计,根据注塑模设计的一般步骤对接肥皂盒进行模具的设计,首先对材料进行选择,确定好接肥皂盒的材料然后对塑件进行工艺性分析,对注塑机进行选择,对塑件进行布局,本设计选用一模两腔的布局形式,对模具分型面的确定,确定了成型零部件的尺寸,对推出机构和流道进行设计,参考的资料基本都是大学三年所学的书籍,通过对资料的查询,结合一些机械制图的知识完成了接肥皂盒的注塑模设计,利用UG三维软件对接肥皂盒进行注塑模的设计,完成了分模的工作。
温馨提示:
1、题目前面的备注【字母数字编号】为本站整理分类的编号,与课题内容无关,请选题时忽视;
2、若题目上备注三维,则表示文件里包含三维源文件,由于三维组成零件数量较多,为保证预览截图的简洁性,本站将三维文件夹进行了打包。三维及CAD预览截图,均为本站电脑打开软件进行截图的,保证能够打开,下载原件超高清,下载后解压即可;
3、本站所有资源如无特殊说明,都需要本地电脑安装Office2007。图纸软件为AutoCAD,PROE,UG,SolidWorks,CATIA等;
4、本站所有图文资料仅供用户学习参考,不作为任何商用或其他用途;
5、本站不保证下载资源的准确性、安全性和完整性, 不包修改,不支持退换,同时也不承担用户因使用这些下载资源对自己和他人造成任何形式的伤害或损失;
6、 下载文件中如有侵权或不适当内容,请与我们联系,我们立即纠正。