

作品包括:
Word版设计说明书1份,共44页,约14000字
CAD版本图纸,共11张
UG三维图一份
模流分析一份
摘要
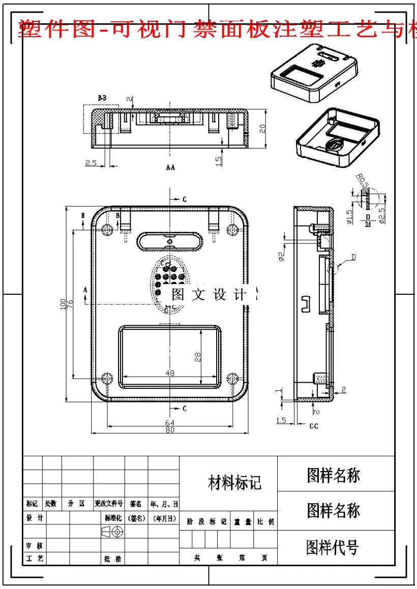
本文选择了的门禁面板塑件作为设计核心,最终完成整套的注塑模具设计。首先完成了塑件的测绘与建模,然后分析了该塑件的结构工艺性,结合塑件的使用特性,选择了合适该塑件的热塑性材料来成型。根据经济性与模具设计原则规范要求,采用了一模四腔的结构布局形式,该方案结构简单可靠。对于本文重点的模具设计七大系统,分别采用了侧浇口的浇注系统;采用冷却水道来降低温度,控制注塑成型周期;在成型系统零部件的设计上,采用了镶嵌式的型芯和型腔,这两个核心零部件采用专门的模具钢材制造与加工,寿命更长久;对于顶出脱模系统的设计上,仍然采用最高效的顶杆顶出机构来实现;本套设计重点完成了抽芯机构的设计,实现了对塑件特殊结构的成型设计。
在完成前面的结构设计方案之后,进一步的通过机械设计软件来实现建模,通过采用UG NX软件完成三维模具总装图的
温馨提示:
1、题目前面的备注【字母数字编号】为本站整理分类的编号,与课题内容无关,请选题时忽视;
2、若题目上备注三维,则表示文件里包含三维源文件,由于三维组成零件数量较多,为保证预览截图的简洁性,本站将三维文件夹进行了打包。三维及CAD预览截图,均为本站电脑打开软件进行截图的,保证能够打开,下载原件超高清,下载后解压即可;
3、本站所有资源如无特殊说明,都需要本地电脑安装Office2007。图纸软件为AutoCAD,PROE,UG,SolidWorks,CATIA等;
4、本站所有图文资料仅供用户学习参考,不作为任何商用或其他用途;
5、本站不保证下载资源的准确性、安全性和完整性, 不包修改,不支持退换,同时也不承担用户因使用这些下载资源对自己和他人造成任何形式的伤害或损失;
6、 下载文件中如有侵权或不适当内容,请与我们联系,我们立即纠正。