

作品包括:
说明书1份,共35页,约15000字左右
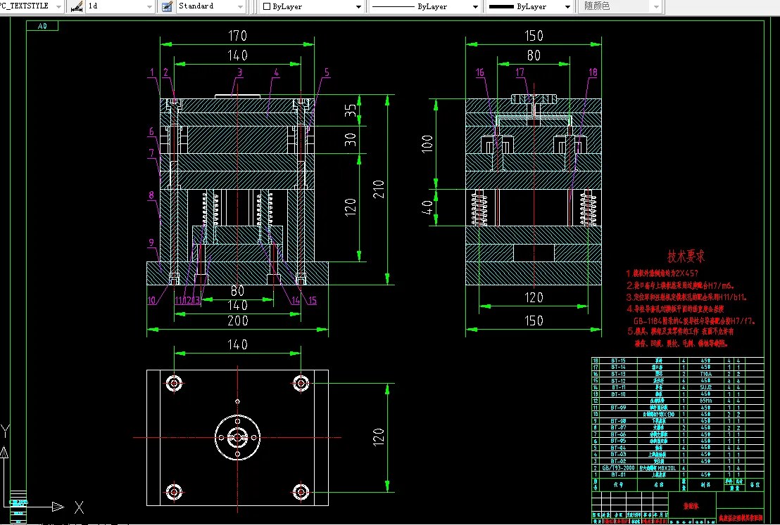
CAD版本本图纸,共10张
SW三维图一份
摘 要
塑料成型制品是以塑料为主要结构材料经成型加工获得的制品,又叫做塑料制件,简称塑件。塑料成型制品应用广泛,特别是在电子仪表、电器设备、通信工具等方面获得大量应用。如各种受力不大的壳体、支架、结构件、装饰件等;作为塑料制品的主要生产基础工艺装备的塑料模具,在国民经济占有重要的地位,模具技术也已成为衡量一个国家产品制造水平的重要标志。注射成型是塑料成型的一种重要方法,它主要适用于热塑性的成型可以一次成型形状复杂的精密塑件,本次设计就是将底座盖作为设计模型,将注塑模具的相关知识作为依据,阐述塑料注塑模具的整体设计过程。
本文设计的内容就是底座盖注塑模具,材料为PC,根据其结构形状特点以及通过对底座盖成型工艺的正确分析,确定型腔的总体布局,选择分型面,确定脱模方式,设计浇注系统等;同时本文对注塑模具进行简要介绍,对注塑模具中的主要零件进行设计计算,在设计过程中着重考虑其生产实际中的经济性和合理性。
关键词:注塑模具; 注射成型; 分型面
目 录
第一章 前言 2
1.1我国模具行业的发展方向和前景 2
1.2 注塑模具设计与制造技术 3
1.3 UG模具设计的基本流程 4
1.4课题意义 5
第二章 注塑件的设计 6
2.1 功能设计 6
2.2 材料选择 6
2.3 结构设计 7
2.4 塑件的尺寸精度及表面质量 8
第三章 塑件3D建模及注射成型工艺分析 9
3.1塑件的3D模型 9
3.2塑件的注射成型工艺性分析 9
3.3注塑机 15
第四章 模具结构设计 16
4.1型腔数目的确定 16
4.2分型面的确定 17
4.3浇口的确定 17
4.4模具材料的确定 17
4.5浇注系统的设计 18
4.6成型零件结构设计 20
4.7 抽芯结构设计 21
4.8 模具成型尺寸设计计算 21
4.8.1 型腔尺寸 21
4.8.2 型腔深度尺寸 21
4.8.3 型芯径向尺寸 22
4.8.4 型芯高度尺寸 22
4.9 模具加热、冷却系统的计算 22
4.9.1 模具加热 23
4.9.2 模具冷却 23
4.10推出机构的设计 24
第五章 注射机的校核 26
5.1最大注塑量的校核 26
5.2锁模力的校核 26
5.3模具外形尺寸校核 26
5.4模具厚度校核 27
5.5模具安装尺寸校核 27
5.6开模行程校核 27
第六章 模具总装设计 28
6.1模具装配及加工要求 28
6.2模具工作原理 30
谢辞 33
参考文献 34
温馨提示:
1、题目前面的备注【字母数字编号】为本站整理分类的编号,与课题内容无关,请选题时忽视;
2、若题目上备注三维,则表示文件里包含三维源文件,由于三维组成零件数量较多,为保证预览截图的简洁性,本站将三维文件夹进行了打包。三维及CAD预览截图,均为本站电脑打开软件进行截图的,保证能够打开,下载原件超高清,下载后解压即可;
3、本站所有资源如无特殊说明,都需要本地电脑安装Office2007。图纸软件为AutoCAD,PROE,UG,SolidWorks,CATIA等;
4、本站所有图文资料仅供用户学习参考,不作为任何商用或其他用途;
5、本站不保证下载资源的准确性、安全性和完整性, 不包修改,不支持退换,同时也不承担用户因使用这些下载资源对自己和他人造成任何形式的伤害或损失;
6、 下载文件中如有侵权或不适当内容,请与我们联系,我们立即纠正。