

作品包括:
说明书1份,共23页,约11000字左右
CAD版本本图纸,共6张
摘要
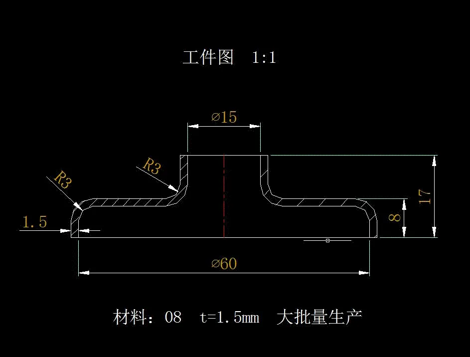
冷冲压工艺是指在室温下,利用安装在压力机上的冲模对材料施加压力,使材料在冲模中产生分离或塑性变形,从而获所需要零件的一种压力加工方法。冲孔是指在已成形的工序坯件上,按设计规定的方向、位置要求,冲切一定数量和形状、大小不同的孔的工艺方式。落料是指直接从坯料上冲切分离出外形零件的工艺方式。本设计为Φ60冲孔、落料连续模具设计过程,主要工作是设计冲压模具的整体和零部件,针对不同零件的不同工作要求选择合适结构、材料,同时对其中的主要零部件进行各种工艺分析和相关参数的确定。
关键词:冷冲压,冲孔、落料,模具
目录
1前言.....................................................................................................................................1
1.1冷冲压模具的背景与现状及发展趋势.......................................................................1
1.2冷冲压概述...................................................................................................................2
1.3冲裁工艺简介...............................................................................................................4
1.4课题的设计任务...........................................................................................................5
2冲裁工艺分析及计算....................................................................................................7
2.1零件的工艺分析...........................................................................................................7
2.2排样设计 ......................................................................................................................8
2.3冲裁力, 卸料力、推件力和顶件力初选压力机........................................................8
2.4确定模具的压力中心....................................................................................................9
2.5凹模,凸模刃口尺寸公差计算及冲裁模间隙............................................................9
3冲孔、落料连续模的工作原理的工作原理............ .............................................12
4模具设计计算设计.........................................................................................................14
4.1卸料弹簧选择..................................................................................................................14
4.2凸模设计..........................................................................................................................14
4.3凹模设计..........................................................................................................................16
4.4模架选择. ........................................................................................................................19
4.5卸料方式..........................................................................................................................20
4.6模柄..................................................................................................................................20
4.7凸模固定板与垫板..........................................................................................................20
4.8闭合高度..........................................................................................................................20
5 设计小结............................................................................................................................22
6 参考文献............................................................................................................................23
温馨提示:
1、题目前面的备注【字母数字编号】为本站整理分类的编号,与课题内容无关,请选题时忽视;
2、若题目上备注三维,则表示文件里包含三维源文件,由于三维组成零件数量较多,为保证预览截图的简洁性,本站将三维文件夹进行了打包。三维及CAD预览截图,均为本站电脑打开软件进行截图的,保证能够打开,下载原件超高清,下载后解压即可;
3、本站所有资源如无特殊说明,都需要本地电脑安装Office2007。图纸软件为AutoCAD,PROE,UG,SolidWorks,CATIA等;
4、本站所有图文资料仅供用户学习参考,不作为任何商用或其他用途;
5、本站不保证下载资源的准确性、安全性和完整性, 不包修改,不支持退换,同时也不承担用户因使用这些下载资源对自己和他人造成任何形式的伤害或损失;
6、 下载文件中如有侵权或不适当内容,请与我们联系,我们立即纠正。