

作品包括:
说明书1份,共33页,约8800字左右
CAD版本本图纸,共12张
摘要
冷冲压也称板料冲压,是塑性加工的一种基本方法,一般与金属板料为原料,利用压力机上的模具往复运动,在常温下对金属施加压力,使板料产生塑性变形欲达到预定的形状尺寸。
本文对一个简单的冲压工艺进行分析,并设计了级进模及主要零部件,在这个课题设计中详细介绍了冲裁剪从排样设计到模具结构设计,再到装配的整个过程,通过这个课程设计让我知道了什么是冷冲压。
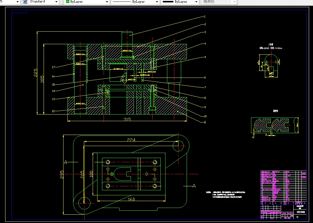
本设计根据导师给的说明要求及零件图,对零件进行工艺分析,确定其公差等级,再进行冲裁方案确定为落料、冲孔工序,使用级进模具,既满足大批量生产的要求,也增大了利益。有冲孔,落料工序,故先要进行工艺计算,确定其毛坯尺寸,再进行排样方案的确定,计算材料的利用率,再计算主要工作零件的工作部分尺寸计算,接着对其主要工作零件的外形尺寸的计算,接着计算冲压力和压力中心。接着就是其他零件的选用及计算,如紧固零件、导料,模柄模架等。最后根据计算结果选用适合的压力机的型号,最后画好零件图及装配图。
关键词:冲压件; 排样设计; 模具结构; 装配
目录
摘要 I
ABSTRACT II
目录 III
绪论 V
冲压模的特点和应用 V
2 冲压的现状和发展趋势 V
3 冲压基本原理的研究 V
设计课题: 1
1. 工艺分析 2
2. 冲压工艺方案的确定 2
3. 工艺尺寸的计算 3
3.1 排样的设计 3
3.2材料利用率的计算 4
3.3 排样的选择 5
3.4 冲裁力与压力中心的计算 5
3.5 冲裁力压力中心的确定 6
3.6 刃口尺寸的计算 6
3.6.1 凸凹模加工方法的确定 6
3.6.2 加工工序 7
3.6.3 工件零件各类尺寸 7
尺寸具体计算 8
3.7 凹模外形尺寸计算 9
4. 工艺零件的设计 10
4.1 凹模的设计 10
4.1.1凹模形状及孔位的设计 10
4.1.2 凹模类型的选择 10
4.1.3 凹模尺寸的计算 11
4.1.4 凹模的固定 12
4.2 凸模的设计 12
4.2.1 凸模类型的选择 12
4.2.2 凸模的计算 13
4.2.3 凸模强度的校核 14
4.3 卸料版的设计 14
4.4 导料板的设计 15
4.5 挡料销的选用 16
4.6 导正销的选用 16
5 结构零件的设计 17
5.1 凸模固定板的设计 17
5.2 垫板的设计 18
5.3 模柄的选择 19
5.4 模架的选择 20
5.5 压力机的选择 23
5.6 闭合高度的计算 23
6. 其他零件的选用 24
6.1 螺钉的选用 24
6.2 销钉的选用 24
7. 模具装配 24
7.1上模装配 24
7.2 下模装配 24
参考文献 26
致谢语 27
温馨提示:
1、题目前面的备注【字母数字编号】为本站整理分类的编号,与课题内容无关,请选题时忽视;
2、若题目上备注三维,则表示文件里包含三维源文件,由于三维组成零件数量较多,为保证预览截图的简洁性,本站将三维文件夹进行了打包。三维及CAD预览截图,均为本站电脑打开软件进行截图的,保证能够打开,下载原件超高清,下载后解压即可;
3、本站所有资源如无特殊说明,都需要本地电脑安装Office2007。图纸软件为AutoCAD,PROE,UG,SolidWorks,CATIA等;
4、本站所有图文资料仅供用户学习参考,不作为任何商用或其他用途;
5、本站不保证下载资源的准确性、安全性和完整性, 不包修改,不支持退换,同时也不承担用户因使用这些下载资源对自己和他人造成任何形式的伤害或损失;
6、 下载文件中如有侵权或不适当内容,请与我们联系,我们立即纠正。