

作品包括:
说明书1份,共39页,约13000字左右
CAD版本本图纸,共20张
PROE三维图一份
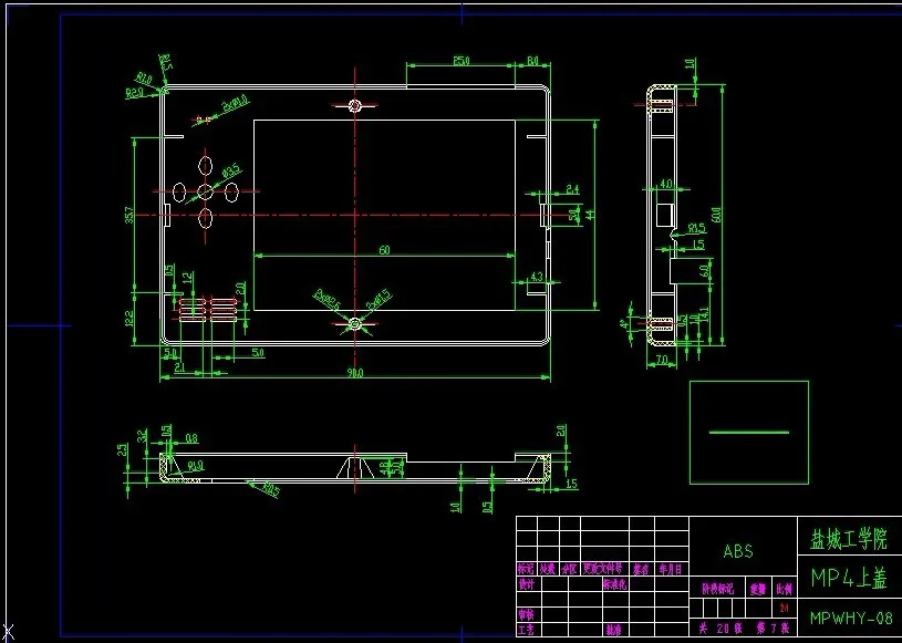
新科MP4上盖模具设计及型腔仿真加工
摘要:本课题是关于MP4上盖模具设计及型腔仿真加工。通过运用模具设计基础和PRO/E、AutoCAD等这些课程的知识去做一次模具设计的实践,并在这次实践中锻炼自己用理论知识来解决实际问题的能力。
本次模具设计主要是对MP4上盖注射成型模的结构设计和模具加工制造。前者包括分型面、型腔布置、浇注系统、排气系统、加热冷却系统、抽芯机构、顶出机构、脱模机构以及主要零部件的设计。后者运用PRO/E进行三维造型设计并对注塑模模具进行装配,对MP4上盖模具定模板型腔的加工工艺进行了分析,并利用MASTERCAM软件进行了仿真加工,其切削过程直观,切削参数得以体现,不合理的参数可以改进,能最大限度地降低能源和材料消耗,提高加工效率。经生产验证,该模具结构设计巧妙、操作方面、使用寿命长、塑件达到技术要求。
关键词:MP4;PRO/E;AutoCAD;注塑模具;模具设计
目录
1 前言 1
1.1 课题背景 1
1.2 本产品特点 1
1.3 播放器的主要功能 1
1.4 课题意义 1
1.5 设计前提及主要问题 2
1.6预期成果和实际价值 2
2总体方案论证 3
3 造型设计 4
3.1 产品主要尺寸的确定 4
3.2 MP4的造型方法与步骤 5
3.3 MP4上壳的造型过程 5
4 材料的选择 8
4.1塑料的基本概念 8
4.1.1塑料的定义及组成 8
4.1.2组成 8
4.1.3 辅助材料 8
4.2 制品材料 8
4.3 影响聚合物取向的主要因素(以注射成型为例) 8
4.3.1 温度的影响 8
4.3.2 注射压力和保压压力 9
4.3.3 浇口冻结时间 9
4.3.4模具温度 9
4.4 常用塑料分析和数据选取 9
4.4.1 根据以下表格和结合实际情况选取数据 9
4.4.2模具材料的选择 10
5 模具设计 11
5.1 注塑机的校核 11
5.1.1注塑机设备的确定 11
5.1.2注塑机有关工艺参数的校核 11
5.2分型面的设计 13
5.3浇注系统的设计 14
5.3.1浇注系统的设计原则 14
5.3.2主流道的设计 14
5.3.3分流道及其平衡布置 14
5.3.4 浇口的设计 15
5.3.5 冷料穴的设计 15
5.4 冷却系统的设计 16
5.4.1在设计冷却系统时,应从多方面考虑: 16
5.4.2 冷却计算 16
5.5 顶出系统的设计 17
5.5.1 推出机构设计 17
5.5.2 顶出行程 17
5.5.3 复位杆 17
5.5.4 顶出杆的形状和尺寸选择 18
5.5.5 导向装置位置的布置 18
5.5.6 浇注系统零件的设计 18
5.6 模架的设计 19
5.7凹凸模的造型 19
5.8 型腔加工工艺分析及加工仿真 23
5.8.1零件的工艺审查 23
5.8.2 毛坯选择 23
5.8.3 拟定加工方案 23
5.8.4 型腔数控仿真加工 23
6 结论 26
参考文献 27
致 谢 28
附录 29
温馨提示:
1、题目前面的备注【字母数字编号】为本站整理分类的编号,与课题内容无关,请选题时忽视;
2、若题目上备注三维,则表示文件里包含三维源文件,由于三维组成零件数量较多,为保证预览截图的简洁性,本站将三维文件夹进行了打包。三维及CAD预览截图,均为本站电脑打开软件进行截图的,保证能够打开,下载原件超高清,下载后解压即可;
3、本站所有资源如无特殊说明,都需要本地电脑安装Office2007。图纸软件为AutoCAD,PROE,UG,SolidWorks,CATIA等;
4、本站所有图文资料仅供用户学习参考,不作为任何商用或其他用途;
5、本站不保证下载资源的准确性、安全性和完整性, 不包修改,不支持退换,同时也不承担用户因使用这些下载资源对自己和他人造成任何形式的伤害或损失;
6、 下载文件中如有侵权或不适当内容,请与我们联系,我们立即纠正。