

作品包括:
说明书1份,共23页,约4700字左右
CAD版本本图纸,共11张
摘要
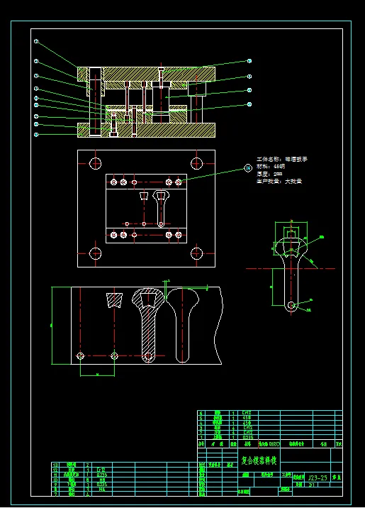
本次毕业设计的主要任务是,啤酒扳手的冲压模具设计。通过查阅相关资料文献,在设计过程中首先要分析零件的材料和结构工艺性,再确定模具设计和加工方案,最后进行相关零件的尺寸计算并运用CAD进行各个主要零件图的设计完成。从零件的排样、尺寸精度及质量要求综合考虑,采用冲孔--落料同时进行的复合模生产。
关键词:工艺性;设计;复合模;模具设计
目 录
前 言 1
1 冲压件工艺分析 2
1.1 设计任务:设计啤酒扳手的冲裁模 2
1.2 零件工艺性分析 3
1.2.1 材料与结构分析 3
1.2.2 冲裁件的精度分析 3
1.2.3 断面粗糙度的分析 4
1.2.4 加工工艺方案的确定 4
2 冲压模具工艺设计计算 5
2.1 排样的设计与计算 5
2.1.1 冲裁件的排样设计 5
2.1.2 冲裁件的搭边 6
2.1.2 材料料宽的计算 6
2.1.3 材料利用率的计算 7
2.2 冲压力的模具计算 8
2.2.1 冲压力的计算 8
2.3 模具凸凹模刃口尺寸相关计算 9
2.3.1 凸凹模加工方法的确定 9
2.3.2 凸凹模刃口尺寸及公差计算 10
3 模具零部件设计 12
3.1 凸模的设计 12
3.1.1 凸模结构的确定 12
3.1.2凸模的固定 12
3.1.3凸模材料的选择 12
3.2 凹模的设计 12
3.2.1 凹模刃口结构的确定 12
3.3 凹模板的设计 13
3.4 上、下模座的设计 14
3.4.1 模座大小及材料的确定 14
3.5 凸模固定板的设计 14
3.6 导料板与卸料板的设计 15
4 模架的总体结构设计 16
4.1 冲裁件模架的选择 16
4.2 模具总体装配图 16
结论 17
致 谢 18
参考文献 19
温馨提示:
1、题目前面的备注【字母数字编号】为本站整理分类的编号,与课题内容无关,请选题时忽视;
2、若题目上备注三维,则表示文件里包含三维源文件,由于三维组成零件数量较多,为保证预览截图的简洁性,本站将三维文件夹进行了打包。三维及CAD预览截图,均为本站电脑打开软件进行截图的,保证能够打开,下载原件超高清,下载后解压即可;
3、本站所有资源如无特殊说明,都需要本地电脑安装Office2007。图纸软件为AutoCAD,PROE,UG,SolidWorks,CATIA等;
4、本站所有图文资料仅供用户学习参考,不作为任何商用或其他用途;
5、本站不保证下载资源的准确性、安全性和完整性, 不包修改,不支持退换,同时也不承担用户因使用这些下载资源对自己和他人造成任何形式的伤害或损失;
6、 下载文件中如有侵权或不适当内容,请与我们联系,我们立即纠正。