

作品包括:
Word版设计说明书1份
CAD版本图纸,共7张
摘要
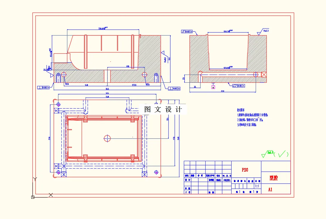
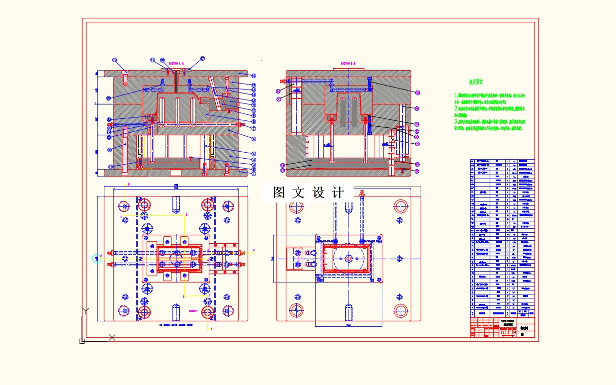
本课题塑件为背挂式斜口分类零件盒,外形尺寸为 245.5mm×148mm×117mm, 主体壁厚平均为 3mm。本设计主要完成了对该塑件进行工艺性分析,运用 软件对塑件进行三建模;运用 Moldflow 软件对其进行填充、冷却、翘曲等的模拟分析与 优化;最后在前述工作基础上展开该塑件注射模具的具体设计。 根据本塑件使用性能要求,选用塑件所用塑料为 HDPE。通过对该塑件尺寸精度、 结构特点、外观质量等要求的综合分析,为简化模具、保证充填顺利和成型质量,本模具确定为一模一腔的结构;浇注系统采用冷流道直接浇口从塑件顶部进浇的形式; 塑件侧面开口处运用斜导柱和滑块侧抽芯;利用推块结合推杆进行推出;导柱、导套的导向系统以及复位杆、弹簧的复位方式。该注塑模具总体方案合理可行。本设计所用型芯:设置隔水板,型腔:围绕制件形状设置冷却回路的冷却方式;在上述步骤详细设计之后,初步完成对注塑模具的设计,接着对注塑机的每一项参数进行校核,以便其能够很好地配合模具,使其能够顺利进行工作。
温馨提示:
1、题目前面的备注【字母数字编号】为本站整理分类的编号,与课题内容无关,请选题时忽视;
2、若题目上备注三维,则表示文件里包含三维源文件,由于三维组成零件数量较多,为保证预览截图的简洁性,本站将三维文件夹进行了打包。三维及CAD预览截图,均为本站电脑打开软件进行截图的,保证能够打开,下载原件超高清,下载后解压即可;
3、本站所有资源如无特殊说明,都需要本地电脑安装Office2007。图纸软件为AutoCAD,PROE,UG,SolidWorks,CATIA等;
4、本站所有图文资料仅供用户学习参考,不作为任何商用或其他用途;
5、本站不保证下载资源的准确性、安全性和完整性, 不包修改,不支持退换,同时也不承担用户因使用这些下载资源对自己和他人造成任何形式的伤害或损失;
6、 下载文件中如有侵权或不适当内容,请与我们联系,我们立即纠正。