

作品包括:
Word版说明书1份,共37页,约10000字
CAD版本图纸,共12张

摘要
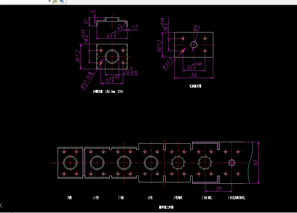
本次毕业设计的内容是支座冲压模具的设计,为了从设计中得到完好的制件及更熟练地掌握模具设计。我们进行了多个方面的分析,具体有材料分析、结构分析、工序分析。设计流程大致为工艺分析、方案确定、工艺参数计算、模具零件设计、零件图装配图的绘制。首先进行工艺分析对零件结构及材料有一定的认识,该工件是一个基本对称的结构,含有四个小孔一个大孔,还有弯曲部分的厚度为 1.5mm 的钣金类材料。10 钢抗拉强度和抗剪强度均适中,具有良好的冲压性能。由于它包含冲孔,落料,翻孔, 弯曲等多种常用工序,外形由落料完成。由于工序繁多复杂,需大批量生产,为了提高生产效率,提高工件质量及节约成本,选出合适的方案为级进模冲模。工艺参数计算完成后需要设计零部件和模具大体结构。在模具图的绘制中尽量简单明了易懂以降低生产成本。
关键词:级进模;冲孔;弯曲;翻孔;工艺分析;
目 录
摘要 I
ABSTRACT II
[1] 绪论 1
• 课题研究意义 1
• 国内外研究现状 1• 国外研究现状 1
• 国内研究现状 1
• 发展趋势 2
• 个人的评价 2
[2] 工艺分析 3
• 材料分析 3
• 尺寸的精度 4
• 工件结构 4
• 毛坯展开尺寸 4
• 方案的确定 4
[3] 冲模结构 6
• 送料方式 6
• 模具类型 6
• 卸料、推件方式 6
• 定位方式 6
• 冲压模架 6
[4] 计算工艺参数 8
• 排样的方法 8
• 排样及计算搭边值 8
• 步距 8
• 条料宽度 8
• 材料的利用率 9
• 冲裁工艺力 9
• 冲裁力 9
• 弯曲力 10
• 卸料力与推件力 11
• 总冲压力 11
• 压力中心的计算 11
• 冲裁间隙 12
• 压力机吨位 12
• 刃口尺寸计算 12
• 弯曲工作尺寸计算 13
[5] 模具主要零部件设计 15
• 切边凸模 15
5.2 凹模 16
5.3 弯曲凸模 18
5.4 其他 18
• 卸料板 18
• 凸模固定板 19
5.4.3 垫板 20
6.2.1 切断凸模 20
6.2.2 翻孔凸模 21
[6] 其他零件 24
• 其他零件设计 24
• 卸料装置 24
• 定位零件 24
• 导向零件 24
• 上下模座、模柄的选用 25
6.2.1 模柄 25
6.2.2 上下模座 25
[7] 校核冲压设备和选用冲压设备 26
• 校核和选用 26
[8] 冲压模具的装配 27
• 装配图 27
• 三维图 28
总 结 30
参 考 文 献 31
致 谢 32
温馨提示:
1、题目前面的备注【字母数字编号】为本站整理分类的编号,与课题内容无关,请选题时忽视;
2、若题目上备注三维,则表示文件里包含三维源文件,由于三维组成零件数量较多,为保证预览截图的简洁性,本站将三维文件夹进行了打包。三维及CAD预览截图,均为本站电脑打开软件进行截图的,保证能够打开,下载原件超高清,下载后解压即可;
3、本站所有资源如无特殊说明,都需要本地电脑安装Office2007。图纸软件为AutoCAD,PROE,UG,SolidWorks,CATIA等;
4、本站所有图文资料仅供用户学习参考,不作为任何商用或其他用途;
5、本站不保证下载资源的准确性、安全性和完整性, 不包修改,不支持退换,同时也不承担用户因使用这些下载资源对自己和他人造成任何形式的伤害或损失;
6、 下载文件中如有侵权或不适当内容,请与我们联系,我们立即纠正。