

作品包括:
Word版说明书1份,共32页,约14000字
CAD版本图纸,共14张
UG三维图一套

摘 要
模具是制造业的一种基本工艺装备,作用是限制和控制材料,包括固态或液 态的流动,使之形成所需要的形状。用模具制造的零件效率很高,质量有保障,生产成本也较低,材料消耗低,所以广泛的应用与制造业中。本次设计的收纳盒注塑模,应用与窗帘上,形状小巧,质量轻便,方便窗帘的开合。该设计主要通过对塑件的结构形状及尺寸精度,成型要求来进行的注塑成型工艺的分析,并完成注射模具的设计。该设计需要通过分析的成型工艺包括:PVC塑料的成型特性,塑件的结构特点,表面粗糙度以及脱模的分析要求,以此来确定注射机的选用、型腔的数目、分型面的位置、浇注的方式、分流道的设计、脱模方式等。该次设计的难点是需要进行滑块侧向分型分析,而且是一模一腔的设计,分析确定结构。最后要完成完整的一套模具设计总图,包括成型部分,合模导向机构,推出机构,侧向分型抽芯机构等。设计过程包括了对成型零件的各种计算,抽芯机构的校核计算等。设计过程中还可使用三维Pro/e软件完成塑件的实体造型,对塑件的体积质量进行分析,最后要用CAD完成注塑模具零件图和装配图,并最终完成塑料模具的整个设计。
关键词:塑料,模架,成型工艺,注塑模具设计,滑块抽芯机构,材料
目 录
1.前言 5
1.1 模具在加工工业中的地位 5
1.2 模具的发展趋势 6
1.3 设计在学习模具制造中的作用 6
2.塑料的工艺分析 7
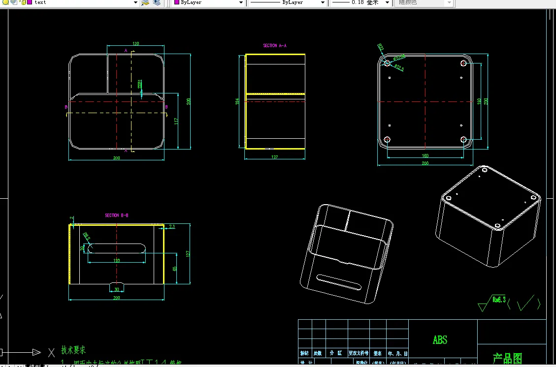
2.1 塑件元件图及技术要求 7
2.2 原料(ABS)的成型特性和工艺参数 8
2.2.1 ABS塑料主要的性能指标 8
2.2.2 ABS的注射成型工艺参数 8
3.注射设备的选择 9
3.1 注射成型工艺条件 9
3.1.1 模具所需塑料熔体注射量 9
3.1.2 分型面上的投影面积及所需锁模力 10
3.2 选择注射机 11
3.3 模架的选定 12
3.4 注射机的校核 12
3.4.1 最大注射量的校核 12
3.4.2 锁模力校核 13
3.4.3 模具与注射机安装部分相关尺寸校核 13
4.型腔布局与分型面设计 14
4.1 型腔的布局 14
4.2 分型面的设计 14
5.浇注系统的设计 15
5.1 主流道的设计 15
5.2 主流道衬套的设计 16
5.3 分流道的设计 16
5.4 浇口的选择 17
5.4.1 浇口的选用 17
5.4.2 浇口位置的选用 18
5.4.3 浇注系统的平衡 19
5.4.4 排气的设计 19
6.成型零件的设计 19
6.1 成型零件的结构设计 19
6.1.1 型腔结构设计 19
6.1.2 型芯结构设计 20
6.2 成型零件工作尺寸计算 21
6.2.1 外形尺寸 22
7.合模导向机构的设计 22
7.1 导柱结构 23
7.2 导套结构 23
7.3 侧抽芯机构的设计 24
7.3.1 抽拔力 24
7.3.2 抽芯距 25
8.脱模机构的设计 25
8.1 脱模机构设计的总原则 25
8.2 推杆设计 26
8.2.1 推杆的形状 26
8.2.2 推杆的位置和布局 26
9.温度调节系统的设计 27
9.1 模具冷却系统的设计 28
9.2 模具加热系统的设计 28
10.模具的装配 28
10.1 模具的装配顺序 29
10.2 开模过程分析 30
致 谢 30
参考文献 30
温馨提示:
1、题目前面的备注【字母数字编号】为本站整理分类的编号,与课题内容无关,请选题时忽视;
2、若题目上备注三维,则表示文件里包含三维源文件,由于三维组成零件数量较多,为保证预览截图的简洁性,本站将三维文件夹进行了打包。三维及CAD预览截图,均为本站电脑打开软件进行截图的,保证能够打开,下载原件超高清,下载后解压即可;
3、本站所有资源如无特殊说明,都需要本地电脑安装Office2007。图纸软件为AutoCAD,PROE,UG,SolidWorks,CATIA等;
4、本站所有图文资料仅供用户学习参考,不作为任何商用或其他用途;
5、本站不保证下载资源的准确性、安全性和完整性, 不包修改,不支持退换,同时也不承担用户因使用这些下载资源对自己和他人造成任何形式的伤害或损失;
6、 下载文件中如有侵权或不适当内容,请与我们联系,我们立即纠正。