

作品包括:
Word版设计说明书1份,共35页,约13000字
CAD版本图纸,共13张
UG三维图一套
模流分析一份

摘要
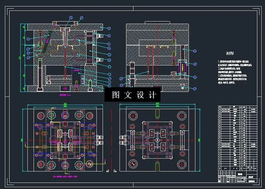
塑料材料是由预定比例的多种可塑高分子材料混合所得的一种特殊材料,无固定熔点。借助注塑机设备的加热系统熔融塑料材料,再压射至注射模具的型腔结构内部,按照预定结构冷却固化成型得到目标塑件产品,最后由顶出系统将加工所得的塑件产品顶出,自此完成了整个注射成型加工生产过程。该种塑料成型生产方式具有相对较高的生产效率,适合大批量生产,在生产实际中得到相对较为广泛的使用,各种塑件产品应用于生活中的方方面面。
本次设计的目标塑件制品是一个橱柜直角连接件产品,该塑件产品的重量相对较为轻巧,具有相对较强的抗变形能力,具有相对较高的硬度,耐电弧性能以及耐腐蚀性能均相对较好,在燃烧之后会产生浓烟,同时会有特殊的气味散发出来。在本次注射模具的设计过程中,基于橱柜直角连接件这一塑件产品,根据实际需求合理选定分型面,设计确定了注射模具的型芯结构以及型腔结构,结合实际情况,采用一模四腔的布局方式进行布局设计,以侧浇口进浇充填设计制造本文注射模具的浇注系统。以顶杆部件设计模具的顶出机构,辅助模具在注射成型生产过程中顺利实现脱模,在设计完成整套注射模具后,基于相关参数对成型加工生产所用注塑机设备进行选择,并对其主要参数进行校核计算,经过验算可知,本文设计的各项参数均能够较好满足实际工况,设计较为合理。
关键词:塑料;注塑模具;浇注系统;橱柜直角连接件;注塑机
目 录
摘要 2
Abstract 3
第一章 前言 6
1.1 注塑模具的概述 6
1.2 注塑模具发展国内外现状 6
1.3 国内模具的优劣势 8
第二章 塑件的工艺分析与材料的选择 9
2.1 塑件元件图及技术要求 9
2.2 原料(ABS)的成型特性和工艺参数 9
第三章 注射设备的选择 11
3.1 注射成型工艺条件 11
3.1.1 模具所需塑料熔体注射量 11
3.1.2 分型面上的投影面积及所需锁模力 12
3.2 选择注射机 12
3.3 模架的选定 14
3.4 注射机的校核 14
3.4.1 最大注射量的校核 14
3.4.2 锁模力校核 15
3.4.3 模具与注射机安装部分相关尺寸校核 16
3.4.4开模行程校核 16
第四章 型腔布局与分型面设计 17
4.1 型腔的布局 17
4.2 分型面的设计 17
第五章 浇注系统的设计 19
5.1 主流道的设计 19
5.2 主流道衬套的设计 19
5.3 分流道的设计 19
5.4 浇口的选择 20
第六章 成型零件的设计 22
6.1 成型零件的结构设计 22
6.1.1 型腔结构设计 22
6.1.2 型芯结构设计 22
6.2 成型零件工作尺寸计算 23
6.2.1 外形尺寸 23
6.3 侧抽芯机构的设计 24
6.3.1 抽拔力 24
6.3.2 抽芯距 24
第七章 合模导向机构的设计 26
7.1 主要导向定位机构 26
7.2 导柱导套的结构形式 26
7.3 导柱结构 26
7.4 导套结构 26
第八章 脱模机构的设计 28
8.1 脱模机构设计的总原则 28
8.2 推杆设计 28
8.2.2 推杆的位置和布局 28
第九章 温度调节系统的设计 30
9.1 模具冷却系统的设计 30
第十章 模具的装配 32
10.1 模具的装配 32
10.2 模具的维护 32
结论 34
致谢 34
参考文献 35
温馨提示:
1、题目前面的备注【字母数字编号】为本站整理分类的编号,与课题内容无关,请选题时忽视;
2、若题目上备注三维,则表示文件里包含三维源文件,由于三维组成零件数量较多,为保证预览截图的简洁性,本站将三维文件夹进行了打包。三维及CAD预览截图,均为本站电脑打开软件进行截图的,保证能够打开,下载原件超高清,下载后解压即可;
3、本站所有资源如无特殊说明,都需要本地电脑安装Office2007。图纸软件为AutoCAD,PROE,UG,SolidWorks,CATIA等;
4、本站所有图文资料仅供用户学习参考,不作为任何商用或其他用途;
5、本站不保证下载资源的准确性、安全性和完整性, 不包修改,不支持退换,同时也不承担用户因使用这些下载资源对自己和他人造成任何形式的伤害或损失;
6、 下载文件中如有侵权或不适当内容,请与我们联系,我们立即纠正。