

作品包括:
Word版设计说明书1份,共31页,约13000字
CAD版本图纸,共15张
UG三维图一套
模流分析一份

摘要
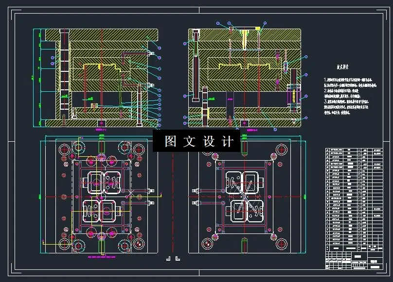
本文设计针对对肥皂盒塑件产品设计制造专用注射模具,由于肥皂盒塑件产品是日常常见品,在生产实际中的使用量相对较大,设计制造相应的注射模具具有较好的应用价值。结合肥皂盒塑件的实际实现要求,可知其需要具备足够高的强度,还需要具备柔韧性,综合研究分析各种不同材料的力学综合性能,最终选用性能较为优良的ABS塑料材料注射成型加工生产肥皂盒塑件产品。在设计本文注射模具过程中,首要研究分析肥皂盒塑件产品的结构形式和相关工艺,设计确定注射模具的总体结构,来对本文设计模具所用注塑机设备进行选型设计,并合理选用各个模具标准件。基于本文生产肥皂盒塑件产品的结构形式和具体参数,综合各项因素,最终决定采用一模两腔的结构设计制造注射模具,选择单点侧浇的结构设计该模具的浇口结构,当成型加工所得塑件产品顺利脱模之后,能够通过人工操作的方式切除凝料,从而获得目标塑件产品。
关键词: 肥皂盒;注射模具;ABS;一模两腔;侧浇口
目录
摘要 2
Abstract 3
绪论 5
1.编制模塑工艺规程 8
1.1塑件的工艺性分析 9
1.1.1塑件的原材料分析 9
1.1.2塑件的结构和尺寸精度及表面质量分析 9
1.2计算塑件的体积和质量 10
1.3塑件注塑工艺参数的确定 11
1.4塑料成型设备的选取 12
2.注塑模的结构设计 13
2.1分型面选择 13
2.2确定型腔的数目及排列方式 14
2.2.1模腔数量的确定 14
2.2.2型腔的排列方式 15
2.3浇注系统设计 15
2.3.1主流道设计 16
2.3.2分流道设计 17
2.3.3浇口设计 17
2.3.4排气结构的设计 17
2.3.5主流道衬套的选取 18
2.4抽芯机构设计 18
2.4.1确定抽芯距 18
2.4.2确定斜顶的倾角 19
2.4.6 导柱的设计 19
2.5推出机构设计 20
2.6成型零件结构设计 21
2.6.1 型腔结构设计 21
2.6.2 型芯结构设计 21
3.肥皂盒注塑模具的有关计算 23
4.模具加热和冷却系统的设计 24
5.注塑机有关参数的校核 26
5.1模具合模时校核 26
5.2模具开模时校核 26
6.绘制模具总装图和非标零件工作图 27
6.1本模具总装图和非标零件工作图见附图 27
6.2本模具的工作原理 27
结论 29
致谢 29
参考文献 30
温馨提示:
1、题目前面的备注【字母数字编号】为本站整理分类的编号,与课题内容无关,请选题时忽视;
2、若题目上备注三维,则表示文件里包含三维源文件,由于三维组成零件数量较多,为保证预览截图的简洁性,本站将三维文件夹进行了打包。三维及CAD预览截图,均为本站电脑打开软件进行截图的,保证能够打开,下载原件超高清,下载后解压即可;
3、本站所有资源如无特殊说明,都需要本地电脑安装Office2007。图纸软件为AutoCAD,PROE,UG,SolidWorks,CATIA等;
4、本站所有图文资料仅供用户学习参考,不作为任何商用或其他用途;
5、本站不保证下载资源的准确性、安全性和完整性, 不包修改,不支持退换,同时也不承担用户因使用这些下载资源对自己和他人造成任何形式的伤害或损失;
6、 下载文件中如有侵权或不适当内容,请与我们联系,我们立即纠正。