

作品包括:
Word版设计说明书1份
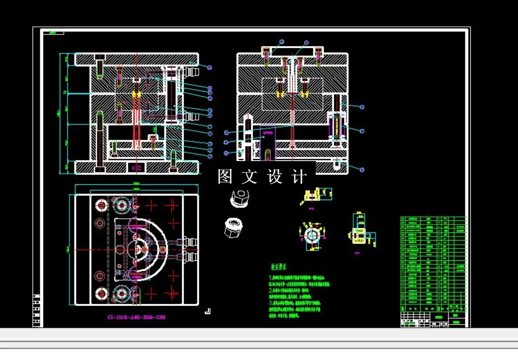
CAD版本图纸,共9张
UG三维图一套
摘要
本文设计注射模具的浇注系统各个方面都能够相对较好的贴近实际注塑加工生产的各项工艺需求,设计的冷却系统能够确保该塑件产品均匀的完成冷却过程。基于相关GB国家标准,结合本文设计的实际情况选用龙记标准模架系统,能够选用标准件的模具零件均选用标准件,简化了设计流程,缩短了设计制造周期,降低了设计制造成本。
温馨提示:
1、题目前面的备注【字母数字编号】为本站整理分类的编号,与课题内容无关,请选题时忽视;
2、若题目上备注三维,则表示文件里包含三维源文件,由于三维组成零件数量较多,为保证预览截图的简洁性,本站将三维文件夹进行了打包。三维及CAD预览截图,均为本站电脑打开软件进行截图的,保证能够打开,下载原件超高清,下载后解压即可;
3、本站所有资源如无特殊说明,都需要本地电脑安装Office2007。图纸软件为AutoCAD,PROE,UG,SolidWorks,CATIA等;
4、本站所有图文资料仅供用户学习参考,不作为任何商用或其他用途;
5、本站不保证下载资源的准确性、安全性和完整性, 不包修改,不支持退换,同时也不承担用户因使用这些下载资源对自己和他人造成任何形式的伤害或损失;
6、 下载文件中如有侵权或不适当内容,请与我们联系,我们立即纠正。