

作品包括:
Word版设计说明书1份
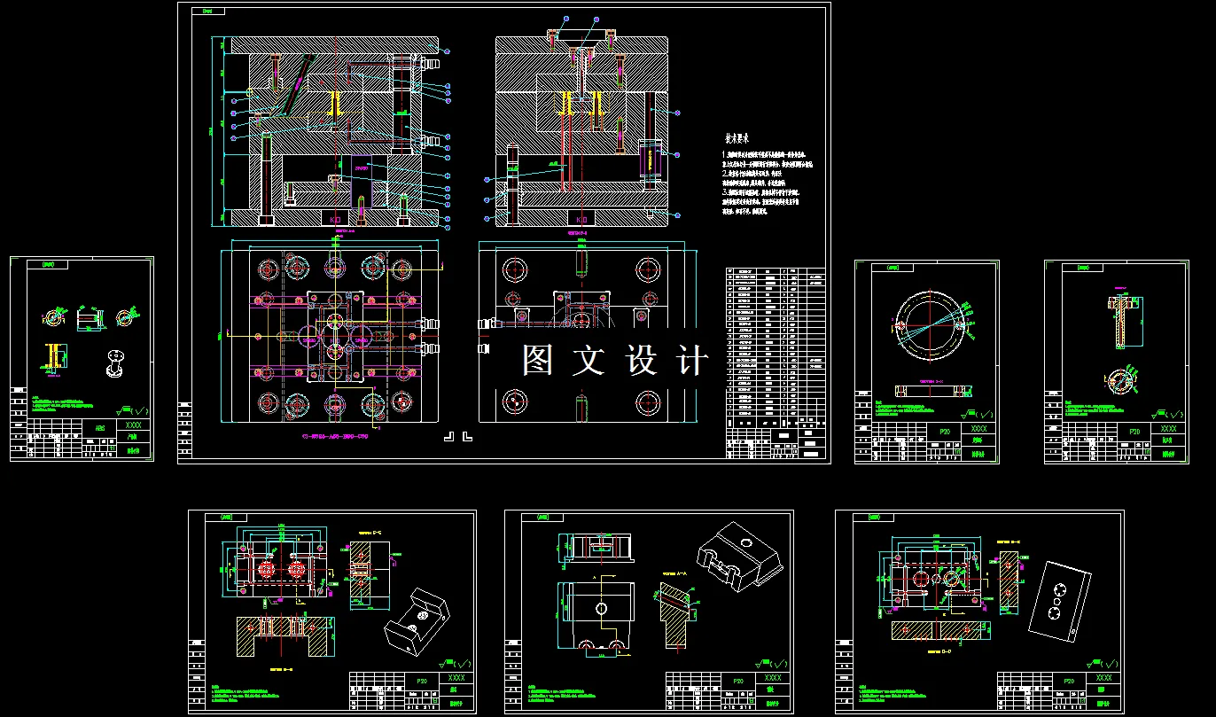
CAD版本图纸,共7张
UG三维图一套
摘要
本次设计的目标塑件制品是一个日历轴套产品,该塑件产品的重量相对较为轻巧,具有相对较强的抗变形能力,具有相对较高的硬度,耐电弧性能以及耐腐蚀性能均相对较好,在燃烧之后会产生浓烟,同时会有特殊的气味散发出来。在本次注射模具的设计过程中,基于日历轴套这一塑件产品,根据实际需求合理选定分型面,设计确定了注射模具的型芯结构以及型腔结构,结合实际情况,采用一模四腔的布局方式进行布局设计,以侧浇口进浇充填设计制造本文注射模具的浇注系统。
温馨提示:
1、题目前面的备注【字母数字编号】为本站整理分类的编号,与课题内容无关,请选题时忽视;
2、若题目上备注三维,则表示文件里包含三维源文件,由于三维组成零件数量较多,为保证预览截图的简洁性,本站将三维文件夹进行了打包。三维及CAD预览截图,均为本站电脑打开软件进行截图的,保证能够打开,下载原件超高清,下载后解压即可;
3、本站所有资源如无特殊说明,都需要本地电脑安装Office2007。图纸软件为AutoCAD,PROE,UG,SolidWorks,CATIA等;
4、本站所有图文资料仅供用户学习参考,不作为任何商用或其他用途;
5、本站不保证下载资源的准确性、安全性和完整性, 不包修改,不支持退换,同时也不承担用户因使用这些下载资源对自己和他人造成任何形式的伤害或损失;
6、 下载文件中如有侵权或不适当内容,请与我们联系,我们立即纠正。