

作品包括:
Word版设计说明书1份
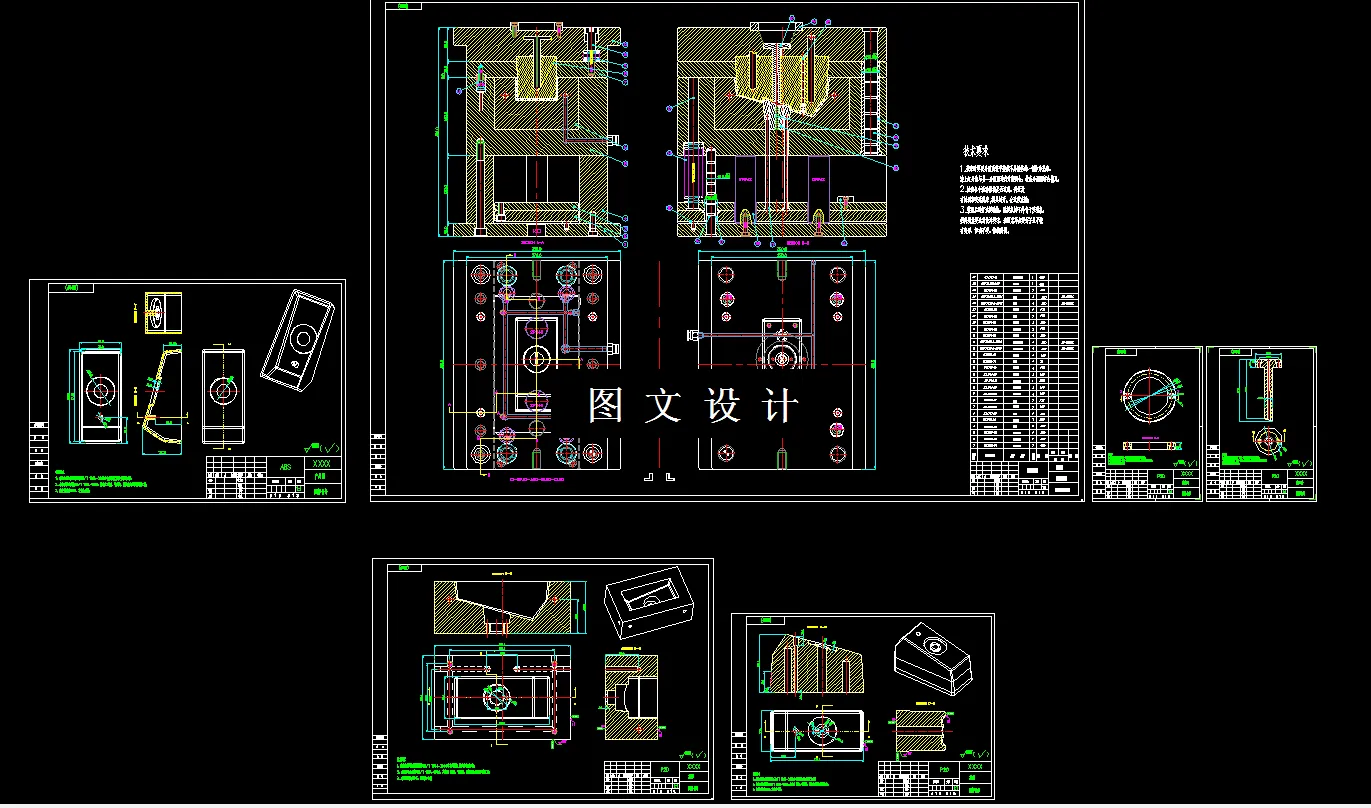
CAD版本图纸,共6张
UG三维图一套
摘要
本次设计主要根据任务书所给的注塑零件来进行模具的设计,自主选择的研究产品是开关上盒盖,起密封保护的作用,先利用UG对开关上盒盖进行3D建模,然后根据相应的参数对应选择注射机的型号,并对塑料制品的模架结构进行了设计,对模具参数进行校核,完成了浇注系统和型腔排布的设计,同时还完成了装配图和零件图的设计。 采用一模一腔,侧进胶,推杆推出的方案。
温馨提示:
1、题目前面的备注【字母数字编号】为本站整理分类的编号,与课题内容无关,请选题时忽视;
2、若题目上备注三维,则表示文件里包含三维源文件,由于三维组成零件数量较多,为保证预览截图的简洁性,本站将三维文件夹进行了打包。三维及CAD预览截图,均为本站电脑打开软件进行截图的,保证能够打开,下载原件超高清,下载后解压即可;
3、本站所有资源如无特殊说明,都需要本地电脑安装Office2007。图纸软件为AutoCAD,PROE,UG,SolidWorks,CATIA等;
4、本站所有图文资料仅供用户学习参考,不作为任何商用或其他用途;
5、本站不保证下载资源的准确性、安全性和完整性, 不包修改,不支持退换,同时也不承担用户因使用这些下载资源对自己和他人造成任何形式的伤害或损失;
6、 下载文件中如有侵权或不适当内容,请与我们联系,我们立即纠正。