

作品包括:
Word版设计说明书1份
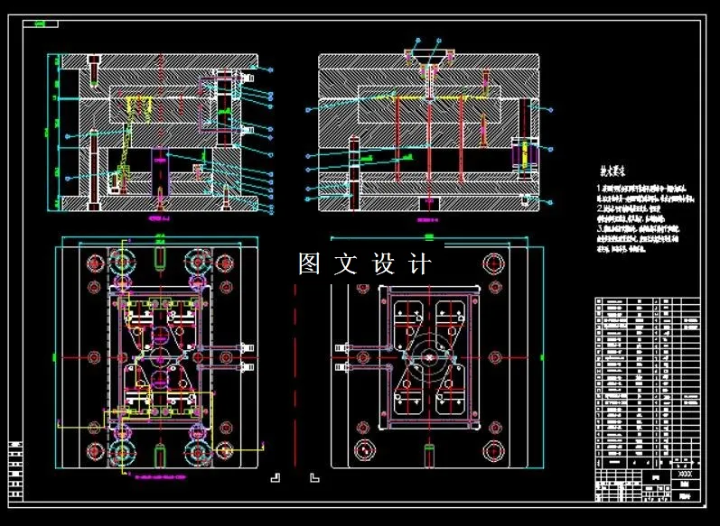
CAD版本图纸,共14张
UG三维图一套
模流分析一份
摘要
本次设计的制品是壁锁座,其具有重量轻巧,抗变形能力强,硬度高,耐腐蚀,耐电弧,燃烧后发浓烟,散发特殊气味。本次设计中,针对该塑件,进行了分型面的选择,确定了型芯和型腔的结构形式,进行一模四腔的型腔布局,浇注系统设计选择了侧浇口进浇充填。脱模方面采用顶杆顶出机构实现脱模,最后完成整套模具之后进行了注塑机的选择与校核。
温馨提示:
1、题目前面的备注【字母数字编号】为本站整理分类的编号,与课题内容无关,请选题时忽视;
2、若题目上备注三维,则表示文件里包含三维源文件,由于三维组成零件数量较多,为保证预览截图的简洁性,本站将三维文件夹进行了打包。三维及CAD预览截图,均为本站电脑打开软件进行截图的,保证能够打开,下载原件超高清,下载后解压即可;
3、本站所有资源如无特殊说明,都需要本地电脑安装Office2007。图纸软件为AutoCAD,PROE,UG,SolidWorks,CATIA等;
4、本站所有图文资料仅供用户学习参考,不作为任何商用或其他用途;
5、本站不保证下载资源的准确性、安全性和完整性, 不包修改,不支持退换,同时也不承担用户因使用这些下载资源对自己和他人造成任何形式的伤害或损失;
6、 下载文件中如有侵权或不适当内容,请与我们联系,我们立即纠正。